Prodej bytu 1+1, Brno, Palackého třída, 32 m2

Palackého třída, Brno

4 950 000 Kč /za nemovitost HYPOTÉKA od 22 124 Kč /za měsíc
Prověřené firmy v Brně

Informace k bytu

Nabízíme k prodeji byt 1+1 v osobním vlastnictví o velikosti 32 m2 + sklep v cihlovém bytovém domě. Byt je umístěn ve zvýšeném přízemí a orientován pouze do klidného soukromého dvora, čímž je odcloněn hluk z ulice. Soukromý dvůr slouží pouze pro obyvatele tohoto bytového domu (odpočinek, grilování, zahradničení, herní prvky pro děti,..). Přestože je tedy byt umístěn na rušné ulici s velice dobrou dostupností do centra i mimo město, jedná se o příjemný prosluněný byt.

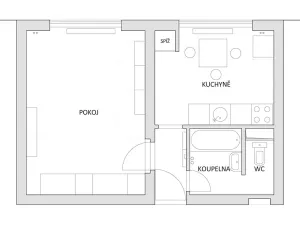
Dispozici bytu tvoří vstupní chodba, koupelna s vanou a odděleným WC, obytný pokoj a kuchyně (součástí je kuchyňská linka s vestavnou el. troubou, indukční varnou deskou a příprava pro pračku). K bytu patří 1 zděná sklepní kóje v suterénu.

V bytě jsou rekonstruovány rozvody vody, elektřiny, nové stoupačky, nová kvalitní plastová okna (Scüco s izolačním trojsklem). Aktuálně je byt odpojen od plynu (plynová varná deska nahrazena indukční).


Měsíční zálohy na energie a služby činí cca 4000,-Kč (voda, teplá voda, teplo, elekřina, úklid a osvětlení společných prostor). PENB - třída D (128)

Parametry bytu

Cena
4 950 000 Kč /za nemovitost Spočítat hypotéku
Aktualizováno
19. 4. 2026
Adresa
Palackého třída, Brno
Stavba
Cihlová
Stav objektu
Velmi dobrý
Patro
1.
Vlastnictví
Osobní
Užitná plocha
32 m2
Třída energetické náročnosti
D - Méně úsporná
Ukazatel energetické náročnosti
128 kWh/m2 za rok
Sklep

Kontaktovat makléře

Máte zájem o tento byt?

Tímto, v souladu s nařízením Evropského parlamentu a Rady (EU) 2016/679, v platném znění, prohlašuji, že mi je alespoň 16 let a uděluji tak svůj souhlas se zpracováním zadaných údajů (jméno, telefon, e-mail, ip adresa) společnosti B3 Technology, s.r.o., IČ: 07330600, se sídlem Novostavby 126/23, 435 11 Lom (správce dat), za účelem předání dotazu z tohoto formuláře Vámi vybranému inzerentovi a zpětného kontaktování mé osoby. Osobní údaje bude správce zpracovávat manuálně i automaticky přímo prostřednictvím svých zaměstnanců. Informace předané tímto formulářem budou uloženy v databázi správce maximálně po dobu 10 let. Odvolání souhlasu s uložením a zpracováním poskytnutých dat lze e-mailem na info@realitypro.eu. V případě podezření na neoprávněné použití Vámi poskytnutých údajů máte právo předat podnět k šetření Úřadu pro ochranu osobních údajů. Více informací
Chystáte se prodat nemovitost?
Pomůžeme Vám!

Inzerát si prohlédlo 29 lidí

Prodejce

Petr Hrdlička

Petr Hrdlička

Hlídací pes

Chcete dostávat emailem podobné nabídky prodeje bytů 1+1 v Brně?

Podobné nemovitosti