Pronájem ordinace, Mnichovo Hradiště, Masarykovo náměstí, 57 m2

Masarykovo náměstí, Mnichovo Hradiště

15 500 Kč /za měsíc Získejte výhodnou HYPOTÉKU

(Nájem 15.500,- Služby dle spotřeby. Kauce 31.000,-)

Prověřené firmy v Mnichově Hradišti

Informace k nemovitosti

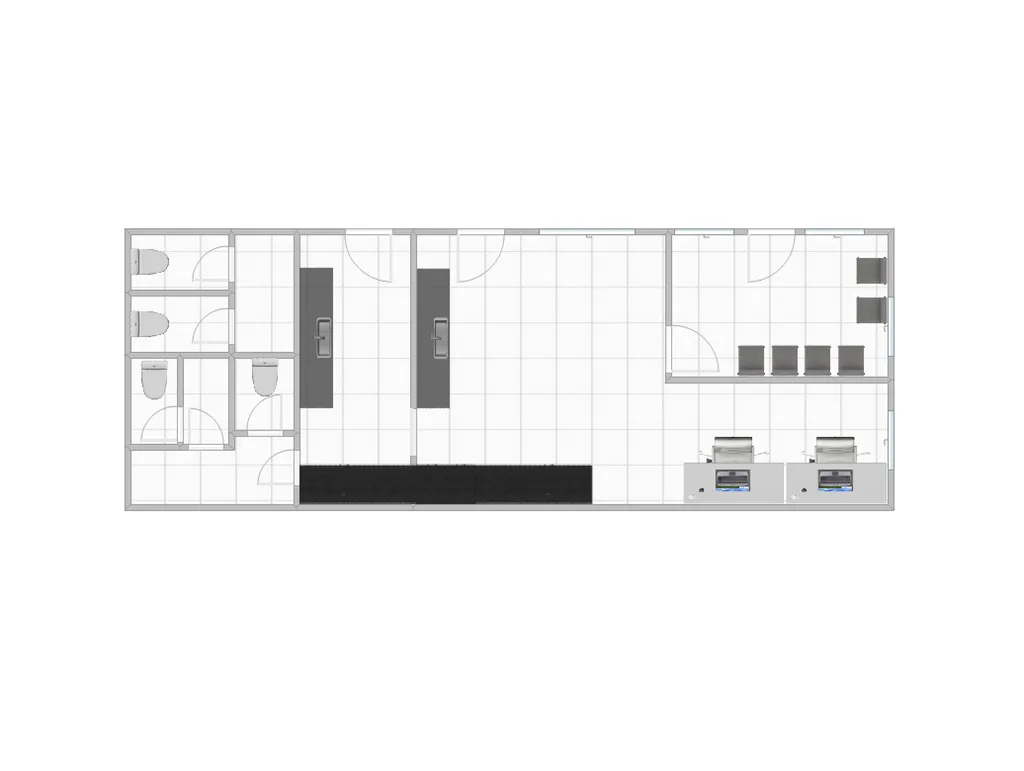
Nabízíme pronájem komerčních prostor v centru Mnichova Hradiště, Masarykovo náměstí 243. Jedná se o přízemní nebytový prostor o výměře 57m2, který dříve sloužil třeba jako obchod, kanceláře a aktuálně slouží k provozu veterinární ordinace. Nabízí se tak možnost mnoha využití. Dispozičně se jedná o tři místnosti a zázemí. Současné využití místností je: čekárna, ordinace s kanceláří, ordinace se skladem, chodba s dvěma toaletami a ještě jedny toalety jsou přístupné ze dvora. Výhodou je pak možnost parkování až pěti vozidel přímo u objektu.

V okolí je veškerá občanská vybavenost. Výše nájmu je 15.500,- + náklady na vodu budou vyúčtovány vždy za kvartál, dle skutečné spotřeby + elektřinu a plyn si nájemník převádí na sebe. Majitel požaduje vratnou kauci ve výši 31.000,-.

K dispozici od 1.8.2026.

V případě dotazů, nebo zájmu o prohlídku mě prosím kontaktujte.

Parametry nemovitosti

Cena
15 500 Kč /za měsíc
Poznámka k ceně
Nájem 15.500,- Služby dle spotřeby. Kauce 31.000,-
Aktualizováno
5. 3. 2026
Adresa
Masarykovo náměstí, Mnichovo Hradiště
ID
1859
Stavba
Cihlová
Stav objektu
Velmi dobrý
Vybaveno
Ne
Typ objektu
Patrový
Lokalita objektu
Centrum obce
Užitná plocha
57 m2
Třída energetické náročnosti
G - Mimořádně nehospodárná
Elektřina
230V
Plyn
Plynovod
Odpad
Veřejná kanalizace
Topení
Lokální plynové
Komunikace
Štěrková
Doprava
Vlak, Dálnice, Silnice, MHD, Autobus
Voda
Vodovod
Bezbarierový přístup
Parkování

Kontaktovat makléře

Realitní kancelář

Logo Adomus – reality jinak

Adomus – reality jinak

Bělohorská 659/198, 16900 Praha - Břevnov, Praha

Chystáte se prodat nemovitost?
Pomůžeme Vám!

Máte zájem o tuto nemovistost?

Tímto, v souladu s nařízením Evropského parlamentu a Rady (EU) 2016/679, v platném znění, prohlašuji, že mi je alespoň 16 let a uděluji tak svůj souhlas se zpracováním zadaných údajů (jméno, telefon, e-mail, ip adresa) společnosti B3 Technology, s.r.o., IČ: 07330600, se sídlem Novostavby 126/23, 435 11 Lom (správce dat), za účelem předání dotazu z tohoto formuláře Vámi vybranému inzerentovi a zpětného kontaktování mé osoby. Osobní údaje bude správce zpracovávat manuálně i automaticky přímo prostřednictvím svých zaměstnanců. Informace předané tímto formulářem budou uloženy v databázi správce maximálně po dobu 10 let. Odvolání souhlasu s uložením a zpracováním poskytnutých dat lze e-mailem na info@realitypro.eu. V případě podezření na neoprávněné použití Vámi poskytnutých údajů máte právo předat podnět k šetření Úřadu pro ochranu osobních údajů. Více informací
Chystáte se prodat nemovitost?
Pomůžeme Vám!

Inzerát si prohlédlo 4 lidí

Prodejce

Matouš  Kozumplík

Matouš Kozumplík

Hlídací pes

Chcete dostávat emailem podobné nabídky pronájmu ordinací v Mnichově Hradišti?