Prodej rodinného domu, Alella, Španělsko, 600 m2

Alella

43 500 000 Kč /za nemovitost
Prověřené firmy

Informace k domu

Luxusní vila po kompletní rekonstrukci s bazénem – Alella, Barcelona

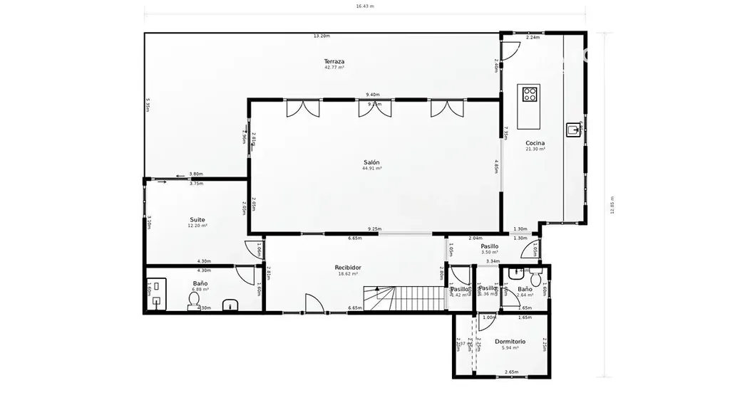
Nabízíme k prodeji samostatně stojící vilu v prestižní rezidenční lokalitě Alella nedaleko Barcelony. Dům o užitné ploše cca 600 m² je rozložen do 3 podlaží a stojí na pozemku o velikosti 1 092 m². Nemovitost prošla kompletní rekonstrukcí v roce 2025 a je připravena k okamžitému nastěhování.

Dispozice nabízí 6 ložnic, z toho 5 typu en-suite, prostorný obývací pokoj s jídelnou a vstupem na terasu, pracovnu, fitness, saunu, vinný sklep, spíž a garáž pro 4 vozy. Většina ložnic má vlastní terasu, jedna z nich nabízí výhled na moře.

Na upravené zahradě se nachází bazén, jacuzzi a několik venkovních teras pro relaxaci. Dům je vybaven solárními panely, klimatizací, dřevěnými podlahami, bezpečnostními hliníkovými okny s dvojskly a systémem Airzone pro individuální regulaci teploty v jednotlivých místnostech.

Nemovitost se nachází v klidné rezidenční urbanizaci s privátní ostrahou, v blízkosti mezinárodní školy. Pláže Montgat, El Masnou a Ocata jsou vzdáleny cca 5 minut jízdy, centrum Barcelony cca 20 minut autem.

Investiční výhoda: v případě koupě je možné převzít garantovaný pronájem s nájemní smlouvou na 3 roky ve výši 8 500 EUR měsíčně + poplatky, což činí z nemovitosti atraktivní investiční příležitost i pro pasivní příjem.

Parametry domu

Cena
43 500 000 Kč /za nemovitost
Aktualizováno
5. 3. 2026
Adresa
Alella
ID
N00263
Stavba
Cihlová
Stav objektu
Po rekonstrukci
Druh objektu
Samostatný
Lokalita objektu
Klidná část obce
Užitná plocha
600 m2
Zastavěná plocha
170 m2
Plocha pozemku
1092 m2
Třída energetické náročnosti
C - Úsporná
Garáž
Sklep
Bazén

Kontaktovat makléře

Realitní kancelář

ATLANTIC reality, s.r.o.

Bubenské nábřeží 306/13, Praha 7

Chystáte se prodat nemovitost?
Pomůžeme Vám!

Máte zájem o tento dům?

Tímto, v souladu s nařízením Evropského parlamentu a Rady (EU) 2016/679, v platném znění, prohlašuji, že mi je alespoň 16 let a uděluji tak svůj souhlas se zpracováním zadaných údajů (jméno, telefon, e-mail, ip adresa) společnosti B3 Technology, s.r.o., IČ: 07330600, se sídlem Novostavby 126/23, 435 11 Lom (správce dat), za účelem předání dotazu z tohoto formuláře Vámi vybranému inzerentovi a zpětného kontaktování mé osoby. Osobní údaje bude správce zpracovávat manuálně i automaticky přímo prostřednictvím svých zaměstnanců. Informace předané tímto formulářem budou uloženy v databázi správce maximálně po dobu 10 let. Odvolání souhlasu s uložením a zpracováním poskytnutých dat lze e-mailem na info@realitypro.eu. V případě podezření na neoprávněné použití Vámi poskytnutých údajů máte právo předat podnět k šetření Úřadu pro ochranu osobních údajů. Více informací
Chystáte se prodat nemovitost?
Pomůžeme Vám!

Inzerát si prohlédlo 5 lidí

Prodejce

Martin Kratochvíl

Martin Kratochvíl

Hlídací pes

Chcete dostávat emailem podobné nabídky prodeje rodinných domů?

Podobné nemovitosti