Pronájem bytu 2+kk, Liberec - Liberec III-Jeřáb, U Nisy, 63 m2 (ID: 2822639)

U Nisy, Liberec (nečleněné město)

15 000 Kč /za měsíc Získejte výhodnou HYPOTÉKU

(poplatky viz text inzerce)

Prověřené firmy v Liberci

Rekonstrukce

Úklidové služby

Informace k bytu

Pronajmu na 3 měsíce prostorný byt 2+kk o výměře 63 m2 + sklepní kóje cca 4m2 v novostavbě z roku 2022 Rezidence Nábřeží (energetický štítek B) v samém centru Liberce.

Okna jsou orientovaná na jihovýchod, sluníčko se v místnostech točí během celého dopoledne. Výhled je zachycen ve fotogalerii. Okna jsou vybavena trojskly, rámy se systémem synego s dvojitým těsněním a předokenními venkovními žaluziemi s elektromotorem na dálkové ovládání.
Byt je vybaven kuchyňskou linkou s vestavěnou troubou, indukční deskou a digestoří + místo pro mikrovlnou troubu.
Byt je pronajímán s částečným vybavením (pračka, lednička, manželská postel 160x200, stůl, židle).

Prostorná koupelna je spojená s toaletou a disponuje sprchovým koutem walk-in. WC je závěsné. Je zde místo i pro pračku a sušičku. Na stěně je osazen topný řebřík.

Vstup do domu je bezbariérový s dvěma výtahy. Možnost využití společné kočárkárny. Na stejném 3.patře jako je byt je k dispozici prostorná kóje (4m2).
U vstupních dveří je domácí telefon. Byt má též vlastní požární senzor. V bytě je zavedena pozemní TV anténa, rozvody pro internet. Objekt je vytápěn dálkově z Teplárny Liberec.

Byt je vymalován a pečlivě uklizen.

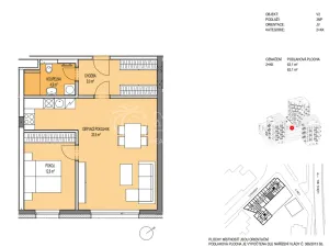
Rozmístění místností naleznete v přiloženém půdorysu.

Volný ihned.

Byt se nalézá na strategickém místě v centru Liberce. Přesto se jedná o klidnou lokalitu s dostatkem zeleně. Byt je jen 5 minut chůze od všeho, co k životu potřebujete: od obchodů, kaváren (přímo v domě), restaurací, pivnice, úřadů, autobusového a vlakového nádraží, MHD, dětských hřišť a venkovních posiloven, parků, cyklostezky a centra Babylon.

Cenové podmínky:
Nájem: 15.000,- Kč/měs.
Poplatky: celkem 6.000Kč včetně elektrické energie
Kauce: 20 000Kč, která Vám bude vrácena na konci nájemního vztahu
Provize RK: 5 000Kč
Možnost pronajmout i parkovací stání v parkovacím komplexu rezidence (parkovací místo je vidět z okna bytu) za 1500,- měsíčně. Pronajmutí parkování není podmínkou pronájmu bytu.

Pro tento byt hledám slušného nájemce, max 2 osoby. Nekuřáky, co jim záleží na dobrých sousedských vztazích. Vychovaný domácí mazlíček je možný po dohodě.

Pokud by vás zajímaly další informace nebo byste se se mnou chtěli do bytu podívat, kontaktujte mě prosím na uvedených kontaktních údajích.

Parametry bytu

Cena
15 000 Kč /za měsíc
Poznámka k ceně
poplatky viz text inzerce
Aktualizováno
4. 3. 2026
Adresa
U Nisy, Liberec (nečleněné město)
ID
19013
Stavba
Cihlová
Stav objektu
Velmi dobrý
Patro
3. z 13
Vybaveno
Částečně
Lokalita objektu
Centrum obce
Vlastnictví
Osobní
Užitná plocha
63 m2
Zastavěná plocha
2129 m2
Podlahová plocha
63 m2
Třída energetické náročnosti
B - Velmi úsporná
Ukazatel energetické náročnosti
98 kWh/m2 za rok
Odpad
Veřejná kanalizace
Voda
Vodovod
Sklep
Výtah
Bezbarierový přístup
Parkování

Kontaktovat makléře

Máte zájem o tento byt?

Tímto, v souladu s nařízením Evropského parlamentu a Rady (EU) 2016/679, v platném znění, prohlašuji, že mi je alespoň 16 let a uděluji tak svůj souhlas se zpracováním zadaných údajů (jméno, telefon, e-mail, ip adresa) společnosti B3 Technology, s.r.o., IČ: 07330600, se sídlem Novostavby 126/23, 435 11 Lom (správce dat), za účelem předání dotazu z tohoto formuláře Vámi vybranému inzerentovi a zpětného kontaktování mé osoby. Osobní údaje bude správce zpracovávat manuálně i automaticky přímo prostřednictvím svých zaměstnanců. Informace předané tímto formulářem budou uloženy v databázi správce maximálně po dobu 10 let. Odvolání souhlasu s uložením a zpracováním poskytnutých dat lze e-mailem na info@realitypro.eu. V případě podezření na neoprávněné použití Vámi poskytnutých údajů máte právo předat podnět k šetření Úřadu pro ochranu osobních údajů. Více informací
Chystáte se prodat nemovitost?
Pomůžeme Vám!

Inzerát si prohlédlo 0 lidí

Prodejce

Ing. Kateřina Pavlů

Ing. Kateřina Pavlů

Hlídací pes

Chcete dostávat emailem podobné nabídky pronájmu bytů 2+kk v Liberci?

Podobné nemovitosti