Soccer reality

Pronájem bytu 1+kk, Praha - Hloubětín, Poděbradská, 33 m2 (ID: 2816405)

Poděbradská, Praha, Hloubětín

18 500 Kč /za měsíc Získejte výhodnou HYPOTÉKU

(+ popl. cca 2.500,-Kč, energie na nájemce.)

Prověřené firmy v Praze 9

Stěhovací služby

Výkup a prodej starého nábytku

Informace k bytu

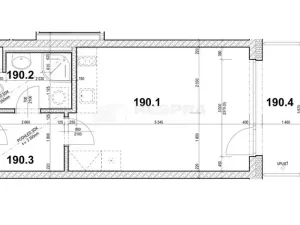
Projekt moderních bytu, rezidenční čtvrť Tesla Hloubětín, novostavba, nový byt. 1+kk/33m2, balkón, sklep, garážové park. stání, Praha 9 - Hloubětín, ul. Domalípova. Ve 3. patře moderního komplexu Tesla Hloubětín 2026. Vstupní chodba/ šatní skříň , koupelna se sprch. koutem, wc. Obývací pokoj s kuchyňským koutem/ nová kuch. linka, varná deska, ele. trouba, mik.trouba, dřez, lednice + mrazák. Na podlaze dlažba, vinyl. Tv, PCO, rozvody sítí- internet, centrální rekuperace vzduchu. Výborná lokalita s okolní rekreační zelení, velké množství sportovního vyžití, přímo v lokalitě zklidněný vnitroblok s velkým parkem, pěší zónou s veškerou občanskou vybaveností - obchody, restaurace, škola, zdravotnické zařízení atd.. Vyborná dopravní dostupnost, 3 minuty tramvají na metro B – Hloubětín a 5 minut na metro B – Českomoravská. K bytu patří park. staní v suterenu domu v ceně 2.500,-Kč/ měsíc. Volný ihned. Volejte. Doporučuji.

.

Parametry bytu

Cena
18 500 Kč /za měsíc
Poznámka k ceně
+ popl. cca 2.500,-Kč, energie na nájemce.
Aktualizováno
26. 2. 2026
Adresa
Poděbradská, Praha, Hloubětín
ID
555
Stavba
Cihlová
Stav objektu
Novostavba
Patro
3. z 5
Lokalita objektu
Centrum obce
Vlastnictví
Osobní
Užitná plocha
33 m2
Podlahová plocha
33 m2
Třída energetické náročnosti
B - Velmi úsporná
Elektřina
230V, 400V
Topení
Ústřední plynové
Telekomunikace
Telefon, Internet, Satelit, Kabelová televize, Kabelové rozvody
Doprava
Vlak, Dálnice, MHD, Autobus
Balkon
Garáž
Sklep
Výtah
Bezbarierový přístup

Kontaktovat makléře

Realitní kancelář

RESPRA.CZ, s.r.o.

Vlkova 811/33, Praha, Žižkov

Chystáte se prodat nemovitost?
Pomůžeme Vám!

Máte zájem o tento byt?

Tímto, v souladu s nařízením Evropského parlamentu a Rady (EU) 2016/679, v platném znění, prohlašuji, že mi je alespoň 16 let a uděluji tak svůj souhlas se zpracováním zadaných údajů (jméno, telefon, e-mail, ip adresa) společnosti B3 Technology, s.r.o., IČ: 07330600, se sídlem Novostavby 126/23, 435 11 Lom (správce dat), za účelem předání dotazu z tohoto formuláře Vámi vybranému inzerentovi a zpětného kontaktování mé osoby. Osobní údaje bude správce zpracovávat manuálně i automaticky přímo prostřednictvím svých zaměstnanců. Informace předané tímto formulářem budou uloženy v databázi správce maximálně po dobu 10 let. Odvolání souhlasu s uložením a zpracováním poskytnutých dat lze e-mailem na info@realitypro.eu. V případě podezření na neoprávněné použití Vámi poskytnutých údajů máte právo předat podnět k šetření Úřadu pro ochranu osobních údajů. Více informací
Chystáte se prodat nemovitost?
Pomůžeme Vám!

Inzerát si prohlédlo 0 lidí

Prodejce

Lukáš  Novotný

Lukáš Novotný

Hlídací pes

Chcete dostávat emailem podobné nabídky pronájmu bytů 1+kk v Praze 9?

Podobné nemovitosti