Pronájem kanceláře, Praha - Nové Město, Lazarská, 379 m2

Lazarská, Praha, Nové Město

18,5 Kč /za metr čtvereční / měsíc Získejte výhodnou HYPOTÉKU

(Poplatky za služby (paušál) 20.000 Kč/měsíc + vlastní spotřeba elektřiny a plynu + DPH; parkovací místo 5.000 Kč/měsíc + DPH)

Prověřené firmy v Praze 2

Stěhovací služby

Výkup a prodej starého nábytku

Informace k nemovitosti

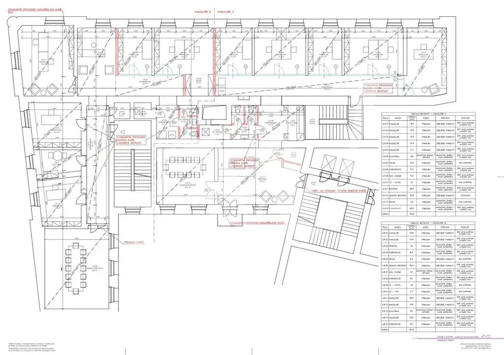
K pronájmu nabízíme novou moderní kancelář, která bude připravena k okamžitému užívání, o velikosti 379 m2 umístěnou ve 1.patře budovy LAZARSKÁ 6 spolu se 4 parkovacími místy.

Dispozice zahrnuje:
• 2x vstupní recepci (mohou být 2 samostatné vstupy)
• 2x zasedací místnost
• 10 samostatných kanceláří
• vlastní sociálky
• 2x kuchyňku
• skládek

Prostor prochází celkovou kvalitní rekonstrukcí (povrchy, podlahy, stěny, toalety atd.):
• v kanceláři bude příprava na klimatizaci
• příprava na osazení světel v jednotlivých kancelářích
• vytápění novým samostatných plynovým kotlem
• vinyl a koberce na podlahách
• čelní příčky do kanceláří budou skleněné
• v budově je výtah
• recepce / ostraha 24/7

Poplatky za služby (kancelář): 20.000 Kč/měsíc (paušál) + vlastní spotřeba elektřiny a plynu + DPH.

Parkování: 4 místa (zakladač). Vjezd z ul. Omladinářů. Nájemné: 5.000 Kč/místo/měsíc + DPH.

Doba nájmu: min. 3 roky.

K dispozici dohodou (předpoklad od 1.4.2026).

NÁJEMCE NEHRADÍ PROVIZI.

Parametry nemovitosti

Cena
18,5 Kč /za metr čtvereční / měsíc
Poznámka k ceně
Poplatky za služby (paušál) 20.000 Kč/měsíc + vlastní spotřeba elektřiny a plynu + DPH; parkovací místo 5.000 Kč/měsíc + DPH
Aktualizováno
20. 2. 2026
Adresa
Lazarská, Praha, Nové Město
ID
00114-3
Stavba
Cihlová
Stav objektu
Velmi dobrý
Patro
2.
Vybaveno
Ne
Užitná plocha
379 m2
Třída energetické náročnosti
G - Mimořádně nehospodárná
Výtah
Parkování

Kontaktovat makléře

Máte zájem o tuto nemovistost?

Tímto, v souladu s nařízením Evropského parlamentu a Rady (EU) 2016/679, v platném znění, prohlašuji, že mi je alespoň 16 let a uděluji tak svůj souhlas se zpracováním zadaných údajů (jméno, telefon, e-mail, ip adresa) společnosti B3 Technology, s.r.o., IČ: 07330600, se sídlem Novostavby 126/23, 435 11 Lom (správce dat), za účelem předání dotazu z tohoto formuláře Vámi vybranému inzerentovi a zpětného kontaktování mé osoby. Osobní údaje bude správce zpracovávat manuálně i automaticky přímo prostřednictvím svých zaměstnanců. Informace předané tímto formulářem budou uloženy v databázi správce maximálně po dobu 10 let. Odvolání souhlasu s uložením a zpracováním poskytnutých dat lze e-mailem na info@realitypro.eu. V případě podezření na neoprávněné použití Vámi poskytnutých údajů máte právo předat podnět k šetření Úřadu pro ochranu osobních údajů. Více informací
Chystáte se prodat nemovitost?
Pomůžeme Vám!

Inzerát si prohlédlo 0 lidí

Prodejce

Katarina Wojtusiak, MRICS

Katarina Wojtusiak, MRICS

Hlídací pes

Chcete dostávat emailem podobné nabídky pronájmu kanceláří v Praze 2?

Podobné nemovitosti