Prodej bytu 3+kk, Dolní Lánov, 92 m2

Dolní Lánov

6 990 000 Kč /za nemovitost HYPOTÉKA od 31 241 Kč /za měsíc
Prověřené firmy v Dolním Lánově

Informace k bytu

Nabízíme k prodeji byt v řadovém rodinném domě o dispozici 3kk. Dům obsahuje celkem tři byty, každý se svým vlastních vchodem. Dispozičně je byt rozdělen do dvou podlaží- přízemí a podkroví. Ke každému bytu náleží parkovací stání, vlastní předzahrádka a podíl na společné zahradě za domem.
Dům se nachází v centru obce Dolní Lánov, přímo proti základní škole.

Dispozice a vybavení:
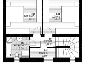
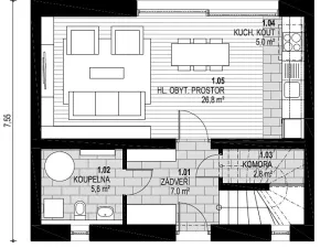
V přízemí se nachází malá koupelna, komora a obývací pokoj s kuchyňským koutem – otevřený prostor s přímým výstupem na terasu a zahradu. V patře pak dvě samostatné ložnice, koupelna s WC a další úložné prostory.

Technický standard:
Nízkoenergetická konstrukce s kvalitní izolací
Moderní vytápění (tepelné čerpadlo a teplovodní podlahové vytápění)
Plastová okna s izolačním trojsklem

Parametry bytu

Cena
6 990 000 Kč /za nemovitost Spočítat hypotéku
Aktualizováno
19. 2. 2026
Adresa
Dolní Lánov
Stavba
Cihlová
Stav objektu
Projekt
Patro
1. z 2
Lokalita objektu
Centrum obce
Vlastnictví
Osobní
Užitná plocha
92 m2
Zastavěná plocha
67 m2
Podlahová plocha
152 m2
Plocha zahrady
60 m2
Elektřina
230V
Odpad
ČOV pro celý objekt
Komunikace
Asfaltová
Doprava
Silnice, Autobus
Voda
Vodovod
Topné těleso
Podlahové vytápění
Zdroj topení
Elektrokotel, Tepelné čerpadlo
Zdroj teplé vody
Elektrokotel, Tepelné čerpadlo
Terasa
Parkování

Kontaktovat makléře

Realitní kancelář

ABM REAL

V Korytech 3234/18a, Praha

Chystáte se prodat nemovitost?
Pomůžeme Vám!

Máte zájem o tento byt?

Tímto, v souladu s nařízením Evropského parlamentu a Rady (EU) 2016/679, v platném znění, prohlašuji, že mi je alespoň 16 let a uděluji tak svůj souhlas se zpracováním zadaných údajů (jméno, telefon, e-mail, ip adresa) společnosti B3 Technology, s.r.o., IČ: 07330600, se sídlem Novostavby 126/23, 435 11 Lom (správce dat), za účelem předání dotazu z tohoto formuláře Vámi vybranému inzerentovi a zpětného kontaktování mé osoby. Osobní údaje bude správce zpracovávat manuálně i automaticky přímo prostřednictvím svých zaměstnanců. Informace předané tímto formulářem budou uloženy v databázi správce maximálně po dobu 10 let. Odvolání souhlasu s uložením a zpracováním poskytnutých dat lze e-mailem na info@realitypro.eu. V případě podezření na neoprávněné použití Vámi poskytnutých údajů máte právo předat podnět k šetření Úřadu pro ochranu osobních údajů. Více informací
Chystáte se prodat nemovitost?
Pomůžeme Vám!

Inzerát si prohlédlo 0 lidí

Prodejce

Zdeněk Pražan

Zdeněk Pražan

Hlídací pes

Chcete dostávat emailem podobné nabídky prodeje bytů 3+kk v Dolním Lánově?

Podobné nemovitosti