Pronájem kanceláře, Šumperk, Dr. E. Beneše, 130 m2 (ID: 2809338)

Dr. E. Beneše, Šumperk

180 Kč /za metr čtvereční / měsíc Získejte výhodnou HYPOTÉKU
Prověřené firmy v Šumperku

Informace k nemovitosti

Hledáte vhodné kancelářské prostory pro Vaše podnikání v centru města Šumperk? Kancelář je pro produktivitu nezbytná a je také místem pro upevňování a budování pracovních vztahů. Vytvořte si motivující pracovní prostředí.

V budově Komerční banky je k dispozici několik kanceláří. Budova se nachází v samotném centru Šumperka na ulici Dr. E. Beneše. Samozřejmě v pěší dostupnosti nechybí veškerá občanská vybavenost od úřadů přes poštu až po banky a pojišťovny.

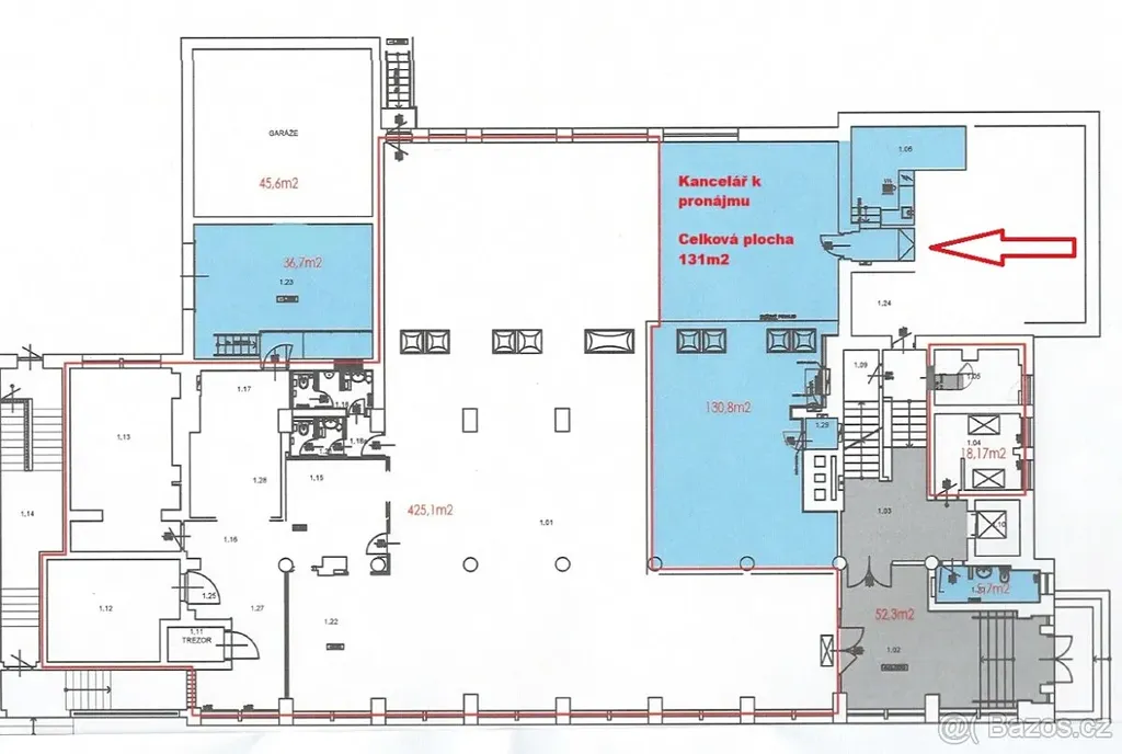
Aktuální nabídka:

4.NP s výtahem: PRONAJATO
- kancelář č. 1 s celkovou výměrou 42m2 ( předělena příčkou na dvě kanceláře (2x 21m2). Kanceláře je možné pronajmout pouze jako celek
- kancelář č. 2 s celkovou výměrou 21m2
- kancelář č. 3 s celkovou výměrou 43m2 ( předělena příčkou na dvě kanceláře kanceláře. Kanceláře lze pronajmout pouze jako celek
- sociální zázemí + kuchyňka na chodbě

1.NP: K DISPOZICI
- kancelář č. 4 s velkorysou výměrou 130m2 (disponuje kuchyňkou a archivem).
- sociální zázemí na patře

Měsíční nájemné činí 180Kč/m2 + energie zálohově 2.000Kč/měsíc (s ročním vyúčtováním).
Možnost parkování na parkovišti Obchodního centra Praděd - 1 000Kč/měsíc
Ideální pro všechny, pro koho bude přínosem možnost využívat výtahy vč. bezbariérového a parkoviště naproti budovy.

Prostory jsou ihned k dispozici, prohlídky po předchozí dohodě.
Benefitem tohoto komerčního prostoru je bezesporu již zmíněná poloha v centru města.

Parametry nemovitosti

Cena
180 Kč /za metr čtvereční / měsíc
Aktualizováno
18. 2. 2026
Adresa
Dr. E. Beneše, Šumperk
Stavba
Cihlová
Stav objektu
Po rekonstrukci
Patro
4.
Užitná plocha
130 m2
Parkování

Kontaktovat makléře

Máte zájem o tuto nemovistost?

Tímto, v souladu s nařízením Evropského parlamentu a Rady (EU) 2016/679, v platném znění, prohlašuji, že mi je alespoň 16 let a uděluji tak svůj souhlas se zpracováním zadaných údajů (jméno, telefon, e-mail, ip adresa) společnosti B3 Technology, s.r.o., IČ: 07330600, se sídlem Novostavby 126/23, 435 11 Lom (správce dat), za účelem předání dotazu z tohoto formuláře Vámi vybranému inzerentovi a zpětného kontaktování mé osoby. Osobní údaje bude správce zpracovávat manuálně i automaticky přímo prostřednictvím svých zaměstnanců. Informace předané tímto formulářem budou uloženy v databázi správce maximálně po dobu 10 let. Odvolání souhlasu s uložením a zpracováním poskytnutých dat lze e-mailem na info@realitypro.eu. V případě podezření na neoprávněné použití Vámi poskytnutých údajů máte právo předat podnět k šetření Úřadu pro ochranu osobních údajů. Více informací
Chystáte se prodat nemovitost?
Pomůžeme Vám!

Inzerát si prohlédlo 0 lidí

Prodejce

Renáta Venclová

Renáta Venclová

Hlídací pes

Chcete dostávat emailem podobné nabídky pronájmu kanceláří v Šumperku?

Podobné nemovitosti