Prodej bytu 3+kk, Praha - Dejvice, Božkova, 81 m2

Božkova, Praha, Dejvice

14 750 000 Kč /za nemovitost HYPOTÉKA od 65 924 Kč /za měsíc
Prověřené firmy v Praze 6

Stěhovací služby

Výkup a prodej starého nábytku

Informace k bytu

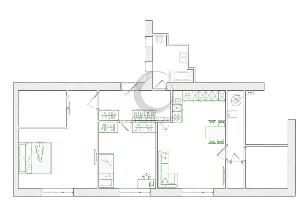
Prodej bytu 3+kk o celkové ploše 81 m2, který právě prochází celkovou rekonstrukcí - klient si nyní může vybrat standard (podlahy, obklady, apod.). Dokončení rekonstrukce: 05/26. Cena bytu je po dokončení celkové rekonstrukce = žádné další náklady.

V galerii naleznete půdorys budoucího stavu a také orientační fotografie.

Elegantní a světlý byt se nachází ve 4. patře cihlového domu BEZ výtahu.

Díky pečlivé rekonstrukci, moderním technologiím a promyšlenému designu je tento byt ideální volbou pro rodiny i náročnější zájemce hledající pohodlí bez dalších investic.

Dispozice a vybavení:
- obývací pokoj s kuchyňským koutem
- 2 ložnice poskytující dostatek soukromí
- praktická šatna
- koupelna s vanou a tolaetou
- technická místnost (pračka + kotel)

Kvalitní rekonstrukce:

- kompletně nová elektroinstalace
- vinylová podlaha v dekoru parket
- moderní kuchyňská linka s vestavěnou myčkou, lednicí a mrazničkou, indukční varnou deskou a horkovzdušnou troubou
- úsporné LED osvětlení v celém bytě
- podlahové vytápění v koupelně pro maximální komfort

Moderní technologie a stylové detaily:
- Geberitový systém šetřící spotřebu vody až o 50 %
- Černé koupelnové doplňky s PVD úpravou odolné proti poškrábání a korozi
- Designové obklady inspirované japonským uměním Kintsugi originální prvek, který dodává interiéru jedinečný charakter

Byt bude připraven k nastěhování bez další nutné investice

Financování:
Lze financovat hypotékou - osobní vlastnictví.

Parametry bytu

Cena
14 750 000 Kč /za nemovitost Spočítat hypotéku
Aktualizováno
17. 2. 2026
Adresa
Božkova, Praha, Dejvice
ID
10875
Stavba
Cihlová
Stav objektu
Po rekonstrukci
Patro
5. z 6
Vlastnictví
Osobní
Užitná plocha
81 m2
Podlahová plocha
81 m2
Třída energetické náročnosti
E - Nehospodárná
Bezbarierový přístup

Kontaktovat makléře

Máte zájem o tento byt?

Tímto, v souladu s nařízením Evropského parlamentu a Rady (EU) 2016/679, v platném znění, prohlašuji, že mi je alespoň 16 let a uděluji tak svůj souhlas se zpracováním zadaných údajů (jméno, telefon, e-mail, ip adresa) společnosti B3 Technology, s.r.o., IČ: 07330600, se sídlem Novostavby 126/23, 435 11 Lom (správce dat), za účelem předání dotazu z tohoto formuláře Vámi vybranému inzerentovi a zpětného kontaktování mé osoby. Osobní údaje bude správce zpracovávat manuálně i automaticky přímo prostřednictvím svých zaměstnanců. Informace předané tímto formulářem budou uloženy v databázi správce maximálně po dobu 10 let. Odvolání souhlasu s uložením a zpracováním poskytnutých dat lze e-mailem na info@realitypro.eu. V případě podezření na neoprávněné použití Vámi poskytnutých údajů máte právo předat podnět k šetření Úřadu pro ochranu osobních údajů. Více informací
Chystáte se prodat nemovitost?
Pomůžeme Vám!

Inzerát si prohlédlo 0 lidí

Prodejce

Terezie Dittrichová, MBA

Terezie Dittrichová, MBA

Hlídací pes

Chcete dostávat emailem podobné nabídky prodeje bytů 3+kk v Praze 6?

Podobné nemovitosti