Prodej bytu 3+kk, Praha - Vinohrady, Rejskova, 97 m2

Rejskova, Praha, Vinohrady

17 900 000 Kč /za nemovitost HYPOTÉKA od 80 002 Kč /za měsíc
Prověřené firmy v Praze 2

Stěhovací služby

Výkup a prodej starého nábytku

Informace k bytu

Jedinečný byt s architektonickým charakterem na Vinohradech – u parku Folimanka

Architektonické studio BekArch s.r.o. ve spolupráci se stavební společností 4interior&tiles s.r.o. nabízí architektonicky navržený byt v atraktivní části Prahy, na rozhraní Vinohrad, pár kroků od parku Folimanka.

Hledáte výjimečné bydlení?
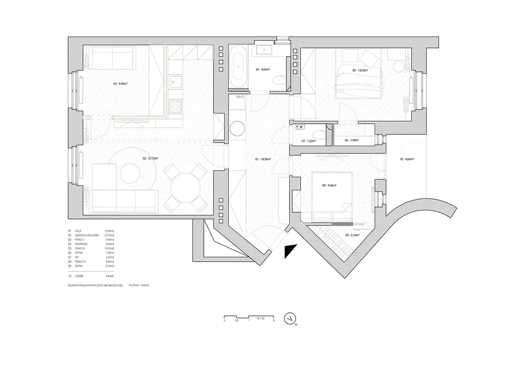
Světlý byt 3+kk o ploše 92 m² s možností úpravy na 4+kk a lodžií 5 m² se nachází na rohu ulic Rejskova a Na Folimance. Prošel kompletní náročnou rekonstrukcí dle návrhu architekta a je dokončen v developerském standardu, připravený k okamžitému nastěhování – nové koupelny, dubové parkety a kvalitní vybavení jsou samozřejmostí.

Čím vyniká?

Prostorný obývací pokoj s kuchyňským koutem ideální pro rodinu i přátele

Ložnice do klidného vnitrobloku pro nerušený odpočinek

Kvalitní materiály a zachované detaily: nové dubové parkety, špaletová okna, repasované dveře, prémiové obklady

Možnost volby dispozice 3+kk nebo 4+kk

Hlavní benefity:

Úpravy interiéru s architektem

Prodej bez provize – přímo od majitele

Skvělá dopravní dostupnost a plná občanská vybavenost

Park Folimanka za rohem

Možnost dokončení interiéru na klíč (není v ceně)

Bydlení s elegancí a promyšleným prostorem v lokalitě, která má jméno.
Kontaktujte nás a domluvte si prohlídku – tato příležitost nemusí dlouho čekat.

Parametry bytu

Cena
17 900 000 Kč /za nemovitost Spočítat hypotéku
Aktualizováno
17. 2. 2026
Adresa
Rejskova, Praha, Vinohrady
ID
2601
Stavba
Cihlová
Stav objektu
Novostavba
Patro
3.
Vybaveno
Ne
Lokalita objektu
Klidná část obce
Vlastnictví
Osobní
Užitná plocha
97 m2
Doprava
Vlak, Silnice, MHD
Sklep
Lodžie
Výtah

Kontaktovat makléře

Realitní kancelář

BekArch

Vinohradská 35/25, Praha

Chystáte se prodat nemovitost?
Pomůžeme Vám!

Máte zájem o tento byt?

Tímto, v souladu s nařízením Evropského parlamentu a Rady (EU) 2016/679, v platném znění, prohlašuji, že mi je alespoň 16 let a uděluji tak svůj souhlas se zpracováním zadaných údajů (jméno, telefon, e-mail, ip adresa) společnosti B3 Technology, s.r.o., IČ: 07330600, se sídlem Novostavby 126/23, 435 11 Lom (správce dat), za účelem předání dotazu z tohoto formuláře Vámi vybranému inzerentovi a zpětného kontaktování mé osoby. Osobní údaje bude správce zpracovávat manuálně i automaticky přímo prostřednictvím svých zaměstnanců. Informace předané tímto formulářem budou uloženy v databázi správce maximálně po dobu 10 let. Odvolání souhlasu s uložením a zpracováním poskytnutých dat lze e-mailem na info@realitypro.eu. V případě podezření na neoprávněné použití Vámi poskytnutých údajů máte právo předat podnět k šetření Úřadu pro ochranu osobních údajů. Více informací
Chystáte se prodat nemovitost?
Pomůžeme Vám!

Inzerát si prohlédlo 0 lidí

Prodejce

Mgr. Kateřina Bek

Mgr. Kateřina Bek

Hlídací pes

Chcete dostávat emailem podobné nabídky prodeje bytů 3+kk v Praze 2?

Podobné nemovitosti