Prodej bytu 1+1, Mšené-lázně, Mládežnická, 33 m2

Mládežnická, Mšené-lázně

1 998 000 Kč /za nemovitost HYPOTÉKA od 8 930 Kč /za měsíc

(včetně DPH, včetně provize, včetně právního servisu)

Prověřené firmy v Mšeném

Okna a dveře

Rekonstrukce

Informace k bytu

Hledáte bezpečné a pohodové bydlení nejen ve vyšším věku, kde máte vše důležité doslova na dosah ruky?

Nebo zvažujete smysluplnou investici do nemovitosti s dlouhodobým a stabilním využitím?

Nabízím bytové jednotky situované pouhých 550 metrů od areálu oblíbených Lázní Mšené, který poskytuje ideální zázemí pro seniory i osoby hledající klid a dostupnou péči.

Bytové jednotky vhodné nejen k lázeňským pobytům, ale i běžnému dlouhodobému pronájmu s možností využití zvýhodněných lázeňských služeb.

Výhody bydlení pro seniory:
- přímá vazba na lázeňskou a lékařskou péči
- dostupné služby: lékař, masáže, wellness, stravování, úklid a další
- bezbariérový přístup u domu Fanda a klidné prostředí uzavřeného areálu
- možnost kulturních a společenských aktivit v areálu lázní
- pocit bezpečí a jistoty každodenního fungování

Investiční potenciál:
- dlouhodobě atraktivní lokalita se stálou poptávkou bydlení pro seniory
- možnost dlouhodobého pronájmu (některé jednotky jsou již obsazené)
- nízké provozní náklady díky menším dispozicím
- stabilní výnos bez nutnosti náročné správy (možná dohoda přímo s provozovatelem lázní)

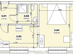
Nabízený byt č. 3 se nachází v domě Fanda a je řešen jako 1+1 o výměře 33,3 m², ideální pro jednotlivce. K bytu náleží parkovací stání (není součástí ceny) a je zde možnost přikoupení zahrádky.

Dům Fanda prošel úpravou, nejedná se o novostavbu, ale o tvz. "second-hand" nemovitost. Byl přizpůsoben malometrážnímu, pohodlnému a bezpečnému bydlení s vazbou na lázeňský areál. Jedná se o jednopodlažní, částečně podsklepený objekt, který je bezbariérově přístupný.

V domě Fanda se nachází:
- šest bytových jednotek 1+kk (od velikosti 21,9 m2 do 33,3 m2)
- pět bytových jednotek 1+1, přičemž některé lze využít jako 2+kk (od velikosti 37,8 m2 do 56,2 m2)
- součástí každé bytové jednotky je chodba, sociální zázemí, kuchyně vč. obytné místnosti (u některých dvě)
- společné prostory jsou tvořeny vstupním zádveřím, chodbou s druhým únikovým východem, technickou místností pro osobu zajištující úklid společných prostor, místností na kočárky a kola, sušárnou a vstupem do technické místnosti umístěné v 1. podzemním podlaží (dům je pouze částečně podsklepen), ve které jsou umístěny zásobníky TUV.
- každý byt má vlastní topení (přímotopy)
- ohřev teplé vody je společný pro celý dům

Okolí lázní nabízí klidnou přírodu, léčivé prostředí a více možností pro procházky, lehkou turistiku i cyklistiku. Za zmínku stojí hora Říp, zámek Libochovice, centrum Litoměřic, torzo Panenský Týnec, Oldřichův dub v Peruci, či hrad Házmburk. V blízké Ředhošti se pravidelně konají tradiční nedělní trhy.

Dobrá dopravní dostupnost do Slaného, Roudnice nad Labem i Prahy (autem i autobusovým spojením).

Nemovitost je bez právních omezení. Možnost financování hypotečním úvěrem, který vám rádi zajistíme.

Parametry bytu

Cena
1 998 000 Kč /za nemovitost Spočítat hypotéku
Poznámka k ceně
včetně DPH, včetně provize, včetně právního servisu
Aktualizováno
6. 3. 2026
Adresa
Mládežnická, Mšené-lázně
ID
N05797
Stavba
Cihlová
Stav objektu
Dobrý
Patro
1.
Vybaveno
Částečně
Vlastnictví
Osobní
Užitná plocha
33 m2
Podlahová plocha
33 m2
Třída energetické náročnosti
C - Úsporná
Ukazatel energetické náročnosti
108 kWh/m2 za rok
Elektřina
230V
Odpad
Veřejná kanalizace
Doprava
Silnice
Voda
Vodovod

Kontaktovat makléře

Máte zájem o tento byt?

Tímto, v souladu s nařízením Evropského parlamentu a Rady (EU) 2016/679, v platném znění, prohlašuji, že mi je alespoň 16 let a uděluji tak svůj souhlas se zpracováním zadaných údajů (jméno, telefon, e-mail, ip adresa) společnosti B3 Technology, s.r.o., IČ: 07330600, se sídlem Novostavby 126/23, 435 11 Lom (správce dat), za účelem předání dotazu z tohoto formuláře Vámi vybranému inzerentovi a zpětného kontaktování mé osoby. Osobní údaje bude správce zpracovávat manuálně i automaticky přímo prostřednictvím svých zaměstnanců. Informace předané tímto formulářem budou uloženy v databázi správce maximálně po dobu 10 let. Odvolání souhlasu s uložením a zpracováním poskytnutých dat lze e-mailem na info@realitypro.eu. V případě podezření na neoprávněné použití Vámi poskytnutých údajů máte právo předat podnět k šetření Úřadu pro ochranu osobních údajů. Více informací
Chystáte se prodat nemovitost?
Pomůžeme Vám!

Inzerát si prohlédlo 5 lidí

Prodejce

Bc. Milan Mattanelli

Bc. Milan Mattanelli

Hlídací pes

Chcete dostávat emailem podobné nabídky prodeje bytů 1+1 v Mšeném?

Podobné nemovitosti