Pronájem bytu 2+kk, Jablonec nad Nisou, Jezdecká, 83 m2

Jezdecká, Jablonec nad Nisou

24 800 Kč /za měsíc Získejte výhodnou HYPOTÉKU

(měsíční poplatky mimořádně nízké náklady - úsporná novostavba - veškeré moderní technologii)

Prověřené firmy v Jablonci nad Nisou

Rekonstrukce

Úklidové služby

Informace k bytu

NOVOSTAVBA - slunný byt 2+kk, nádherná terasa v posledním podlaží domu + parking

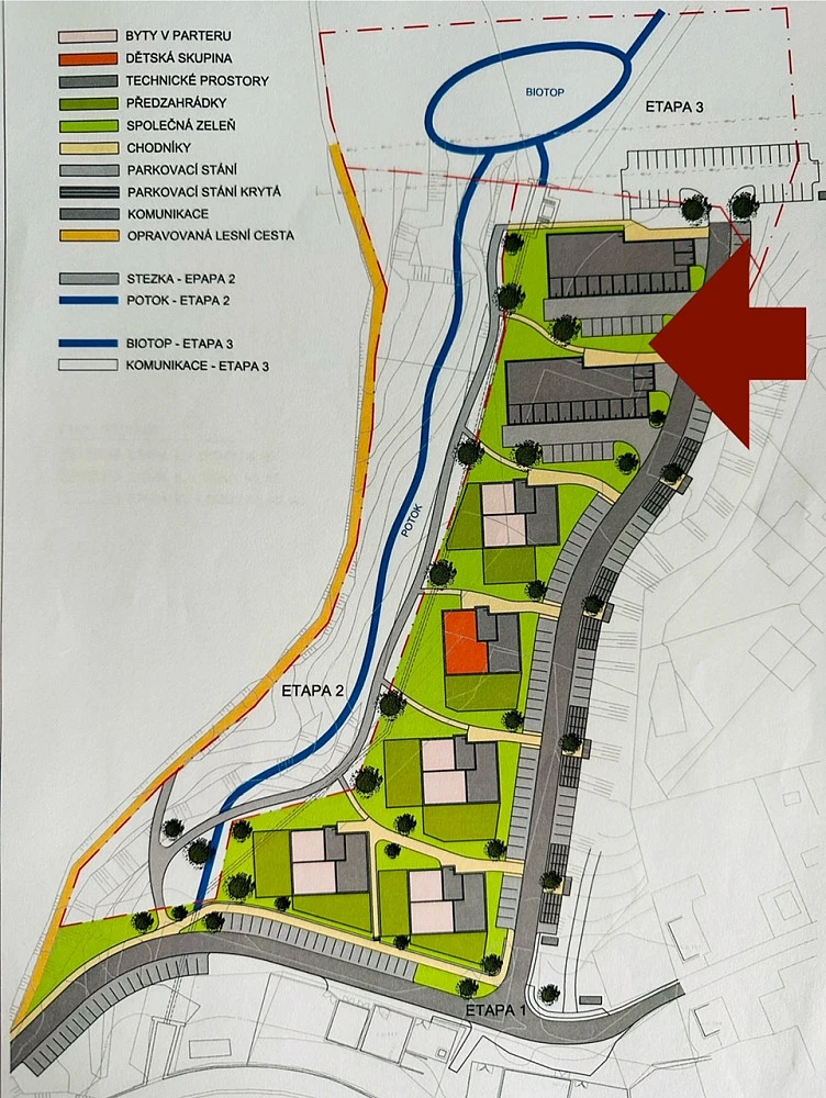
Dlouhodobý pronájem zcela nového bytu 2+kk (54 m²) s obdivuhodnou terasou v posledním podlaží (5.nadzemním podlaží) bytového domu B7 – okraj výstavby -kolaudace proběhne v tomto měsíci. V ceně nájmu je již zahrnuto 1 vyhrazené kryté parkovací stání. Jižní orientace terasy (29 m²) nabízí vstupy z obou pokojů, jedinečný prostor pro relax a veškerý komfort moderního bydlení, kdy na terase budou předem připraveny konstrukce pro růst vlastních popínavých rostlin. Samotný obývací pokoj (28 m²) s moderní kuchyňskou linkou v bílo-šedém designu, neprůchozí ložnice (15 m²), koupelna s vanou, WC zcela odděleno. K dispozici je bezpečná a prostorná sklepní koje nadstandardní velikosti 7,23 m² včetně jednoho krytého parkovacího stání. Součástí výstavby bude dokonalá parková úprava rezidenčního bytového komplexu – nově přiznaný tok potoka s lávkami, malý biotop, vybudovaná cyklostezka, bike park, gril pointy, dětské hřiště s prvky venkovní posilovny.

Nabízíme nový směr v bydlení v prvním domě - stavba s nejlepším energetickým štítkem PENB nejúspornější třída „A“, která v kombinaci s technologiemi přináší opravdu výraznou úsporu provozních nákladů - částečně energeticky soběstačné bydlení podporující komunitní energetiku. Aplikace BMS – building management systém - v domě je připraven unikátní informační systém řízení a sledování provozu domu - spotřeb, měření a regulace, který prostřednictvím mobilní aplikace umožňuje uživatelům poskytovat průběžné informace o spotřebách energií, přehledy o měsíčních spotřebách a možnosti nastavení teploty i chlazení a sledování stavů teploty v bytě se vzdáleným přístupem z mobilní aplikace.

Moderní nadčasový projekt 7 bytových domů v západní části města Jablonce nad Nisou / Rýnovice / Jezdecká ulice - přímo pod Prosečským hřebenem – nadstandardní rezidenční bydlení volně navazuje na stávající výstavbu ve vyhledávané lokalitě Horní Proseče. Jednoznačnou předností lokality je její těsné sousedství s Prosečským hřebenem, na dohled známé turistické stezky „Vyhlídkový jablonecký okruh“ (16,3 km), les včetně naučné stezky „Po stopách 2 světové války“ a bývalého lesního divadla - po 2,5 km se dostanete značenými turistickými cestami přímo k Prosečské chatě – výletní restaurace s původní kamennou rozhlednou (593 m.n.m.) – nově otevřeno 20.8.2018 – dominanta Prosečského hřebenu.
Neopomenutelnou prioritou je výborná docházková vzdálenost do Obchodního centra RÝNOVKA - supermarket, pošta, bankomat, lékárna, denní restaurace, dětský klub. Ve stejné vzdálenosti najdete i hobby market, čerpací stanici, tenisový areál s letní restaurací a zastávku MHD (bus č.114 / trasa Horní Proseč – autobusové nádraží – Jablonecké Paseky).
Další dopravním spojem MHD (bus č.101) se dostanete do horského střediska Bedřichov – srdce Jizerských hor a nástupního místa Jizerské magistrály / běžecké tratě vedoucí na Novou Louku a dále směrem na Kristiánov, Knajpu, Smědavu, Jizerku. V létě slouží Bedřichov jako výchozí místo pro lehkou turistiku a tradiční cykloturistiku včetně koupání na Černé Nise.

Nespočet kulturních a sportovních možností nabízí blízkost města Liberce / dojezd 8 km – výstup na ikonický JEŠTED, Aquapark Babylon s originálním interiérem ve stylu steampunku, laser show, wellness SAUNIA, moderní vědecko-zábavní centrum pro děti iQLANDIA, DINOPARK, Technické muzeum, nejstarší Zoologická zahrada v Čechách, tři divadla, dvě multikina, velká nákupní centra.
K nastěhování duben-květen 2026, kvalitní nájemní smlouva ze strany majitele bytu zaručena – max. počet osob v bytě 2, domácí mazlíček po dohodě. Doporučujeme jako manažerské bydlení - spokojenost a úplná pohoda - záruka klidu posledního podlaží domu. Prohlídka právě se dokončující novostavby dle následné dohody.

Parametry bytu

Cena
24 800 Kč /za měsíc
Poznámka k ceně
měsíční poplatky mimořádně nízké náklady - úsporná novostavba - veškeré moderní technologii
Aktualizováno
12. 2. 2026
Adresa
Jezdecká, Jablonec nad Nisou
ID
114
Stavba
Skeletová
Stav objektu
Novostavba
Vybaveno
Částečně
Lokalita objektu
Klidná část obce
Vlastnictví
Družstevní
Užitná plocha
83 m2
Třída energetické náročnosti
A - Mimořádně úsporná

Kontaktovat makléře

Máte zájem o tento byt?

Tímto, v souladu s nařízením Evropského parlamentu a Rady (EU) 2016/679, v platném znění, prohlašuji, že mi je alespoň 16 let a uděluji tak svůj souhlas se zpracováním zadaných údajů (jméno, telefon, e-mail, ip adresa) společnosti B3 Technology, s.r.o., IČ: 07330600, se sídlem Novostavby 126/23, 435 11 Lom (správce dat), za účelem předání dotazu z tohoto formuláře Vámi vybranému inzerentovi a zpětného kontaktování mé osoby. Osobní údaje bude správce zpracovávat manuálně i automaticky přímo prostřednictvím svých zaměstnanců. Informace předané tímto formulářem budou uloženy v databázi správce maximálně po dobu 10 let. Odvolání souhlasu s uložením a zpracováním poskytnutých dat lze e-mailem na info@realitypro.eu. V případě podezření na neoprávněné použití Vámi poskytnutých údajů máte právo předat podnět k šetření Úřadu pro ochranu osobních údajů. Více informací
Chystáte se prodat nemovitost?
Pomůžeme Vám!

Inzerát si prohlédlo 3 lidí

Prodejce

Lenka Svobodová

Lenka Svobodová

Hlídací pes

Chcete dostávat emailem podobné nabídky pronájmu bytů 2+kk v Jablonci nad Nisou?

Podobné nemovitosti