Pronájem bytu 1+kk, Chrudim, Podkopanický mlýn, 30 m2

Podkopanický mlýn, Chrudim II

12 000 Kč /za měsíc Získejte výhodnou HYPOTÉKU

(+ energie a služby (3.000,-Kč))

Prověřené firmy v Chrudimi

Informace k bytu

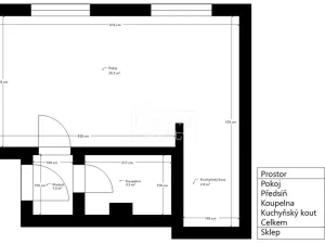
Pronájem bytu 1+kk (30,3m2) v rezidenci Podkopanický mlýn v Chrudimi. Byt se nachází ve 3.podlaží. Na adrese Podkopanický mlýn 1135, Chrudim. By se nachází v novostavbě z roku 2019, v pěkném místě, kousek od centra Města. Přístup do bytu je bezbariérový. V přízemí objektu jsou krytá parkovací stání. Byt má následující dispozici : předsíň, koupelna s vanou a toaletou, obývací pokoj s dvěma velkými francouzskými dřevěnými eurookny, v šedé barvě. Kuchyňský kout s vybavenou kuchyňskou linkou. V přízemí je k bytu sklep o ploše 1,5 m2. V domě je společná kolárna. Prohlídky jsou možné po dohodě s makléřem. ID 113526.

Parametry bytu

Cena
12 000 Kč /za měsíc
Poznámka k ceně
+ energie a služby (3.000,-Kč)
Náklady na bydlení
3000
Aktualizováno
11. 2. 2026
Adresa
Podkopanický mlýn, Chrudim II
ID
717
Stavba
Cihlová
Stav objektu
Velmi dobrý
Patro
3. z 7
Vybaveno
Ano
Lokalita objektu
Klidná část obce
Vlastnictví
Osobní
Užitná plocha
30 m2
Podlahová plocha
30 m2
Třída energetické náročnosti
B - Velmi úsporná
Ukazatel energetické náročnosti
79 kWh/m2 za rok
Elektřina
230V
Odpad
Veřejná kanalizace
Topení
Ústřední dálkové
Telekomunikace
Internet
Doprava
Vlak, Dálnice, MHD, Autobus
Voda
Vodovod
Sklep
Výtah
Bezbarierový přístup
Parkování

Kontaktovat makléře

Máte zájem o tento byt?

Tímto, v souladu s nařízením Evropského parlamentu a Rady (EU) 2016/679, v platném znění, prohlašuji, že mi je alespoň 16 let a uděluji tak svůj souhlas se zpracováním zadaných údajů (jméno, telefon, e-mail, ip adresa) společnosti B3 Technology, s.r.o., IČ: 07330600, se sídlem Novostavby 126/23, 435 11 Lom (správce dat), za účelem předání dotazu z tohoto formuláře Vámi vybranému inzerentovi a zpětného kontaktování mé osoby. Osobní údaje bude správce zpracovávat manuálně i automaticky přímo prostřednictvím svých zaměstnanců. Informace předané tímto formulářem budou uloženy v databázi správce maximálně po dobu 10 let. Odvolání souhlasu s uložením a zpracováním poskytnutých dat lze e-mailem na info@realitypro.eu. V případě podezření na neoprávněné použití Vámi poskytnutých údajů máte právo předat podnět k šetření Úřadu pro ochranu osobních údajů. Více informací
Chystáte se prodat nemovitost?
Pomůžeme Vám!

Inzerát si prohlédlo 0 lidí

Prodejce

Bc. Josef Černý

Bc. Josef Černý

Hlídací pes

Chcete dostávat emailem podobné nabídky pronájmu bytů 1+kk v Chrudimi?

Podobné nemovitosti