Pronájem bytu 2+1, Praha - Břevnov, Na Petřinách, 58 m2

Na Petřinách, Břevnov - Praha 6

19 900 Kč /za měsíc Získejte výhodnou HYPOTÉKU

(vratná jistota, náklady na bydlení 5 269 Kč, poplatek za podnájem)

Prověřené firmy v Praze 6

Stěhovací služby

Výkup a prodej starého nábytku

Informace k bytu

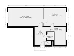
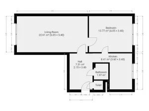
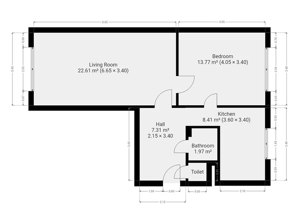
K dlouhodobému podnájmu nabízíme světlý byt o dispozici 2+1 v oblíbené rezidenční lokalitě Praha 6 – Břevnov, v ulici Na Petřinách. Byt o celkové ploše 58 m² se nachází v 1. patře udržovaného panelového domu bez výtahu. K bytu náleží sklepní kóje.

Byt je částečně vybavený a nabízí dostatek prostoru pro zařízení podle vlastních představ. Kuchyně je vybavena lednicí s mrazákem, myčkou, troubou, varnou deskou, mikrovlnnou troubou, digestoří a pračkou. Obývací pokoj je nezařízený, v ložnici je k dispozici šatní skříň.

V koupelně se nachází vana, umyvadlo se zrcadlem a koupelnová skříňka. Toaleta je umístěna samostatně. V předsíni je botník a vestavěná skříň s dostatkem úložného prostoru.

Velkou výhodou bytu je jeho poloha v klidné části Prahy 6 s množstvím zeleně. Lokalita Petřiny patří dlouhodobě mezi velmi vyhledávané díky příjemnému rezidenčnímu charakteru a výborné občanské vybavenosti. V docházkové vzdálenosti se nachází restaurace, kavárny, supermarkety, drogerie, lékárna, pošta i městská knihovna.

Blízké okolí nabízí také řadu možností pro procházky a sport – například Břevnovskou klášterní zahradu, Zámecký park Veleslavín, Oboru Hvězda nebo park Ladronka.

Dopravní dostupnost je velmi dobrá – v docházkové vzdálenosti se nachází stanice metra A – Petřiny i tramvajové zastávky, které zajišťují rychlé spojení do centra města.

Byt je vhodný zejména pro jednotlivce nebo pár, kteří hledají klidné bydlení v příjemné lokalitě s dostatkem zeleně a výbornou dostupností do centra.

Majitel preferuje zájemce bez domácích mazlíčků.

Byt je volný k nastěhování ihned.

Prohlídky jsou možné po domluvě. V případě zájmu nám napište krátkou zprávu o sobě a rádi se vám ozveme s termínem prohlídky.

Energetická náročnost budovy: třída D (méně úsporná).

Parametry bytu

Cena
19 900 Kč /za měsíc
Poznámka k ceně
vratná jistota, náklady na bydlení 5 269 Kč, poplatek za podnájem
Aktualizováno
23. 3. 2026
Adresa
Na Petřinách, Břevnov - Praha 6
ID
N7246
Stavba
Panelová
Stav objektu
Velmi dobrý
Patro
2. z 4
Vybaveno
Ne
Typ objektu
Patrový
Lokalita objektu
Klidná část obce
Vlastnictví
Osobní
Užitná plocha
58 m2
Podlahová plocha
58 m2
Třída energetické náročnosti
D - Méně úsporná
Elektřina
230V
Plyn
Plynovod
Topení
Ústřední dálkové
Doprava
Vlak, Dálnice, Silnice, MHD, Autobus
Voda
Vodovod
Sklep
Výtah

Kontaktovat makléře

Máte zájem o tento byt?

Tímto, v souladu s nařízením Evropského parlamentu a Rady (EU) 2016/679, v platném znění, prohlašuji, že mi je alespoň 16 let a uděluji tak svůj souhlas se zpracováním zadaných údajů (jméno, telefon, e-mail, ip adresa) společnosti B3 Technology, s.r.o., IČ: 07330600, se sídlem Novostavby 126/23, 435 11 Lom (správce dat), za účelem předání dotazu z tohoto formuláře Vámi vybranému inzerentovi a zpětného kontaktování mé osoby. Osobní údaje bude správce zpracovávat manuálně i automaticky přímo prostřednictvím svých zaměstnanců. Informace předané tímto formulářem budou uloženy v databázi správce maximálně po dobu 10 let. Odvolání souhlasu s uložením a zpracováním poskytnutých dat lze e-mailem na info@realitypro.eu. V případě podezření na neoprávněné použití Vámi poskytnutých údajů máte právo předat podnět k šetření Úřadu pro ochranu osobních údajů. Více informací
Chystáte se prodat nemovitost?
Pomůžeme Vám!

Inzerát si prohlédlo 9 lidí

Prodejce

Miloslava Kačerová

Miloslava Kačerová

Hlídací pes

Chcete dostávat emailem podobné nabídky pronájmu bytů 2+1 v Praze 6?

Podobné nemovitosti