Pronájem kanceláře, Mladá Boleslav - Mladá Boleslav III, Novákova, 46 m2

Novákova, Mladá Boleslav III

16 000 Kč /za měsíc Získejte výhodnou HYPOTÉKU
Prověřené firmy v Mladé Boleslavi

Informace k nemovitosti

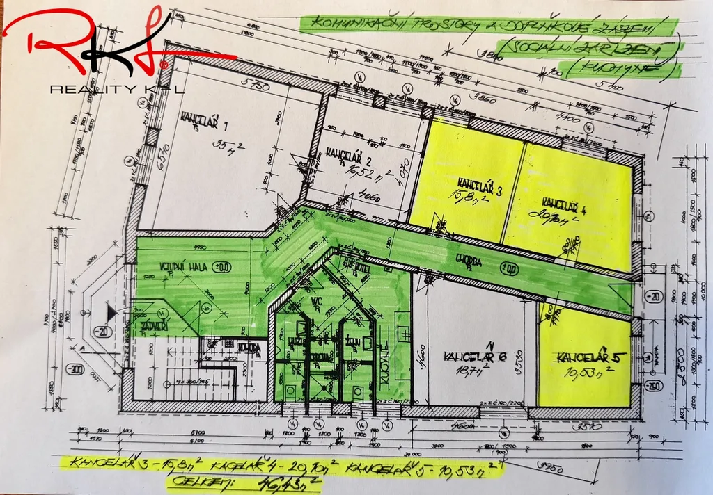
Dovolujeme si Vám nabídnout k pronájmu kancelářské - obchodní prostory, které se nacházejí v centru města Mladá Boleslav. Jedná se o tři neprůchozí místnosti o velikosti 46,5 m2. Vyznačeny na půdorysu žlutou barvou. Sdílené sociální zařízení na patře (kuchyňka + toalety se sprchou), bezpečnostní systém.

Možnost stavebních úprav s ohledem na délku nájemného vztahu a legislativu budovy. Dále je zde také další možnost oddělení a využití vlastního samostatného vstupu ze zadní části budovy.

Ústřední plynové topení. Zateplená energeticky úsporná budova s plastovými okny. Parkoviště přímo před budovou. Volné dubna 2026, po dohodě možno i dříve.

Cena pronájmu 16.000,- Kč měsíčně + zálohy za energie a služby - přibližná výše 2.800,- Kč.
Provize RK ve výši 20.000 ,- Kč hradí zájemce.
Vratná kauce 20.000,- Kč.

Objekt se nachází v klidné, příjemné lokalitě v docházkové vzdálenosti od centra, kde najdete kompletní občanskou vybavenost.

Pro více informací mě prosím kontaktujte v níže uvedeném formuláři nebo telefonicky Po-Pá 8.00 - 18.00h, v ostatních případech pomocí sms/emailu. Děkuji. Speaking English.

Parametry nemovitosti

Cena
16 000 Kč /za měsíc
Aktualizováno
9. 2. 2026
Adresa
Novákova, Mladá Boleslav III
ID
2377
Stavba
Smíšená
Stav objektu
Velmi dobrý
Vybaveno
Částečně
Typ objektu
Patrový
Lokalita objektu
Klidná část obce
Užitná plocha
46 m2
Třída energetické náročnosti
C - Úsporná
Plyn
Plynovod
Odpad
Veřejná kanalizace
Telekomunikace
Internet
Převod do OV

Kontaktovat makléře

Realitní kancelář

Logo REALITY K+L

REALITY K+L

třída T. G. Masaryka 989, Roudnice nad Labem

Chystáte se prodat nemovitost?
Pomůžeme Vám!

Máte zájem o tuto nemovistost?

Tímto, v souladu s nařízením Evropského parlamentu a Rady (EU) 2016/679, v platném znění, prohlašuji, že mi je alespoň 16 let a uděluji tak svůj souhlas se zpracováním zadaných údajů (jméno, telefon, e-mail, ip adresa) společnosti B3 Technology, s.r.o., IČ: 07330600, se sídlem Novostavby 126/23, 435 11 Lom (správce dat), za účelem předání dotazu z tohoto formuláře Vámi vybranému inzerentovi a zpětného kontaktování mé osoby. Osobní údaje bude správce zpracovávat manuálně i automaticky přímo prostřednictvím svých zaměstnanců. Informace předané tímto formulářem budou uloženy v databázi správce maximálně po dobu 10 let. Odvolání souhlasu s uložením a zpracováním poskytnutých dat lze e-mailem na info@realitypro.eu. V případě podezření na neoprávněné použití Vámi poskytnutých údajů máte právo předat podnět k šetření Úřadu pro ochranu osobních údajů. Více informací
Chystáte se prodat nemovitost?
Pomůžeme Vám!

Inzerát si prohlédlo 0 lidí

Prodejce

Libor Kašička

Libor Kašička

Hlídací pes

Chcete dostávat emailem podobné nabídky pronájmu kanceláří v Mladé Boleslavi?

Podobné nemovitosti