Remax Monarcha

Pronájem bytu 2+kk, Olomouc, Purkyňova, 62 m2

Purkyňova, Olomouc, Hodolany

17 000 Kč /za měsíc Získejte výhodnou HYPOTÉKU
Prověřené firmy v Olomouci

Informace k bytu

Pokud jste nároční a hledáte k pronájmu byt zrekonstruovaný ve vysokém standardu a navíc vybavený, tak čtěte dále. Byt o velikosti 55 m2, který je dispozičně řešen jako 2+kk je od 1.3. k dispozici.

V bytě byla udělána celková rekonstrukce, která zahrnovala nové plovoucí podlahy, krásnou koupelnu i designovou kuchyni. Byt má podlahové vytápění a je vybaven moderními světelnými prvky v kuchyni a obývacím pokoji.
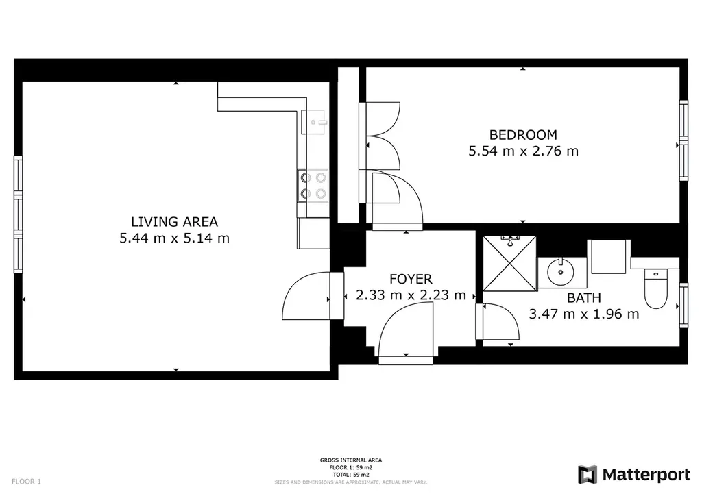
Obývací pokoj o rozměrech 28 m2 je spojen s kuchyňským koutem. V koupelně je sprchový kout a WC. Ložnice o rozměrech 15 m2 má okna orientovaná do vnitrobloku.

Byt se pronajímá plně vybavený. Obývací pokoj: pohovka, konferenční stůl, televize, jídelní stůl a 2 židle. Kuchyň: myčka, elektrický sporák, rychlovarná konvice. Ložnice: postel, noční stolky, vestavěné skříně. Koupelna: pračka.
K bytu také náleží sklep o velikosti 7 m2 a možnost vstupu na společný dvůr. Parkování je možné před domem. Hlavní vlakové nádraží je v docházkové vzdálenosti, stejně jako veškerá občanská vybavenost (obchod, restaurace, školka).

Čistý nájem je 17 000 Kč, zálohy na vodu, teplo, el. sp. prostor jsou 3 000 Kč. Internet 500 Kč. Elektřinu si nájemník přepíše na sebe. Majitel požaduje jednoměsíční kauci. Provize za zprostředkování ve výši jednoho nájmu.

Pro více informací mě, prosím, informujte.

Parametry bytu

Cena
17 000 Kč /za měsíc
Aktualizováno
3. 2. 2026
Adresa
Purkyňova, Olomouc, Hodolany
ID
974076
Stavba
Smíšená
Stav objektu
Velmi dobrý
Patro
1. z 3
Vybaveno
Ano
Vlastnictví
Osobní
Užitná plocha
62 m2
Podlahová plocha
55 m2
Třída energetické náročnosti
G - Mimořádně nehospodárná
Elektřina
230V
Topné těleso
Podlahové vytápění
Zdroj topení
Ústřední dálkové
Sklep

Kontaktovat makléře

Máte zájem o tento byt?

Tímto, v souladu s nařízením Evropského parlamentu a Rady (EU) 2016/679, v platném znění, prohlašuji, že mi je alespoň 16 let a uděluji tak svůj souhlas se zpracováním zadaných údajů (jméno, telefon, e-mail, ip adresa) společnosti B3 Technology, s.r.o., IČ: 07330600, se sídlem Novostavby 126/23, 435 11 Lom (správce dat), za účelem předání dotazu z tohoto formuláře Vámi vybranému inzerentovi a zpětného kontaktování mé osoby. Osobní údaje bude správce zpracovávat manuálně i automaticky přímo prostřednictvím svých zaměstnanců. Informace předané tímto formulářem budou uloženy v databázi správce maximálně po dobu 10 let. Odvolání souhlasu s uložením a zpracováním poskytnutých dat lze e-mailem na info@realitypro.eu. V případě podezření na neoprávněné použití Vámi poskytnutých údajů máte právo předat podnět k šetření Úřadu pro ochranu osobních údajů. Více informací
Chystáte se prodat nemovitost?
Pomůžeme Vám!

Inzerát si prohlédlo 1 lidí

Prodejce

Ing. Jiří Podešva

Ing. Jiří Podešva

Hlídací pes

Chcete dostávat emailem podobné nabídky pronájmu bytů 2+kk v Olomouci?

Podobné nemovitosti