Soccer reality

Prodej chaty, Stříbrná Skalice, 51 m2 (ID: 2795001)

Stříbrná Skalice, Hradec

2 999 000 Kč /za nemovitost HYPOTÉKA od 13 404 Kč /za měsíc
Prověřené firmy v Stříbrné Skalici

Informace k domu

Dovolujeme si Vám nabídnout k prodeji chatu v Hradci u Stříbrné Skalice, která se nachází v klidné části obce a je ideální pro ty, kdo hledají útočiště v přírodě. Tato jednopodlažní dřevostavba je v dobém stavu a je skvělou volbou pro rekreační pobyt nedaleko města.
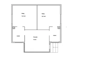
Chata disponuje jedním společným prostorem, na který přes průchozí místnost navazují dvě samostatné ložnice. Vše s celkovou užitnou plochou 51 m², což poskytuje dostatek prostoru pro rodinu nebo skupinu přátel.
S velkým pozemkem o rozloze 1 507 m² nabízí tato nemovitost také možnost relaxace na čerstvém vzduchu, pořádání zahradních posezení nebo využití pro různé volnočasové aktivity nebo pěstování různých plodin. Dostupnost do obce je i zajištěna MHD, což umožňuje pohodlný přístup nejen pro majitele, ale i návštěvníky.
Vytápění zajišťují dvoje kamna na tuhá paliva a přitápět je možné i elektrickými přímotopy. Voda je k dispozici z vlastní studny. V chatě není koupelna. Suché WC je umístěnu mimo chatu.
Pokud Vás tato chata zaujala, neváhejte nám napsat nebo zavolat a rádi Vám vše ukážeme osobně. Pro více informací o této nemovitosti nebo sjednání prohlídky nás prosím kontaktujte nebo vyplňte níže uvedený formulář, rádi Vám pomůžeme.

Parametry domu

Cena
2 999 000 Kč /za nemovitost Spočítat hypotéku
Aktualizováno
2. 2. 2026
Adresa
Stříbrná Skalice, Hradec
Stavba
Dřevěná
Stav objektu
Dobrý
Druh objektu
Samostatný
Lokalita objektu
Klidná část obce
Užitná plocha
51 m2
Plocha pozemku
1507 m2
Třída energetické náročnosti
G - Mimořádně nehospodárná
Elektřina
230V
Odpad
Septik
Komunikace
Neupravená
Telekomunikace
Internet
Doprava
MHD
Voda
Studna
Zdroj topení
Krbová kamna, Kamna
Parkování

Kontaktovat makléře

Máte zájem o tento dům?

Tímto, v souladu s nařízením Evropského parlamentu a Rady (EU) 2016/679, v platném znění, prohlašuji, že mi je alespoň 16 let a uděluji tak svůj souhlas se zpracováním zadaných údajů (jméno, telefon, e-mail, ip adresa) společnosti B3 Technology, s.r.o., IČ: 07330600, se sídlem Novostavby 126/23, 435 11 Lom (správce dat), za účelem předání dotazu z tohoto formuláře Vámi vybranému inzerentovi a zpětného kontaktování mé osoby. Osobní údaje bude správce zpracovávat manuálně i automaticky přímo prostřednictvím svých zaměstnanců. Informace předané tímto formulářem budou uloženy v databázi správce maximálně po dobu 10 let. Odvolání souhlasu s uložením a zpracováním poskytnutých dat lze e-mailem na info@realitypro.eu. V případě podezření na neoprávněné použití Vámi poskytnutých údajů máte právo předat podnět k šetření Úřadu pro ochranu osobních údajů. Více informací
Chystáte se prodat nemovitost?
Pomůžeme Vám!

Inzerát si prohlédlo 0 lidí

Prodejce

Ing. Milena Konaříková

Ing. Milena Konaříková

Hlídací pes

Chcete dostávat emailem podobné nabídky prodeje chat v Stříbrné Skalici?

Podobné nemovitosti