Prodej bytu 4+kk, Praha - Dejvice, Na pískách, 194 m2

Na Pískách, Praha, Dejvice

19 900 000 Kč /za nemovitost HYPOTÉKA od 88 941 Kč /za měsíc
Prověřené firmy v Praze 6

Stěhovací služby

Výkup a prodej starého nábytku

Informace k bytu

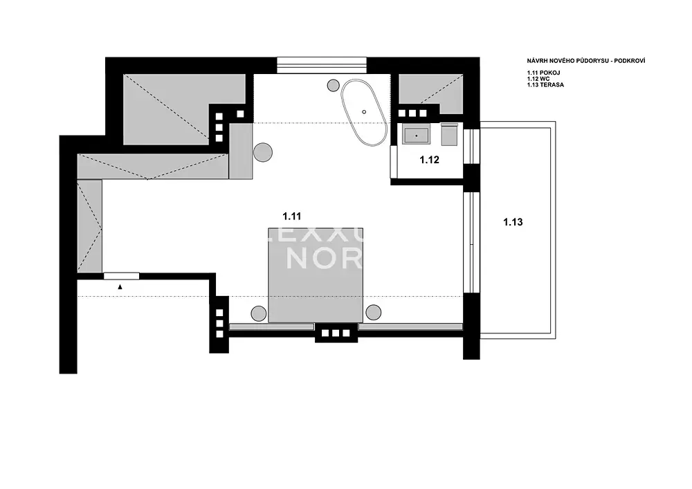
K prodeji nabízíme celé třetí nadzemní podlaží prvorepublikové bytové vily v oblíbené a vyhledávané lokalitě pražské Hanspaulky. Celé podlaží disponuje plochou 194 m2 a je rozděleno na dvě samostatné bytové jednotky. K jednotkám náleží také podíl na udržované vzrostlé zahradě o výměře více než 1 530 m2.


Jednotky jsou určeny ke kompletní rekonstrukci a úpravou jejich dispozice lze vytvořit velkorysý byt 4-5+kk s terasou a výjimečnými výhledy na město i Pražský hrad. Díky nízkému počtu jednotek ve vile a rozlehlé zahradě lze rekonstrukcí vytvořit unikátní rodinné bydlení s komorní vilovou atmosférou, dostatkem soukromí a blízkostí zeleně. Jednotky lze také ponechat v současné dispozici a využít investičně k budoucímu pronájmu.


Jednotky jsou vytápěny samostatným plynovým kotlem. V domě je možnost vybudování výtahu.


Byty se nachází v oblíbené lokalitě Praha 6 - Dejvice ve vyhledávané rezidenční části Hanspaulka, která disponuje plnou občanskou vybaveností a je oblíbená pro svou klidnou atmosféru a blízkost přírodního parku Šárka. Skvělá je také dopravní dostupnost - 2 minuty chůze na tramvajovou i autobusovou zastávku, 5 minut na stanici metra A - Bořislavka. Do centra města se tak lze dopravit do 15 minut a na letiště Václava Havla do 20 minut. Výhodou je také blízkost mezinárodních škol v Praze 6 a v Nebušicích.


V inzerci byly použity vizualizace a půdorysy navrhovaného řešení, které mají pouze ilustrativní charakter.

Parametry bytu

Cena
19 900 000 Kč /za nemovitost Spočítat hypotéku
Aktualizováno
17. 4. 2026
Adresa
Na Pískách, Praha, Dejvice
ID
533199
Stavba
Smíšená
Stav objektu
Před rekonstrukcí
Patro
3. z 3
Vybaveno
Ne
Vlastnictví
Osobní
Užitná plocha
194 m2
Třída energetické náročnosti
G - Mimořádně nehospodárná
Sklep
Terasa
Výtah
Převod do OV
Parkování

Kontaktovat makléře

Máte zájem o tento byt?

Tímto, v souladu s nařízením Evropského parlamentu a Rady (EU) 2016/679, v platném znění, prohlašuji, že mi je alespoň 16 let a uděluji tak svůj souhlas se zpracováním zadaných údajů (jméno, telefon, e-mail, ip adresa) společnosti B3 Technology, s.r.o., IČ: 07330600, se sídlem Novostavby 126/23, 435 11 Lom (správce dat), za účelem předání dotazu z tohoto formuláře Vámi vybranému inzerentovi a zpětného kontaktování mé osoby. Osobní údaje bude správce zpracovávat manuálně i automaticky přímo prostřednictvím svých zaměstnanců. Informace předané tímto formulářem budou uloženy v databázi správce maximálně po dobu 10 let. Odvolání souhlasu s uložením a zpracováním poskytnutých dat lze e-mailem na info@realitypro.eu. V případě podezření na neoprávněné použití Vámi poskytnutých údajů máte právo předat podnět k šetření Úřadu pro ochranu osobních údajů. Více informací
Chystáte se prodat nemovitost?
Pomůžeme Vám!

Inzerát si prohlédlo 11 lidí

Prodejce

Adéla Bukovská - recepce

Adéla Bukovská - recepce

Hlídací pes

Chcete dostávat emailem podobné nabídky prodeje bytů 4+kk v Praze 6?

Podobné nemovitosti