Pronájem bytu 1+kk, Brno, Bratislavská, 33 m2

Bratislavská, Brno

19 500 Kč /za měsíc Získejte výhodnou HYPOTÉKU

(vratná jistota, náklady na bydlení 3315 Kč, poplatek za podnájem)

Prověřené firmy v Brně

Informace k bytu

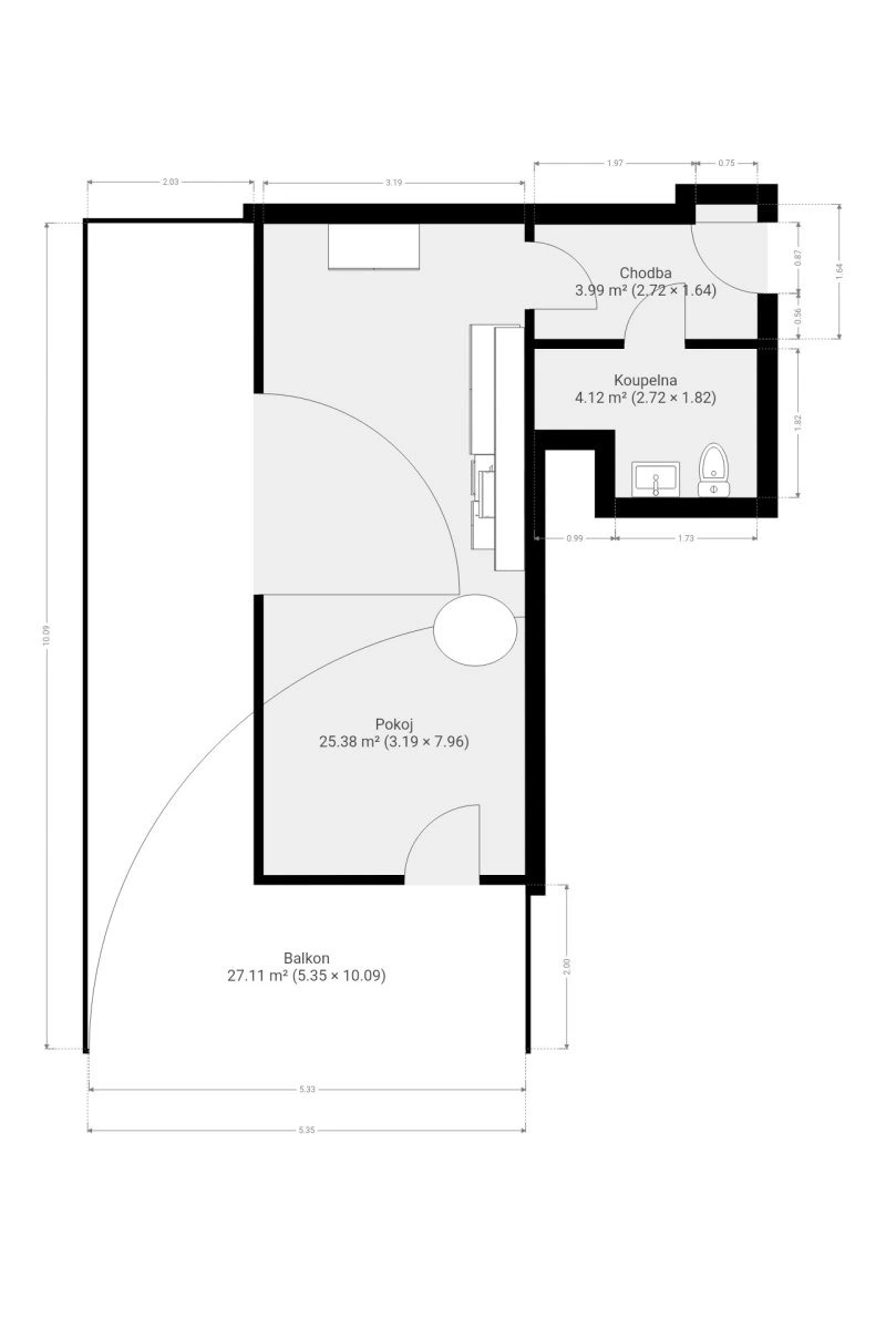
K dlouhodobému podnájmu nabízíme byt o dispozici 1+kk v oblíbené lokalitě blízko centra Brna na ulici Bratislavská. Byt o celkové výměře 33 m² se nachází v 8. patře domu s výtahem. K bytu patří prostorná terasa o velikosti 27 m² s krásným výhledem, ideální pro odpočinek či posezení.

Byt se nabízí vybavený dle fotografií. Kuchyně je vybavena moderními spotřebiči, včetně myčky, trouby a varné desky. Koupelna disponuje sprchovým koutem, umyvadlem a toaletou. Velkou výhodou je klimatizace, podlahové vytápění a venkovní žaluzie.

V ceně bytu je zahrnuto kryté parkovací stání přímo v budově.

V okolí najdete veškerou občanskou vybavenost – restaurace, obchody a pohodlný přístup k veřejné dopravě. Na náměstí Svobody se dostanete za přibližně 10 minut, a hned vedle se nachází bazén Ponávka pro sportovní vyžití.

Byt je volný k nastěhování od 1.4.2026

Parametry bytu

Cena
19 500 Kč /za měsíc
Poznámka k ceně
vratná jistota, náklady na bydlení 3315 Kč, poplatek za podnájem
Aktualizováno
27. 1. 2026
Adresa
Bratislavská, Brno
ID
N5617
Stavba
Cihlová
Stav objektu
Novostavba
Patro
8. z 9
Vybaveno
Ne
Typ objektu
Patrový
Lokalita objektu
Centrum obce
Vlastnictví
Osobní
Užitná plocha
33 m2
Podlahová plocha
33 m2
Elektřina
230V
Balkon
Výtah
Parkování

Kontaktovat makléře

Máte zájem o tento byt?

Tímto, v souladu s nařízením Evropského parlamentu a Rady (EU) 2016/679, v platném znění, prohlašuji, že mi je alespoň 16 let a uděluji tak svůj souhlas se zpracováním zadaných údajů (jméno, telefon, e-mail, ip adresa) společnosti B3 Technology, s.r.o., IČ: 07330600, se sídlem Novostavby 126/23, 435 11 Lom (správce dat), za účelem předání dotazu z tohoto formuláře Vámi vybranému inzerentovi a zpětného kontaktování mé osoby. Osobní údaje bude správce zpracovávat manuálně i automaticky přímo prostřednictvím svých zaměstnanců. Informace předané tímto formulářem budou uloženy v databázi správce maximálně po dobu 10 let. Odvolání souhlasu s uložením a zpracováním poskytnutých dat lze e-mailem na info@realitypro.eu. V případě podezření na neoprávněné použití Vámi poskytnutých údajů máte právo předat podnět k šetření Úřadu pro ochranu osobních údajů. Více informací
Chystáte se prodat nemovitost?
Pomůžeme Vám!

Inzerát si prohlédlo 0 lidí

Prodejce

Miloslava Kačerová

Miloslava Kačerová

Hlídací pes

Chcete dostávat emailem podobné nabídky pronájmu bytů 1+kk v Brně?

Podobné nemovitosti