Prodej bytu 2+kk, Milovice, Armádní, 48 m2

Armádní, Milovice, Mladá

4 790 000 Kč /za nemovitost HYPOTÉKA od 21 408 Kč /za měsíc
Prověřené firmy v Milovicích

Informace k bytu

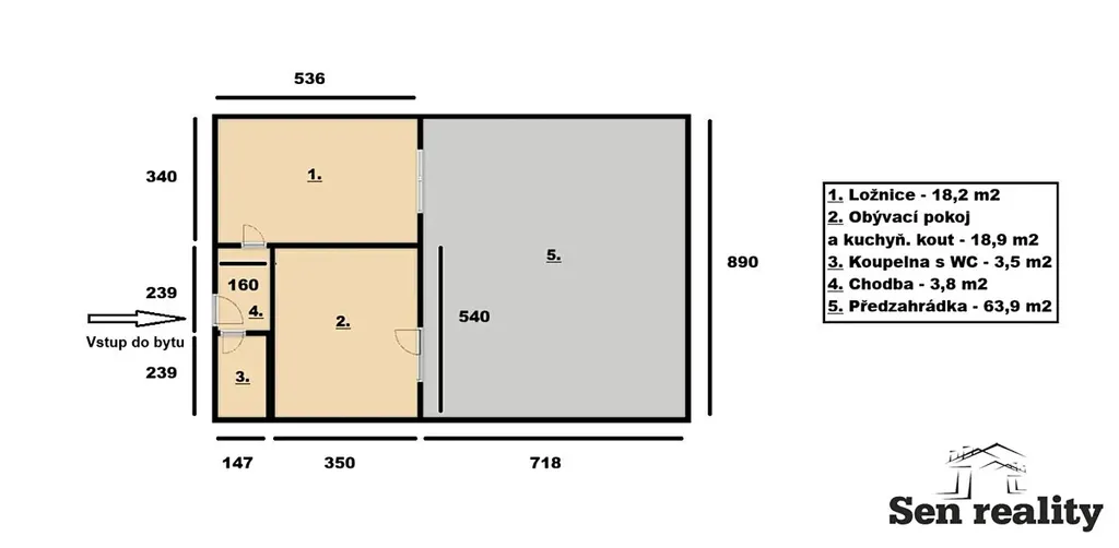
Exkluzivně nabízíme k prodeji byt 2+kk o výměře 48,3 m2 , předzahrádka 63,9 m2 v ulici Armádní, město Milovice, okres Nymburk. Byt se nachází v 1. nadzemním podlaží cihlového domu zkolaudovaného v roce 2020. Byt je v osobním vlastnictví.

Dispozice bytu tvoří prosvětlený obývací pokoj s kuchyňským koutem s vestavěnou horkovzdušnou troubou, vestavěnou mikrovlnnou troubou a sklokeramickou varnou deskou, která je umístěna na prostorném ostrůvku, samostatný neprůchozí pokoj, koupelna se sprchovým koutem a s WC, chodba. Z obývacího pokoje je vstup na předzahrádku.

Byt nabízí příjemný standard bydlení, plastová okna, rolety den a noc, moderní kuchyňský kout, lamelovou stěnu v části obývacího pokoje, bezpečnostní rozvorové vstupní dveře. Dům disponuje kamerovým systémem, zabezpečeným vstupem na čipové karty a optickým kabelem. K bytu náleží sklepní kóje o výměře 3,9 m2. Vytápění je centrální, plynovým kotlem. Bytová jednotka má nízké měsíční náklady. Bezproblémové parkování kolem domu, oplocené dětské hřiště před domem. Po dohodě je možné ponechat kompletní vybavení bytu.

Velkou předností je již zmiňovaná předzahrádka, která nabízí jedinečnou možnost vytvořit si venkovní posezení formou pergoly nebo zastřešené terasy. Plot je potažen stínící tkaninou, která zajišťuje větší soukromí.

Město Milovice disponuje veškerou občanskou vybaveností. V blízkosti domu je zastávka autobusu, poliklinika, mateřská a základní škola, Relax park, inline dráha, Lidl. Výhodou je také dobrá dopravní dostupnost, 20 minut na Černý most.

Prodávající si vyhrazuje právo vybrat kupujícího. V případě více zájemců rozhoduje vyšší cena.

Pro další informace nebo při zájmu o prohlídku nás neváhejte kontaktovat!

Parametry bytu

Cena
4 790 000 Kč /za nemovitost Spočítat hypotéku
Aktualizováno
21. 1. 2026
Adresa
Armádní, Milovice, Mladá
ID
183
Stavba
Cihlová
Stav objektu
Velmi dobrý
Patro
1. z 3
Vlastnictví
Osobní
Užitná plocha
48 m2
Podlahová plocha
51 m2
Plocha zahrady
64 m2
Elektřina
230V
Plyn
Plynovod
Odpad
Veřejná kanalizace
Topení
Ústřední plynové
Komunikace
Asfaltová, Zpevněná
Telekomunikace
Internet
Doprava
Vlak, Dálnice, Silnice, Autobus
Voda
Vodovod
Topné těleso
Radiátory
Zdroj topení
Plynový kotel
Sklep
Výtah
Bezbarierový přístup

Kontaktovat makléře

Realitní kancelář

Sen reality s.r.o.

Palackého třída 2020, Pardubice

Chystáte se prodat nemovitost?
Pomůžeme Vám!

Máte zájem o tento byt?

Tímto, v souladu s nařízením Evropského parlamentu a Rady (EU) 2016/679, v platném znění, prohlašuji, že mi je alespoň 16 let a uděluji tak svůj souhlas se zpracováním zadaných údajů (jméno, telefon, e-mail, ip adresa) společnosti B3 Technology, s.r.o., IČ: 07330600, se sídlem Novostavby 126/23, 435 11 Lom (správce dat), za účelem předání dotazu z tohoto formuláře Vámi vybranému inzerentovi a zpětného kontaktování mé osoby. Osobní údaje bude správce zpracovávat manuálně i automaticky přímo prostřednictvím svých zaměstnanců. Informace předané tímto formulářem budou uloženy v databázi správce maximálně po dobu 10 let. Odvolání souhlasu s uložením a zpracováním poskytnutých dat lze e-mailem na info@realitypro.eu. V případě podezření na neoprávněné použití Vámi poskytnutých údajů máte právo předat podnět k šetření Úřadu pro ochranu osobních údajů. Více informací
Chystáte se prodat nemovitost?
Pomůžeme Vám!

Inzerát si prohlédlo 0 lidí

Prodejce

Pavel Šavrda

Pavel Šavrda

Hlídací pes

Chcete dostávat emailem podobné nabídky prodeje bytů 2+kk v Milovicích (okr. Nymburk)?

Podobné nemovitosti