Pronájem bytu 3+kk, Mladá Boleslav - Mladá Boleslav III, Vondřichova, 86 m2

Vondřichova, Mladá Boleslav III

24 000 Kč /za měsíc Získejte výhodnou HYPOTÉKU

(+ energie + poplatky)

Prověřené firmy v Mladé Boleslavi

Informace k bytu

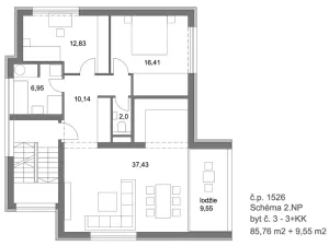
Pronájem klimatizovaného bytu 3+kk, 86 m² s lodžií a parkováním

Chcete bydlet v novostavbě, nedaleko lesoparku Štěpánka?
Představujeme Vám pronájem luxusního, klimatizovaného bytu 3+kk (86 m²) s lodžií (10 m²) v novém viladomě v Mladé Boleslavi, Vondřichova ul. Hlavní předností tohoto bytu je prostorný obývací pokoj, příjemná lodžie, nízké náklady na energie a bezproblémové parkování. Pro milovníky přírody a sportu je pár minut chůze oblíbený lesopark Štěpánka a městský bazén.

Tento moderní byt je ve 2. nadzemním podlaží a je částečně zařízený - kuchyňská linka se spotřebiči, vestavěné skříně, kompletní osvětlovací technika, klimatizace, venkovní elektrické žaluzie, okenní sítě proti hmyzu, domácí videotelefon, centrální úpravna vody (automatický změkčovač), na podlaze je dlažba. K bytu náleží 2 parkovací stání před domem na oploceném pozemku s možností dobíjení elektroauta a zděný sklep.
Dům je energeticky mimořádně úsporný (třída A), vytápění tepelným čerpadlem VZDUCH/VZDUCH s doplňkovým elektrickým podlahovým topením, ohřev vody elektrickým bojlerem. Klimatizace multisplit, vnitřní nástěnné jednotky ve všech obytných místnostech.

Měsíční nájemné je 24.000 Kč, záloha na vodu 250 Kč/os./měs., úklid a údržba společných prostor 450 Kč/byt/měs., pojištění odpovědnosti za škodu cca 1.000 Kč/rok, svoz komunálního odpadu 400 Kč/rok. Elektřinu a internet hradí nájemce přímo dodavatelům. Odhadované náklady na elektřinu jsou cca 3.500 Kč/měs. Byt je striktně nekuřácký.
Majitel požaduje vratnou kauci 48.000 Kč, provize RK a právní servis 24.000 Kč. Byt je k nastěhování od 1.4.2026. Majitel preferuje dlouhodobý pronájem a vyhrazuje si právo výběru nájemce.
______________________________________
ENGLISH
Do you want to live in a new building, near the Štěpánka forest park?
We present to you the rental of a luxurious, air-conditioned 3 room apartment + kitchen (86 m²) with a loggia (10 m²) in a new villa in Mladá Boleslav, Vondřichova street. The main advantages of this apartment are a spacious living room, a pleasant loggia, low energy costs and trouble-free parking. For lovers of nature and sports, the popular Štěpánka forest park and the city swimming pool are a few minutes walk away.

This modern apartment is on the 2nd floor and is partially furnished - kitchen with appliances, built-in wardrobes, complete lighting equipment, air conditioning, outdoor electric blinds, window nets against insects, video intercom, central water treatment plant (automatic softener). There are 2 private parking spaces on a fenced plot with the possibility of EV charger and there is also a cellar.
The house is low energy (class A), heating by an AIR/AIR heat pump with additional electric floor heating, water heating by an electric boiler. Multisplit air conditioning, indoor wall units in all living rooms.

The monthly rent is 24,000 CZK, deposit for water 250 CZK/person/month, cleaning and maintenance of common areas 450 CZK/apartment/month, liability insurance for damage approx. 1,000 CZK/year, municipal waste collection 400 CZK/year. Electricity and internet are paid by the tenant directly to the suppliers. Estimated electricity costs are approx. 3,500 CZK/month. The apartment is strictly non-smoking.
The owner requires a refundable deposit of 48,000 CZK, agency fee and legal service 24,000 CZK. The owner prefers a long-term lease.

Parametry bytu

Cena
24 000 Kč /za měsíc
Poznámka k ceně
+ energie + poplatky
Aktualizováno
20. 1. 2026
Adresa
Vondřichova, Mladá Boleslav III
ID
19012026
Stavba
Cihlová
Stav objektu
Novostavba
Vybaveno
Částečně
Vlastnictví
Osobní
Užitná plocha
86 m2
Třída energetické náročnosti
A - Mimořádně úsporná

Kontaktovat makléře

Máte zájem o tento byt?

Tímto, v souladu s nařízením Evropského parlamentu a Rady (EU) 2016/679, v platném znění, prohlašuji, že mi je alespoň 16 let a uděluji tak svůj souhlas se zpracováním zadaných údajů (jméno, telefon, e-mail, ip adresa) společnosti B3 Technology, s.r.o., IČ: 07330600, se sídlem Novostavby 126/23, 435 11 Lom (správce dat), za účelem předání dotazu z tohoto formuláře Vámi vybranému inzerentovi a zpětného kontaktování mé osoby. Osobní údaje bude správce zpracovávat manuálně i automaticky přímo prostřednictvím svých zaměstnanců. Informace předané tímto formulářem budou uloženy v databázi správce maximálně po dobu 10 let. Odvolání souhlasu s uložením a zpracováním poskytnutých dat lze e-mailem na info@realitypro.eu. V případě podezření na neoprávněné použití Vámi poskytnutých údajů máte právo předat podnět k šetření Úřadu pro ochranu osobních údajů. Více informací
Chystáte se prodat nemovitost?
Pomůžeme Vám!

Inzerát si prohlédlo 0 lidí

Prodejce

PROFI realitka, s. r. o.

PROFI realitka, s. r. o.

Hlídací pes

Chcete dostávat emailem podobné nabídky pronájmu bytů 3+kk v Mladé Boleslavi?

Podobné nemovitosti