Prodej bytu 2+kk, Praha - Uhříněves, Oty Bubeníčka, 51 m2

Oty Bubeníčka, Praha 10

8 390 000 Kč /za nemovitost HYPOTÉKA od 37 498 Kč /za měsíc
Prověřené firmy v Praze 10

Stěhovací služby

Výkup a prodej starého nábytku

Informace k bytu

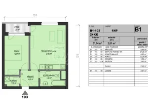
Byt 2+kk v domě z roku 2017 s lodžií, sklepem a vlastním venkovním parkovacím stáním. Nachází se ve vyvýšeném přízemí a je orientovaný na západ. Ulice před domem je slepá a slouží primárně pro rezidenty, provoz je tedy minimální a byt působí klidněji, než by člověk u Prahy čekal.

Podlahová plocha je 51,7 m2. Dispozice je přesně taková, jaká má u 2+kk být – obývací pokoj s kuchyňským koutem, samostatná ložnice, koupelna s WC a komora přímo v bytě. Úložné prostory jsou řešené nejen sklepem, ale i komorou, která v podobných dispozicích často chybí. Stav bytu je výborný.
Dům má výtah a energetická náročnost budovy je třídy B.

Uhříněves je praktická lokalita pro každodenní život – v místě je kompletní vybavenost a zároveň rychlé napojení na dopravu. Vlakem jste na Hlavním nádraží zhruba za 17 minut a autem jste na D1 do několika minut. V okolí jsou také lesoparky a kousek i letní bazén.

Pro více informací mě neváhejte kontaktovat.
Budu se těšit na prohlídkách,
Lukáš Petr

Parametry bytu

Cena
8 390 000 Kč /za nemovitost Spočítat hypotéku
Aktualizováno
19. 1. 2026
Adresa
Oty Bubeníčka, Praha 10
ID
18505
Stavba
Cihlová
Stav objektu
Velmi dobrý
Patro
1. z 5
Vybaveno
Částečně
Lokalita objektu
Klidná část obce
Vlastnictví
Osobní
Užitná plocha
51 m2
Třída energetické náročnosti
B - Velmi úsporná
Odpad
Veřejná kanalizace
Komunikace
Asfaltová
Doprava
Vlak, MHD, Autobus
Voda
Vodovod
Sklep
Lodžie
Výtah
Parkování
Nízkoenergetický

Kontaktovat makléře

Realitní kancelář

Logo QARA, s.r.o.

QARA, s.r.o.

Šafaříkova 201/17, Praha

Chystáte se prodat nemovitost?
Pomůžeme Vám!

Máte zájem o tento byt?

Tímto, v souladu s nařízením Evropského parlamentu a Rady (EU) 2016/679, v platném znění, prohlašuji, že mi je alespoň 16 let a uděluji tak svůj souhlas se zpracováním zadaných údajů (jméno, telefon, e-mail, ip adresa) společnosti B3 Technology, s.r.o., IČ: 07330600, se sídlem Novostavby 126/23, 435 11 Lom (správce dat), za účelem předání dotazu z tohoto formuláře Vámi vybranému inzerentovi a zpětného kontaktování mé osoby. Osobní údaje bude správce zpracovávat manuálně i automaticky přímo prostřednictvím svých zaměstnanců. Informace předané tímto formulářem budou uloženy v databázi správce maximálně po dobu 10 let. Odvolání souhlasu s uložením a zpracováním poskytnutých dat lze e-mailem na info@realitypro.eu. V případě podezření na neoprávněné použití Vámi poskytnutých údajů máte právo předat podnět k šetření Úřadu pro ochranu osobních údajů. Více informací
Chystáte se prodat nemovitost?
Pomůžeme Vám!

Inzerát si prohlédlo 0 lidí

Prodejce

Lukáš Petr

Lukáš Petr

Hlídací pes

Chcete dostávat emailem podobné nabídky prodeje bytů 2+kk v Praze 10?

Podobné nemovitosti