Pronájem bytu 3+kk, Velká Bíteš, 100 m2 (ID: 2780936)

Velká Bíteš

29 900 Kč /za měsíc Získejte výhodnou HYPOTÉKU

(zálohy na služby již jsou v ceně)

Prověřené firmy v Velké Bíteši

Informace k bytu

Společnost Protsenko & Svoboda vám v zastoupení majitele nabízí k pronájmu byt 3+kk o celkové podlahové ploše 100 m² ve 2.NP moderní novostavby v útulném městě Velká Bíteš. Budova má skvělou polohu v blízkosti dálnice D1, pouhých 30 km od Brna.

Inzerované byty jsou součástí většího areálu, který tvoří dvě samostatné budovy o celkové ploše 539 m² a 398 m². V případě zájmu nabízíme možnost pronájmu i dalších prostor, které lze flexibilně kombinovat a přizpůsobit Vašim požadavkům – ať už hledáte menší nebo větší výměru. Pro více informací mě neváhejte kontaktovat.

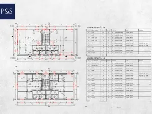
Prostory jsou navrženy s důrazem na variabilitu – najdete zde kancelářské a obytné místnosti různých velikostí, společné toalety, prostory pro kuchyň. Dispoziční řešení si můžete prohlédnout v přiložených půdorysech.

Celý areál je oplocený a obklopený zelení, což vytváří příjemné a reprezentativní prostředí. Najdete zde pečlivě udržovaný trávník, nově vysazené stromy a keře, které dodávají prostoru estetický a přívětivý ráz. Bezpečnost zajišťuje kamerový zabezpečovací systém, který nepřetržitě monitoruje celý objekt.

Nemovitost odpovídá nejvyšším a nejmodernějším stavebním standardům. Disponuje hliníkovými okny, podlahovým vytápěním a kvalitní izolací, což zaručuje výbornou energetickou efektivitu a komfortní pracovní prostředí. V každé místnosti jsou internetové zásuvky pro snadné připojení. Celkově se jedná o kvalitně provedený, moderní a nadčasový prostor, který vyhoví nárokům různých typů podnikání.

Cena pronájmu činí 300 Kč/m², přičemž je možné flexibilně kombinovat velikost a uspořádání prostor dle vašich potřeb. Areál je ideální pro zdravotnická zařízení, vzdělávací centra, dětské kroužky či komunitní spolky a snadno se přizpůsobí specifickým požadavkům vašeho podnikání.

V okolí se nachází především obytné a komerční objekty. Díky strategické poloze je tato lokalita atraktivní pro podnikatelské aktivity i bydlení. Přímo oproti objektu se nachází autobusová zastávka Velká Bíteš, Cihelna. Tato zastávka zajišťuje spojení do různých částí města i do okolních obcí a větších měst, včetně Brna. Celkově je lokalita dobře dostupná, ať už pro obyvatele města, podnikatele nebo zákazníky a klienty podniků v této oblasti.

Máte zájem o prohlídku nebo více informací? Kontaktujte nás, rádi vám pomůžeme najít ideální řešení.
V případě spolupráci s naši RK, kromě kouzelné nemovitosti, vždy dostanete zdarma:
-konzultační servis
-jazykovou vybavenost (mluvíme česky, anglicky, francouzsky)
-právnický servis od AK Hafner & Partneři
-servis daňové amortizace
-kupony na slevu v top obchodech s nábytkem
-stěhování
-technika pro drobné úpravy
-analýzy trhu
 
Těšíme se na běžných prohlídkách, ale nabízíme také videoprohlídky v reálném čase přes WhatsApp, FaceTime, Messenger, Skype ad

Parametry bytu

Cena
29 900 Kč /za měsíc
Poznámka k ceně
zálohy na služby již jsou v ceně
Aktualizováno
17. 1. 2026
Adresa
Velká Bíteš
ID
B.VYS.VB.1
Stavba
Smíšená
Stav objektu
Novostavba
Patro
2.
Vlastnictví
Osobní
Užitná plocha
100 m2
Parkování

Kontaktovat makléře

Máte zájem o tento byt?

Tímto, v souladu s nařízením Evropského parlamentu a Rady (EU) 2016/679, v platném znění, prohlašuji, že mi je alespoň 16 let a uděluji tak svůj souhlas se zpracováním zadaných údajů (jméno, telefon, e-mail, ip adresa) společnosti B3 Technology, s.r.o., IČ: 07330600, se sídlem Novostavby 126/23, 435 11 Lom (správce dat), za účelem předání dotazu z tohoto formuláře Vámi vybranému inzerentovi a zpětného kontaktování mé osoby. Osobní údaje bude správce zpracovávat manuálně i automaticky přímo prostřednictvím svých zaměstnanců. Informace předané tímto formulářem budou uloženy v databázi správce maximálně po dobu 10 let. Odvolání souhlasu s uložením a zpracováním poskytnutých dat lze e-mailem na info@realitypro.eu. V případě podezření na neoprávněné použití Vámi poskytnutých údajů máte právo předat podnět k šetření Úřadu pro ochranu osobních údajů. Více informací
Chystáte se prodat nemovitost?
Pomůžeme Vám!

Inzerát si prohlédlo 1 lidí

Prodejce

Alexandr Protsenko

Alexandr Protsenko

Hlídací pes

Chcete dostávat emailem podobné nabídky pronájmu bytů 3+kk v Velké Bíteši?

Podobné nemovitosti