Prodej bytu 2+kk, Kašperské Hory, Česká, 46 m2 (ID: 2777838)

Česká, Kašperské Hory

Cena na vyžádání /za nemovitost Získejte výhodnou HYPOTÉKU
Prověřené firmy v Kašperských Horách

Podlahy

Stěhovací služby

Informace k bytu

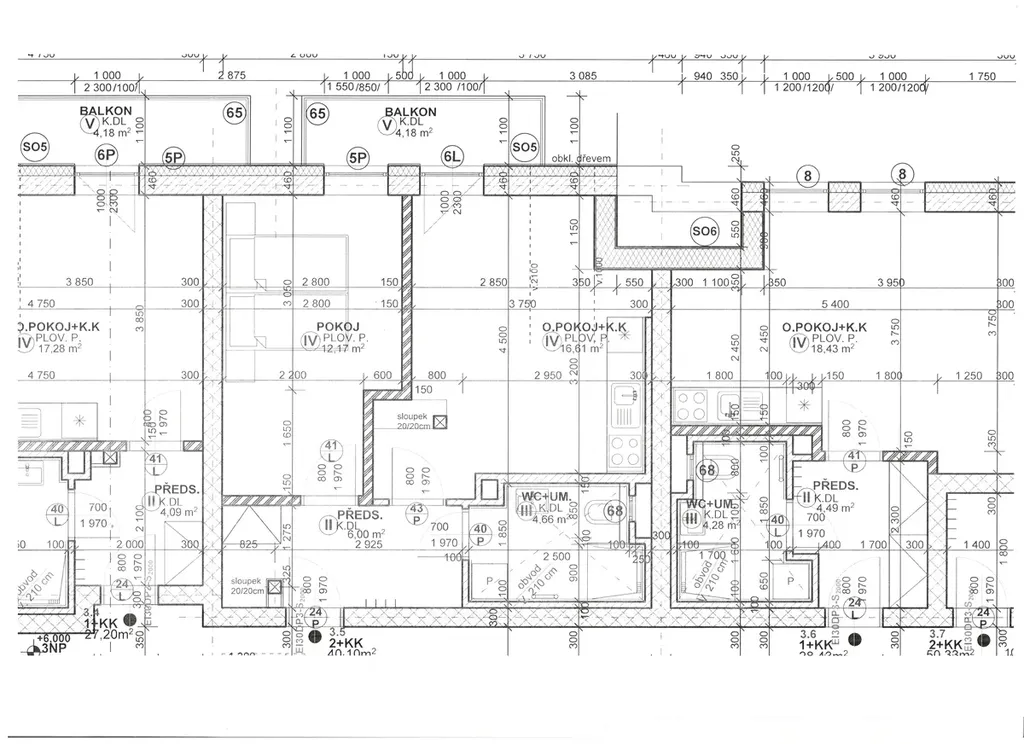
Nabízíme Vám k prodeji nový byt o velikosti 2+kk+balkon označený jako byt 18, nacházející se ve 3. NP o celkové ploše včetně balkonů a zděného sklepa 46 m2, který bude stavěn v rámci projektu Byty Kašperky ve velmi klidné části Kašperských Hor v České ul. s výhledem na okolní krajinu a přitom v docházkové vzdálenosti od centra Kašperských Hor, které se nacházejí kousek od hranic Národního parku Šumava.

V bytě bude k dispozici obývací pokoj s kuchyňským koutem (16,61 m2), pokoj (12,17 m2), předsíň (6,00 m2), koupelna s WC (4,66 m2) a balkon (4,18 m2). Dále k bytu náleží zděný sklep (cca 1,9 m2) v 1. podzemním podlaží domu. Byt bude osazen dobrými standardy zařizovacích předmětů.

Tento byt zde uvádíme jako modelový, v prodeji jsou ještě další byty 2+kk umístěné v různých podlažích domu. K dispozici jsou pro Vás také byty 1+kk.

Podrobné informace získáte u prodejce bytů ABJ reality s.r.o.

K bytu je možné si zakoupit kryté parkovací stání v 1.PP objektu nebo venkovní parkovací stání nacházející se na přilehlém pozemku u domu.

Projekt Byty Kašperky tak představuje ideální kombinaci bydlení či místa pro rekreaci v klidné části Kašperských Hor s centrem dostupným v docházkové vzdálenosti, kde je k dispozici velmi dobrá občanská vybavenost. Ve vzdálenosti cca 100 m od bytového domu je k dispozici oplocené velké dětské hřiště.

Samotná budova bytového domu má tři nadzemních podlaží a jedno podzemní podlaží, ve kterém budou k dispozici krytá parkovací stání a sklepy pro jednotlivé byty. Bytový dům má jeden centrální vchod s výtahem. Nebudou zde žádné komerční prostory. Vytápění domu a ohřev vody bude zajištěno centrálně pomocí teplovodu.

Stavba bytového domu se zahajuje v říjnu 2024, dokončení domu je naplánováno na podzim roku 2026.

Aktuality z výstavby domu: byla dokončena venkovní fasáda domu, provádí se modelace příjezdové komunikace a v bytech se provádí práce na koupelnách a kompletace bytů.

Parametry bytu

Cena
Cena na vyžádání Spočítat hypotéku
Aktualizováno
14. 1. 2026
Adresa
Česká, Kašperské Hory
Stavba
Smíšená
Stav objektu
Ve výstavbě
Patro
3. z 3
Lokalita objektu
Klidná část obce
Vlastnictví
Osobní
Užitná plocha
46 m2
Třída energetické náročnosti
B - Velmi úsporná
Elektřina
400V
Odpad
Veřejná kanalizace
Komunikace
Asfaltová
Doprava
Silnice, Autobus
Voda
Vodovod
Topné těleso
Radiátory
Zdroj topení
Centrální dálkové
Zdroj teplé vody
Centrální dálkový ohřev
Balkon
Sklep
Výtah
Bezbarierový přístup

Kontaktovat makléře

Realitní kancelář

ABJ reality, s.r.o.

sady Pětatřicátníků 316/6, Plzeň

Chystáte se prodat nemovitost?
Pomůžeme Vám!

Máte zájem o tento byt?

Tímto, v souladu s nařízením Evropského parlamentu a Rady (EU) 2016/679, v platném znění, prohlašuji, že mi je alespoň 16 let a uděluji tak svůj souhlas se zpracováním zadaných údajů (jméno, telefon, e-mail, ip adresa) společnosti B3 Technology, s.r.o., IČ: 07330600, se sídlem Novostavby 126/23, 435 11 Lom (správce dat), za účelem předání dotazu z tohoto formuláře Vámi vybranému inzerentovi a zpětného kontaktování mé osoby. Osobní údaje bude správce zpracovávat manuálně i automaticky přímo prostřednictvím svých zaměstnanců. Informace předané tímto formulářem budou uloženy v databázi správce maximálně po dobu 10 let. Odvolání souhlasu s uložením a zpracováním poskytnutých dat lze e-mailem na info@realitypro.eu. V případě podezření na neoprávněné použití Vámi poskytnutých údajů máte právo předat podnět k šetření Úřadu pro ochranu osobních údajů. Více informací
Chystáte se prodat nemovitost?
Pomůžeme Vám!

Inzerát si prohlédlo 0 lidí

Prodejce

Jiří Bažant

Jiří Bažant

Hlídací pes

Chcete dostávat emailem podobné nabídky prodeje bytů 2+kk v Kašperských Horách?

Podobné nemovitosti