Prodej ubytování, Vysoké Mýto, Vrchlického, 635 m2 (ID: 2777503)

Vrchlického, Vysoké Mýto-Město

Cena na vyžádání /za nemovitost Získejte výhodnou HYPOTÉKU

(volejte makléři, Výnosy z podnikání předloží prodávající při prohlídce nemovitosti, včetně DPH, včetně poplatků, včetně provize, včetně právního servi)

Prověřené firmy v Vysokém Mýtu

Informace k nemovitosti

Restaurace a hotel Pod Věží – v srdci historického Vysokého Mýta

Na prodej zavedená restaurace a hotel v samém historickém centru města, jen pár kroků od Pražské brány a barokního kostela sv. Vavřince, cca 80 m od náměstí.

Objekt s gotickými základy, klenbovými stropy a sklepením prošel po požáru roku 1816 přestavbou a kompletní rekonstrukcí v roce 2007.

Součástí je restaurace, penzion a zahrada ve stylu feng-šuej.

Vysoké Mýto je turisticky i obchodně navštěvované město s vysokou poptávkou po ubytování a gastronomii – ideální příležitost pro pokračování v úspěšném provozu nebo vlastní rozvoj.

✅Restaurace s výčepem a salonek -> kapacita 40 míst

✅Zahrádka ve stylu Feng-Šuej -> kapacita 40 míst

✅Hotel -> kapacita 26 lůžek včetně přistýlek.

✅Hlavní budova -> 2 hotelové byty, 5 dvoulůžkových pokojů s vlastní sociálkou

✅Přístavba -> 1 hotelový byt, 1 dvoulůžkový pokoj s vlastní sociálkou a projekt na vybudování dalšího hotelového bytu v podkroví

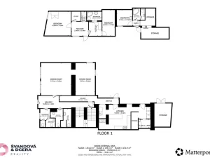
✅Plocha hlavní budova: 1.PP: 40 m2
1.NP: 160 m2
2.NP: 149,4 m2
3.NP: 143,9 m2
pavlač: 20 m2

Plocha přístavba: 1.NP: 90 m2
Možnost vybudovat podkroví dalších cca 90 m2

✅Vybavená kuchyň podle současných norem, navíc příslušenství pro lávové kameny, fondue a raclette

✅Napojeno na veškeré inženýrské sítě

✅Vytápění hlavní budovy plynovým kotlem
✅Vytápění přístavby el. tepelnými panely

✅Ohřev vody částečně z plynové kotelny, v 2.NP elektrický bojler, kvůli zamezení ztrát z dlouhého vedení

✅Náklady: plyn 129.000,-Kč/rok vč.DPH (72 KWh)
elektřina 193.000,-Kč/rok vč.DPH (VT 5,7 MWh, NT 29 MWh)
voda: 7.000,-Kč/q

✅Rekonstrukce 2007: nová elektřina, plyn, voda, odpady, topení, okna, zateplení + fasáda, zateplení podkroví, odvětrání
kuchyně, sociálky a podkroví, zahrada ve stylu feng-šuej, přístavba s možností rozšíření o jeden byt

✳️Návratnost investice cca za 10 let. Podloženo výnosy z činnosti hotelu a restaurace. Majitel předloží na prohlídkách.

✳️Objekt je kompletně vybavený, zavedený a připravený ihned pokračovat v provozu – s potenciálem dalšího rozvoje.

✳️Hotel má smlouvu s Vysokomýtskou kulturní a se školícím centrem IVECO, kteří pravidelně doplňují obsazenost hotelu.

✳️V hotelu má celoročně pronajatou kancelář AUTOŠKOLA.

Jedinečná příležitost spojit stabilní podnikání s bydlením či investicí do nemovitosti v centru Vysokého Mýta.

‼️Pro tuto nemovitost jsme samozřejmě vytvořily samostatnou webovou stránku nemovitosti, kde najdete více informací, kterou najdete na našem webu, nebo si o ni můžete napsat a my vám ji obratem pošleme.

Těším se, až se potkáme osobně na prohlídce této nemovitosti.

Parametry nemovitosti

Cena
Cena na vyžádání Spočítat hypotéku
Poznámka k ceně
volejte makléři, Výnosy z podnikání předloží prodávající při prohlídce nemovitosti, včetně DPH, včetně poplatků, včetně provize, včetně právního servi
Aktualizováno
14. 1. 2026
Adresa
Vrchlického, Vysoké Mýto-Město
ID
00034
Stavba
Smíšená
Stav objektu
Velmi dobrý
Vybaveno
Ano
Lokalita objektu
Centrum obce
Užitná plocha
635 m2
Podlahová plocha
635 m2
Elektřina
230V, 400V
Plyn
Plynovod
Odpad
Veřejná kanalizace
Komunikace
Asfaltová
Telekomunikace
Internet
Doprava
Vlak, Dálnice, Silnice, MHD, Autobus
Voda
Vodovod
Topné těleso
Radiátory, Infrapanel
Zdroj topení
Plynový kondenzační kotel, Infrapanel, Jiné
Zdroj teplé vody
Plynový kotel, Bojler - elektro
Výtah
Parkování

Kontaktovat makléře

Máte zájem o tuto nemovistost?

Tímto, v souladu s nařízením Evropského parlamentu a Rady (EU) 2016/679, v platném znění, prohlašuji, že mi je alespoň 16 let a uděluji tak svůj souhlas se zpracováním zadaných údajů (jméno, telefon, e-mail, ip adresa) společnosti B3 Technology, s.r.o., IČ: 07330600, se sídlem Novostavby 126/23, 435 11 Lom (správce dat), za účelem předání dotazu z tohoto formuláře Vámi vybranému inzerentovi a zpětného kontaktování mé osoby. Osobní údaje bude správce zpracovávat manuálně i automaticky přímo prostřednictvím svých zaměstnanců. Informace předané tímto formulářem budou uloženy v databázi správce maximálně po dobu 10 let. Odvolání souhlasu s uložením a zpracováním poskytnutých dat lze e-mailem na info@realitypro.eu. V případě podezření na neoprávněné použití Vámi poskytnutých údajů máte právo předat podnět k šetření Úřadu pro ochranu osobních údajů. Více informací
Chystáte se prodat nemovitost?
Pomůžeme Vám!

Inzerát si prohlédlo 0 lidí

Prodejce

Zita Švandová

Zita Švandová

Hlídací pes

Chcete dostávat emailem podobné nabídky prodeje ubytování v Vysokém Mýtu?

Podobné nemovitosti