Prodej bytu 3+kk, Chlumec nad Cidlinou, Komenského, 92 m2 (ID: 2774657)

Komenského, Chlumec nad Cidlinou

7 379 000 Kč /za nemovitost HYPOTÉKA od 32 980 Kč /za měsíc

(Cena družstevního podílu 1 844 750 Kč. Po nastěhování se hradí měsíční splátka bytu ve výši 27 910 Kč po dobu 30 let. Celková cena bytu: 7 379 000 Kč)

Prověřené firmy v Chlumci nad Cidlinou

Informace k bytu

Nabízíme k prodeji byt v novostavbě v projektu Rezidence Chlumec.
Bytový dům se nachází v klidné části Chlumce nad Cidlinou ul. Komenského.
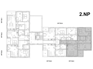
Nabízíme k prodeji byt č. 2.6 o velikosti 3+kk, 92,1 m2 + 2x lodžie o celkové velikosti 12,4 m2.
Jedná se o byt ve druhém patře čtyř patrového bytového domu s výtahem.
Byt je vybaven vinylovou podlahou, dlažbou a obklady v koupelně a WC, obložkové interiérové dveře, bezpečnostní vstupní dveře, kompletní elektroinstalace, omítky.
Cena družstevního podílu 1 844 750 Kč.
Po nastěhování do bytu se hradí měsíční splátka bytu ve výši 27 910 Kč po dobu 30 let.
Celková cena bytu: 7 379 000 Kč.
Možnost po 5 letech byt převést do osobního vlastnictví.
Termín stěhování únor 2026.
Vytápění a ohřev vody je v domě zajišťován tepelným čerpadle, což zajišťuje nízké provozní náklady.
V okolí veškerá občanská vybavenost, centrum města je v docházkové vzdálenosti, základní škola, mateřská škola, zámek, sportovní hřiště, vlakové a autobusové nádraží.

Parametry bytu

Cena
7 379 000 Kč /za nemovitost Spočítat hypotéku
Poznámka k ceně
Cena družstevního podílu 1 844 750 Kč. Po nastěhování se hradí měsíční splátka bytu ve výši 27 910 Kč po dobu 30 let. Celková cena bytu: 7 379 000 Kč
Aktualizováno
9. 1. 2026
Adresa
Komenského, Chlumec nad Cidlinou
ID
Chlumec 2.6
Stavba
Skeletová
Stav objektu
Novostavba
Patro
2. z 4
Vybaveno
Ne
Lokalita objektu
Klidná část obce
Vlastnictví
Družstevní
Užitná plocha
92 m2
Lodžie
Výtah
Bezbarierový přístup
Převod do OV

Kontaktovat makléře

Máte zájem o tento byt?

Tímto, v souladu s nařízením Evropského parlamentu a Rady (EU) 2016/679, v platném znění, prohlašuji, že mi je alespoň 16 let a uděluji tak svůj souhlas se zpracováním zadaných údajů (jméno, telefon, e-mail, ip adresa) společnosti B3 Technology, s.r.o., IČ: 07330600, se sídlem Novostavby 126/23, 435 11 Lom (správce dat), za účelem předání dotazu z tohoto formuláře Vámi vybranému inzerentovi a zpětného kontaktování mé osoby. Osobní údaje bude správce zpracovávat manuálně i automaticky přímo prostřednictvím svých zaměstnanců. Informace předané tímto formulářem budou uloženy v databázi správce maximálně po dobu 10 let. Odvolání souhlasu s uložením a zpracováním poskytnutých dat lze e-mailem na info@realitypro.eu. V případě podezření na neoprávněné použití Vámi poskytnutých údajů máte právo předat podnět k šetření Úřadu pro ochranu osobních údajů. Více informací
Chystáte se prodat nemovitost?
Pomůžeme Vám!

Inzerát si prohlédlo 0 lidí

Prodejce

Michal Bezucha

Michal Bezucha

Hlídací pes

Chcete dostávat emailem podobné nabídky prodeje bytů 3+kk v Chlumci nad Cidlinou?

Podobné nemovitosti