Prodej historického objektu, Unhošť, Dědkův mlýn, 72 m2

Dědkův Mlýn, Unhošť

7 290 000 Kč /za nemovitost HYPOTÉKA od 32 582 Kč /za měsíc
Prověřené firmy v Unhošti

Informace k nemovitosti

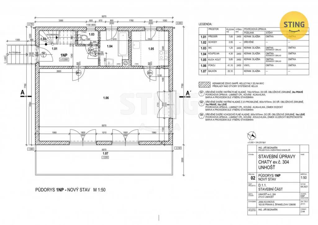
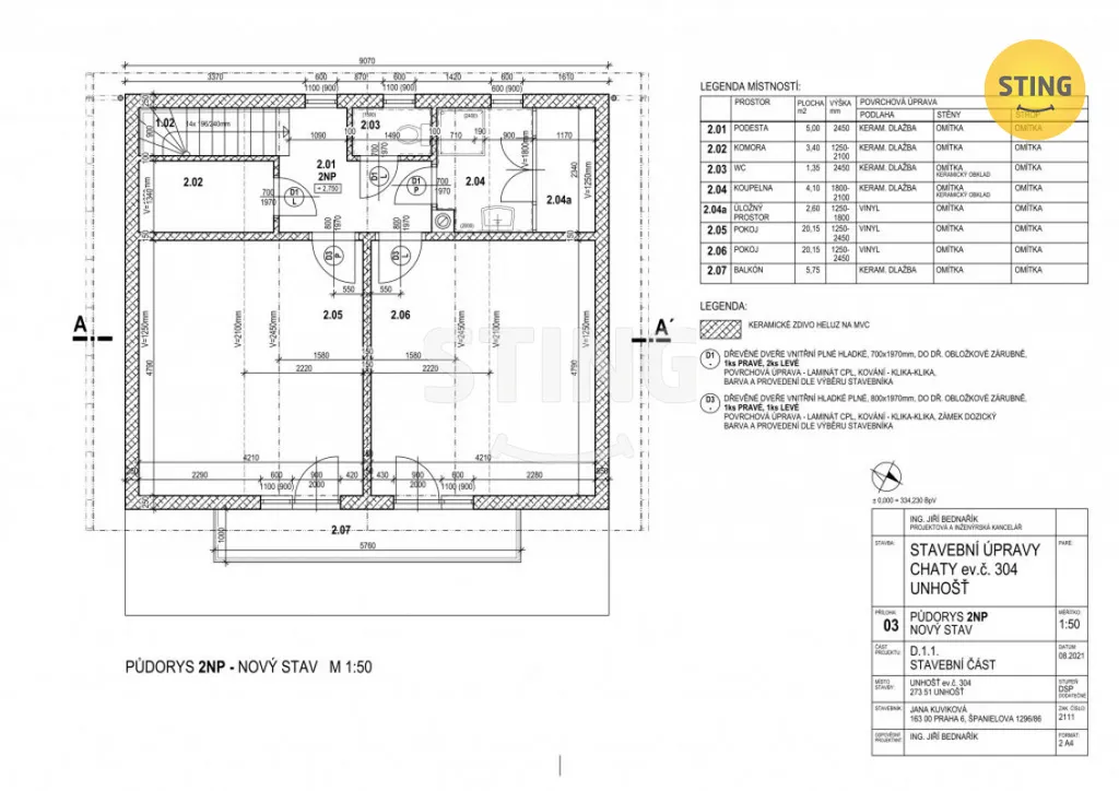
Nabízíme k prodeji rozestavěnou chatu o velikosti 72 m2 na souboru dvou pozemků o celkové výměře 1 151 m2 v klidné a velmi vyhledávané rekreační oblasti u Dědkova Mlýna, v katastrálním území Unhošť (okr. Kladno), pouhých 20 km západně od Prahy.

Na první parcele o velikosti 467 m2 se nachází dva dřevníky a rozestavěná chata s platným stav. povolením se zastavěnou plochou 72 m2. Objekt je ve stavu hrubé stavby z r. 2022 s plánovanou dispozicí:

Přízemí: prostorný obývací pokoj s přirozeným světlem a krásným výhledem do údolí. Místnost pro kuchyňský kout, koupelna s toaletou (příprava na instalace)
Patro: příprava pro 2 ložnice, šatnu, koupelnu

Interiér je připraven k dokončení podle vlastního stylu – ideální pro ty, kteří hledají projekt s potenciálem a možností individuálního řešení.

Druhá parcela přímo navazuje na první a dnes slouží jako rozšíření zahrady a současně také příjezdová cesta k chatě.
Na pozemku se dříve nacházela původní chata (již odstraněná), což může do budoucna umožnit opětovné umístění rekreační stavby – dle případného budoucího posouzení příslušných orgánů.
Součástí je také garáž ve svahu s přístupem z obecní komunikace.

Inženýrské sítě: studna, dotažené odpady, příprava na ČOV, přívod elektřiny

Pozemky jsou v osobním vlastnictví a přístup zajištěn z obecní komunikace.

Oblast u Dědkova Mlýna je známá svým krásným okolím, lesy, cyklo stezkami. Najdete zde naprosté soukromí, příjemné prostředí a zároveň rychlou dostupnost do Prahy i Kladna. Lokalita je vyhledávána pro rekreaci, chataření, ale také pro možnost celoročního bydlení vzhledem k okolní zástavbě. V případě více zájemců si majitel vyhrazuje právo prodat nejvýhodnější nabídce. Do konce ledna 2026 nabízíme prostřednictvím našeho partnera úrokové sazby od 4,29 % p.a. Více informací Vám sdělí náš specialista na prohlídce.

Parametry nemovitosti

Cena
7 290 000 Kč /za nemovitost Spočítat hypotéku
Aktualizováno
9. 1. 2026
Adresa
Dědkův Mlýn, Unhošť
ID
134156
Stavba
Cihlová
Stav objektu
Ve výstavbě
Typ objektu
Patrový
Druh objektu
Samostatný
Lokalita objektu
Klidná část obce
Užitná plocha
72 m2
Zastavěná plocha
72 m2
Podlahová plocha
72 m2
Plocha pozemku
1151 m2
Komunikace
Neupravená
Garáž

Kontaktovat makléře

Máte zájem o tuto nemovistost?

Tímto, v souladu s nařízením Evropského parlamentu a Rady (EU) 2016/679, v platném znění, prohlašuji, že mi je alespoň 16 let a uděluji tak svůj souhlas se zpracováním zadaných údajů (jméno, telefon, e-mail, ip adresa) společnosti B3 Technology, s.r.o., IČ: 07330600, se sídlem Novostavby 126/23, 435 11 Lom (správce dat), za účelem předání dotazu z tohoto formuláře Vámi vybranému inzerentovi a zpětného kontaktování mé osoby. Osobní údaje bude správce zpracovávat manuálně i automaticky přímo prostřednictvím svých zaměstnanců. Informace předané tímto formulářem budou uloženy v databázi správce maximálně po dobu 10 let. Odvolání souhlasu s uložením a zpracováním poskytnutých dat lze e-mailem na info@realitypro.eu. V případě podezření na neoprávněné použití Vámi poskytnutých údajů máte právo předat podnět k šetření Úřadu pro ochranu osobních údajů. Více informací
Chystáte se prodat nemovitost?
Pomůžeme Vám!

Inzerát si prohlédlo 2 lidí

Prodejce

Miroslava Tichá

Miroslava Tichá

Hlídací pes

Chcete dostávat emailem podobné nabídky prodeje historických objektů v Unhošti?