Pronájem bytu 2+1, České Budějovice, Generála Svobody, 70 m2

Generála Svobody, České Budějovice 7

13 000 Kč /za měsíc Získejte výhodnou HYPOTÉKU
Prověřené firmy v Českých Budějovicích

Výkup a prodej starého nábytku

Informace k bytu

Ve výhradním zastoupení majitele nabízíme k pronájmu prostorný zděný byt velikosti 2+1 resp. 2,5+1 v blízkosti centra Českých Budějovic – poblíž areálu Nemocnice ČB (ulice Generála Svobody).
Byt je nabízen částečně zařízený (vybavení bytu viz fotky). V bytě je instalována nová kuchyňské linka, nový kombi sporák, je nově obložená koupelna s vanou. Podlahy v obytných místnostech parkety a PVC. Přípojka pračka/myčka v rámci kuchyňské linky. Součástí bytu jsou úložné prostory (komora a spíž). Prostorný obývací pokoj bytu ve tvaru do L umožňuje rozdělit / oddělit část prostoru např. jako pracovní kout.
K dispozici je byt včetně částečného zařízení: kuchyňská linka, kombi sporák, základním nábytkem (obývací stěna, jídelní stůl, šatní skříně, vybavení nábytkem ale není podmínkou pronájmu). Okna v bytě plastová včetně žaluzií a sítí proti hmyzu.
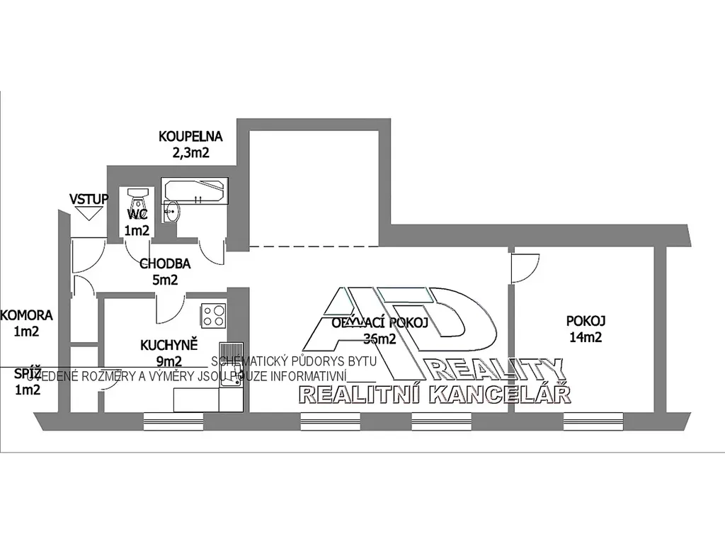
Dispozice bytu: obývací pokoj tvaru do L [36m2], ložnice [14m2], chodba [5m2], kuchyně [9m2] se spíží, koupelna [3m2], samostatné WC [1m2], komora [1m2].
Celková plocha bytu [74m2], podlahová plocha 70m2 + sklep.
Společné prostory domu jsou zrekonstruované (čisté a průběžně udržované). Byt i dům je klidný, tichý – bezproblémoví sousedé.
Energetická náročnost budovy – [D].
Topení: ústřední dálkové (radiátory s termoventily), ohřev vody dálkový, samostatné měření spotřeby teplé a studené vody (vodoměry), elektřiny (elektroměr), zemního plynu (plynoměr).
V bytě je možno připojit internet (Starnet). Občanská vybavenost a parkování: Veškerá občanská vybavenost včetně MHD je v místě, škola, školka, obchody, služby, banka. Parkování je zajištěno na parkovišti v blízkosti bytového domu (nevyhrazené parkování – parkovací zóna / parkovací povolení).
Podmínky / požadavky majitele bytu: Byt je vhodný pro bydlení max 3 osob (max 2dospělí + 1dítě), nekuřáci, malý domácí mazlíček po předchozí dohodě. Byt není vhodný pro spolubydlení či jiné formy sdílení. Nájem studentům / studentkám VŠ je možný po dohodě (max 3 osob). Pronajímatel si vyhrazuje právo výběru nájemce na základě jím zvolených kritérií.
Byt bude k dispozici po dohodě: (únor_2026) a je určen ke dlouhodobému pronájmu.
Nájemné: 13.000,-Kč/měs + zálohy EN (záloha na byt cca 4.000,-Kč/měs podle počtu osob).
Bytová jistina/Kauce: 30.000,-Kč (vratná při ukončení nájmu).
Provize RK: za zprostředkování pronájmu a sepsání nájemní smlouvy: 14.000,-Kč.
Nemovitost je nabízena výhradně realitní kanceláří AD-reality České Budějovice.
Pro bližší informace a termíny prohlídky volejte makléře.

Parametry bytu

Cena
13 000 Kč /za měsíc
Náklady na bydlení
záloha na byt cca 4.000,-Kč/měs podle počtu osob
Aktualizováno
8. 1. 2026
Adresa
Generála Svobody, České Budějovice 7
ID
AD-2752-2026
Stavba
Cihlová
Stav objektu
Dobrý
Patro
1.
Vybaveno
Částečně
Lokalita objektu
Centrum obce
Vlastnictví
Osobní
Užitná plocha
70 m2
Podlahová plocha
74 m2
Třída energetické náročnosti
D - Méně úsporná
Elektřina
230V
Plyn
Plynovod
Odpad
Veřejná kanalizace
Komunikace
Dlážděná
Telekomunikace
Internet
Doprava
Vlak, Dálnice, Silnice, MHD, Autobus
Voda
Vodovod
Topné těleso
Radiátory
Zdroj topení
Ústřední dálkové
Zdroj teplé vody
Centrální dálkový ohřev
Sklep
Výtah
Bezbarierový přístup

Kontaktovat makléře

Realitní kancelář

AD reality CB

Dr. Stejskala 108/7, České Budějovice

Chystáte se prodat nemovitost?
Pomůžeme Vám!

Máte zájem o tento byt?

Tímto, v souladu s nařízením Evropského parlamentu a Rady (EU) 2016/679, v platném znění, prohlašuji, že mi je alespoň 16 let a uděluji tak svůj souhlas se zpracováním zadaných údajů (jméno, telefon, e-mail, ip adresa) společnosti B3 Technology, s.r.o., IČ: 07330600, se sídlem Novostavby 126/23, 435 11 Lom (správce dat), za účelem předání dotazu z tohoto formuláře Vámi vybranému inzerentovi a zpětného kontaktování mé osoby. Osobní údaje bude správce zpracovávat manuálně i automaticky přímo prostřednictvím svých zaměstnanců. Informace předané tímto formulářem budou uloženy v databázi správce maximálně po dobu 10 let. Odvolání souhlasu s uložením a zpracováním poskytnutých dat lze e-mailem na info@realitypro.eu. V případě podezření na neoprávněné použití Vámi poskytnutých údajů máte právo předat podnět k šetření Úřadu pro ochranu osobních údajů. Více informací
Chystáte se prodat nemovitost?
Pomůžeme Vám!

Inzerát si prohlédlo 1 lidí

Prodejce

Václava Drábová

Václava Drábová

Hlídací pes

Chcete dostávat emailem podobné nabídky pronájmu bytů 2+1 v Českých Budějovicích?

Podobné nemovitosti