Soccer reality

Pronájem pozemku, Praha - Horní Počernice, 382 m2

Praha, Horní Počernice

22 000 Kč /za měsíc Získejte výhodnou HYPOTÉKU

(+ DPH a slzžby 1.910, Kč/měs)

Prověřené firmy v Praze 9

Stěhovací služby

Výkup a prodej starého nábytku

Informace k pozemku

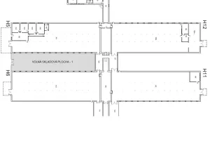
Pronájem zpevněné oplocené plochy 382 m2. Pozemek se nachází v rámci logistického areálu s ostrahou 24/7. Příjezd kamionu možný.
Možnost pronájmu další skladové plochy, kanceláře v tomto areálu.
U této nabídky neplatíte provizi.

Parametry pozemku

Cena
22 000 Kč /za měsíc
Poznámka k ceně
+ DPH a slzžby 1.910, Kč/měs
Aktualizováno
6. 1. 2026
Adresa
Praha, Horní Počernice
ID
972681
Plocha pozemku
382 m2
Komunikace
Asfaltová
Doprava
Dálnice, Silnice, MHD, Autobus

Kontaktovat makléře

Máte zájem o tento pozemek?

Tímto, v souladu s nařízením Evropského parlamentu a Rady (EU) 2016/679, v platném znění, prohlašuji, že mi je alespoň 16 let a uděluji tak svůj souhlas se zpracováním zadaných údajů (jméno, telefon, e-mail, ip adresa) společnosti B3 Technology, s.r.o., IČ: 07330600, se sídlem Novostavby 126/23, 435 11 Lom (správce dat), za účelem předání dotazu z tohoto formuláře Vámi vybranému inzerentovi a zpětného kontaktování mé osoby. Osobní údaje bude správce zpracovávat manuálně i automaticky přímo prostřednictvím svých zaměstnanců. Informace předané tímto formulářem budou uloženy v databázi správce maximálně po dobu 10 let. Odvolání souhlasu s uložením a zpracováním poskytnutých dat lze e-mailem na info@realitypro.eu. V případě podezření na neoprávněné použití Vámi poskytnutých údajů máte právo předat podnět k šetření Úřadu pro ochranu osobních údajů. Více informací
Chystáte se prodat nemovitost?
Pomůžeme Vám!

Inzerát si prohlédlo 0 lidí

Prodejce

Ing. Stanislav Šesták

Ing. Stanislav Šesták

Hlídací pes

Chcete dostávat emailem podobné nabídky pronájmu pozemků (ostatní) v Praze 9?

Podobné nemovitosti