Prodej vícegeneračního domu, Praha - Michle, Pod Sychrovem I, 460 m2 (ID: 2768054)

Pod Sychrovem I, Praha, Michle

29 900 000 Kč /za nemovitost HYPOTÉKA od 133 635 Kč /za měsíc

(Vč. právního servisu.)

Prověřené firmy v Praze 10

Stěhovací služby

Výkup a prodej starého nábytku

Informace k domu

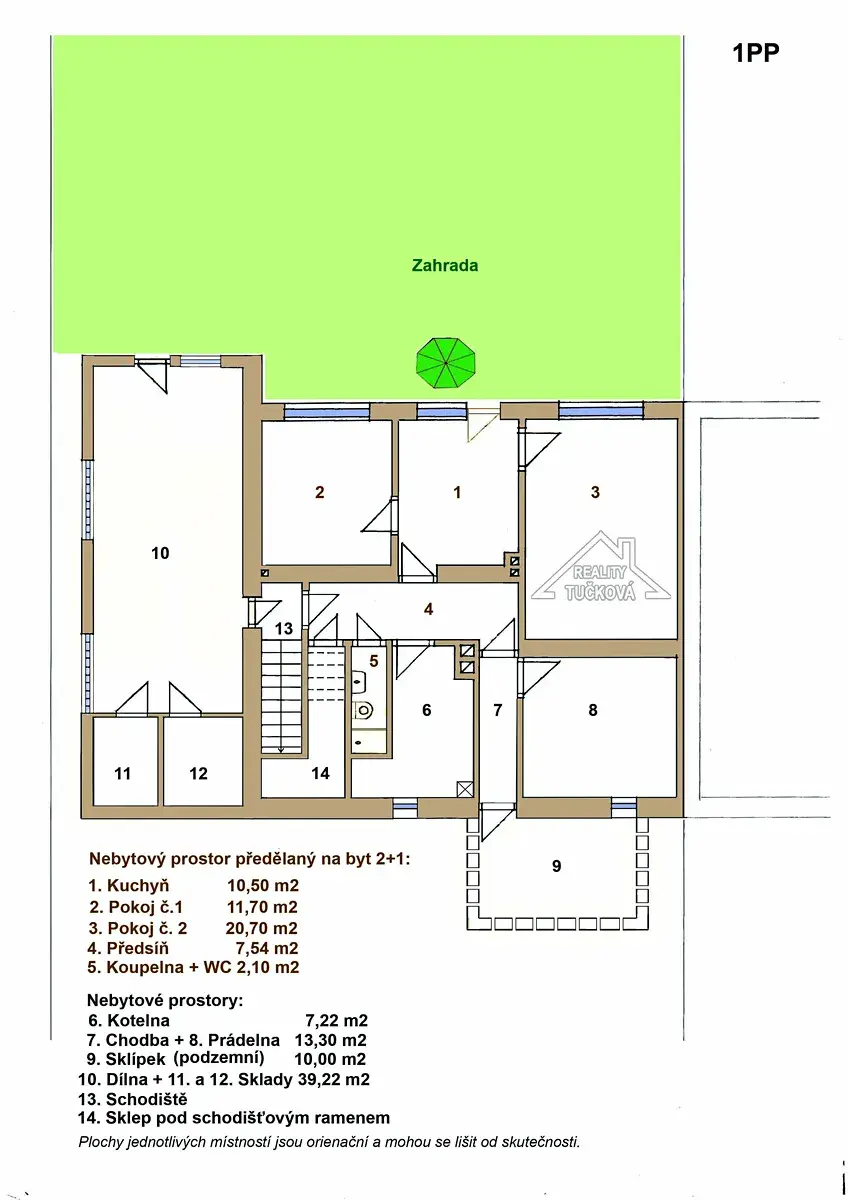
Nabídka prodeje rodinného domu se zahradou, který se nachází v klidné ulici v těsné blízkosti malebného lesoparku Bohdalec, v městské části Michle. Dům se 3 nadzemními a 1 podzemním podlaží o celkové podlahové ploše 290 m2 disponuje celkem 4 jednotkami a to: 2 byty 4+1 s balkónem a dalšími 2 „byty“ 2+1, které byly vybudovány z původního sklepního a půdního prostoru. Dům dále disponuje terasou, garáží, dílnou, sklepy, kotelnou, prádelnou a podzemním sklípkem. Užitná plocha jednotek, užívaných k bydlení, je 290 m2 a celková plocha vč. balkónů, terasy, garáže a nebytových prostor je 460 m2, plocha zahrady je 416 m2 a celková plocha pozemku se zahradou je 578 m2. Dům tak poskytuje dostatek prostoru pro více generací rodiny, možnost pronájmu či podnikání.

Dům byl postaven v 70-tých letech minulého století a kolaudován byl až dodatečně v roce 1990. Jedná se o přístavbu druhé poloviny dvojdomku. Dům je v plně funkčním a průběžně udržovaném stavu, bez větší rekonstrukce a zateplení. V současné době jsou 3 jednotky v domě pronajaty s možností výpovědi smluv.

Dům se nachází na mírně svažitém pozemku s pěkným výhledem z vyšších pater na Prahu, což dodává této nemovitosti další rozměr jedinečnosti. Dům je vybaven centrálním schodištěm (schody betonové s teracem), které propojuje všechny čtyři podlaží a umožňuje snadný přístup do jednotlivých jednotek. Okna jsou dřevěná dvojitá, špaletová, na podlaze v jednotkách je PVC / dlažba / vlýsky / koberce a zařízeny jsou standardními zařizovacími předměty. Topení je etážové s plynovým kombi kotlem (jeden kotel pro 2 jednotky je umístěn v 1PP a 3NP), litinové radiátory, plynové sporáky.

Dispozice domu:
1PP: Jednotka 2+1 (52,54 m2) s přímým vstupem z bytu na zahradu + dílna, sklepy, kotelna, prádelna, sklípek (69,74 m2);
1NP: Byt 4+1 (79,22 m2) + balkón (7,99 m2) a garáž (39,22 m2);
2NP: Byt 4+1 (79,22 m2) + balkón (7,99 m2) a terasa nad garáží (44,80 m2);
3NP: Podkrovní jednotka 2+1 (79,12 m2).

Zahrada na mírně svažitém jižním závětrném pozemku je zatravněná a osázená ovocnými stromy. Dům je napojen na kompletní veřejné inženýrské sítě. Měsíční výdaje spojené s provozem domu jsou cca 18.800,-Kč za všechny 4 obydlené jednotky a za cca 10 osob užívající dům. PENB není k dispozici, proto uvádím tř. „G“.

Dobrá dopravní dostupnost je na metro A – Nám. Míru, Flóra a metro C – I.P.Pavlova, Florenc (cesta TRAM či BUSem trvá 12-20min). V okolí je jak veškerá občanská vybavenost, tak i příroda (lesopark Bohdalec a Tyršův vrch).

Tato nemovitost je ideální pro ty, kteří hledají klidné bydlení či zajímavou investiční příležitost v blízkosti přírody, ale zároveň chtějí mít město na dosah ruky

Nezmeškejte tuto jedinečnou šanci a přijďte se podívat, ráda vás uvítám na osobní prohlídce domu!

Parametry domu

Cena
29 900 000 Kč /za nemovitost Spočítat hypotéku
Poznámka k ceně
Vč. právního servisu.
Aktualizováno
3. 1. 2026
Adresa
Pod Sychrovem I, Praha, Michle
ID
25013
Stavba
Cihlová
Stav objektu
Dobrý
Vybaveno
Částečně
Druh objektu
Řadový
Lokalita objektu
Klidná část obce
Užitná plocha
460 m2
Zastavěná plocha
162 m2
Plocha pozemku
578 m2
Plocha zahrady
416 m2
Třída energetické náročnosti
G - Mimořádně nehospodárná
Elektřina
230V
Plyn
Plynovod
Odpad
Veřejná kanalizace
Komunikace
Asfaltová
Telekomunikace
Telefon, Internet
Doprava
MHD
Voda
Vodovod
Topné těleso
Radiátory
Zdroj topení
Plynový kondenzační kotel
Zdroj teplé vody
Plynový kondenzační kotel
Garáž
Sklep
Výtah
Parkování

Kontaktovat makléře

Realitní kancelář

REALITY TUČKOVÁ

náměstí 14. října 1307/2, Praha, Smíchov

Chystáte se prodat nemovitost?
Pomůžeme Vám!

Máte zájem o tento dům?

Tímto, v souladu s nařízením Evropského parlamentu a Rady (EU) 2016/679, v platném znění, prohlašuji, že mi je alespoň 16 let a uděluji tak svůj souhlas se zpracováním zadaných údajů (jméno, telefon, e-mail, ip adresa) společnosti B3 Technology, s.r.o., IČ: 07330600, se sídlem Novostavby 126/23, 435 11 Lom (správce dat), za účelem předání dotazu z tohoto formuláře Vámi vybranému inzerentovi a zpětného kontaktování mé osoby. Osobní údaje bude správce zpracovávat manuálně i automaticky přímo prostřednictvím svých zaměstnanců. Informace předané tímto formulářem budou uloženy v databázi správce maximálně po dobu 10 let. Odvolání souhlasu s uložením a zpracováním poskytnutých dat lze e-mailem na info@realitypro.eu. V případě podezření na neoprávněné použití Vámi poskytnutých údajů máte právo předat podnět k šetření Úřadu pro ochranu osobních údajů. Více informací
Chystáte se prodat nemovitost?
Pomůžeme Vám!

Inzerát si prohlédlo 11 lidí

Prodejce

Lenka Tučková

Lenka Tučková

Hlídací pes

Chcete dostávat emailem podobné nabídky prodeje vícegeneračních domů v Praze 10?

Podobné nemovitosti