Pronájem výrobních prostor, Lišov, Hůrecká, 2357 m2 (ID: 2767667)

Hůrecká, Lišov

196 000 Kč /za měsíc Získejte výhodnou HYPOTÉKU

(+ energie, bez DPH, včetně právního servisu)

Prověřené firmy v Lišově

Výkup a prodej starého nábytku

Informace k nemovitosti

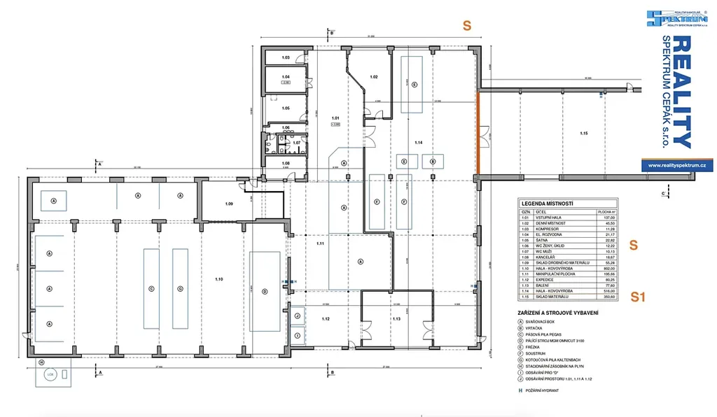
Pronájem moderní provozní budovy vhodné pro výrobu, skladování, opravárenské služby a další v komerčním areálu na okraji města. Budova je rozdělena na čtyři samostatné provozní celky. Celková využitelná výměra budovy je 2.357m2. Součástí budovy jsou kanceláře, denní místnosti pro zaměstnance a sociální zařízení. Samostatný sklad nebezpečných látek a kompresorovna. V hlavní provozní hale o výměře 802m2 je mostový jeřáb s nosností 5t. Hala má 6 samostatných vjezdových i výjezdových vrat. K dispozici jsou i montážní jámy. Provozní výška haly je 7,5m. Ostatní prostory mají provozní výšku 6m. Všechny vjezdová vrata do budovy mají rozměr 4m šířka x 4,5m výška. Budova sloužila dříve jako servis nákladních automobilů. V současné době je využita pro těžkou kovovýrobu. Rozměry jednotlivých částí vč. plánu současného využití viz. fotografie. Elektrický příkon 300kW (400A), je možné i navýšení. Vytápění moderními topidly ROBUR s možností lokálního nastavení. K dispozici jsou velké venkovní manipulační plochy a parkovací plochy pro zaměstnance i návštěvy. Přístup do areálu je 24/7. Areál má stálou ostrahu a vrátnici. Možnost pronájmu dalších prostorů v areálu (informace na tel. 607 177 472). --- Nájemné: 196.000,- Kč/měs. + energie dle skutečné spotřeby. --- Provozní paušál za služby v areálu: 63.000,- Kč/měs. --- Uvedené ceny jsou bez DPH.

Parametry nemovitosti

Cena
196 000 Kč /za měsíc
Poznámka k ceně
+ energie, bez DPH, včetně právního servisu
Aktualizováno
31. 1. 2026
Adresa
Hůrecká, Lišov
ID
953 Lišov S výroba
Stavba
Cihlová
Stav objektu
Velmi dobrý
Lokalita objektu
Okraj obce
Užitná plocha
2357 m2
Třída energetické náročnosti
C - Úsporná
Ukazatel energetické náročnosti
702 kWh/m2 za rok
Elektřina
230V, 400V
Odpad
Veřejná kanalizace
Komunikace
Asfaltová
Telekomunikace
Telefon, Internet
Doprava
Dálnice, Silnice, Autobus
Voda
Vodovod
Topné těleso
Jiné
Zdroj topení
Centrální dálkové
Zdroj teplé vody
Centrální dálkový ohřev
Parkování

Kontaktovat makléře

Máte zájem o tuto nemovistost?

Tímto, v souladu s nařízením Evropského parlamentu a Rady (EU) 2016/679, v platném znění, prohlašuji, že mi je alespoň 16 let a uděluji tak svůj souhlas se zpracováním zadaných údajů (jméno, telefon, e-mail, ip adresa) společnosti B3 Technology, s.r.o., IČ: 07330600, se sídlem Novostavby 126/23, 435 11 Lom (správce dat), za účelem předání dotazu z tohoto formuláře Vámi vybranému inzerentovi a zpětného kontaktování mé osoby. Osobní údaje bude správce zpracovávat manuálně i automaticky přímo prostřednictvím svých zaměstnanců. Informace předané tímto formulářem budou uloženy v databázi správce maximálně po dobu 10 let. Odvolání souhlasu s uložením a zpracováním poskytnutých dat lze e-mailem na info@realitypro.eu. V případě podezření na neoprávněné použití Vámi poskytnutých údajů máte právo předat podnět k šetření Úřadu pro ochranu osobních údajů. Více informací
Chystáte se prodat nemovitost?
Pomůžeme Vám!

Inzerát si prohlédlo 3 lidí

Prodejce

REALITY SPEKTRUM CEPÁK s.r.o.

REALITY SPEKTRUM CEPÁK s.r.o.

Hlídací pes

Chcete dostávat emailem podobné nabídky pronájmu výrobních prostor v Lišově (okr. České Budějovice)?

Podobné nemovitosti