Pronájem bytu 3+kk, Praha - Podolí, Na Zlatnici, 74 m2

Na Zlatnici, Podolí - Praha 4

29 200 Kč /za měsíc Získejte výhodnou HYPOTÉKU

(vratná jistota, náklady na bydlení 4 900 Kč, poplatek za podnájem)

Prověřené firmy v Praze 4

Stěhovací služby

Výkup a prodej starého nábytku

Informace k bytu

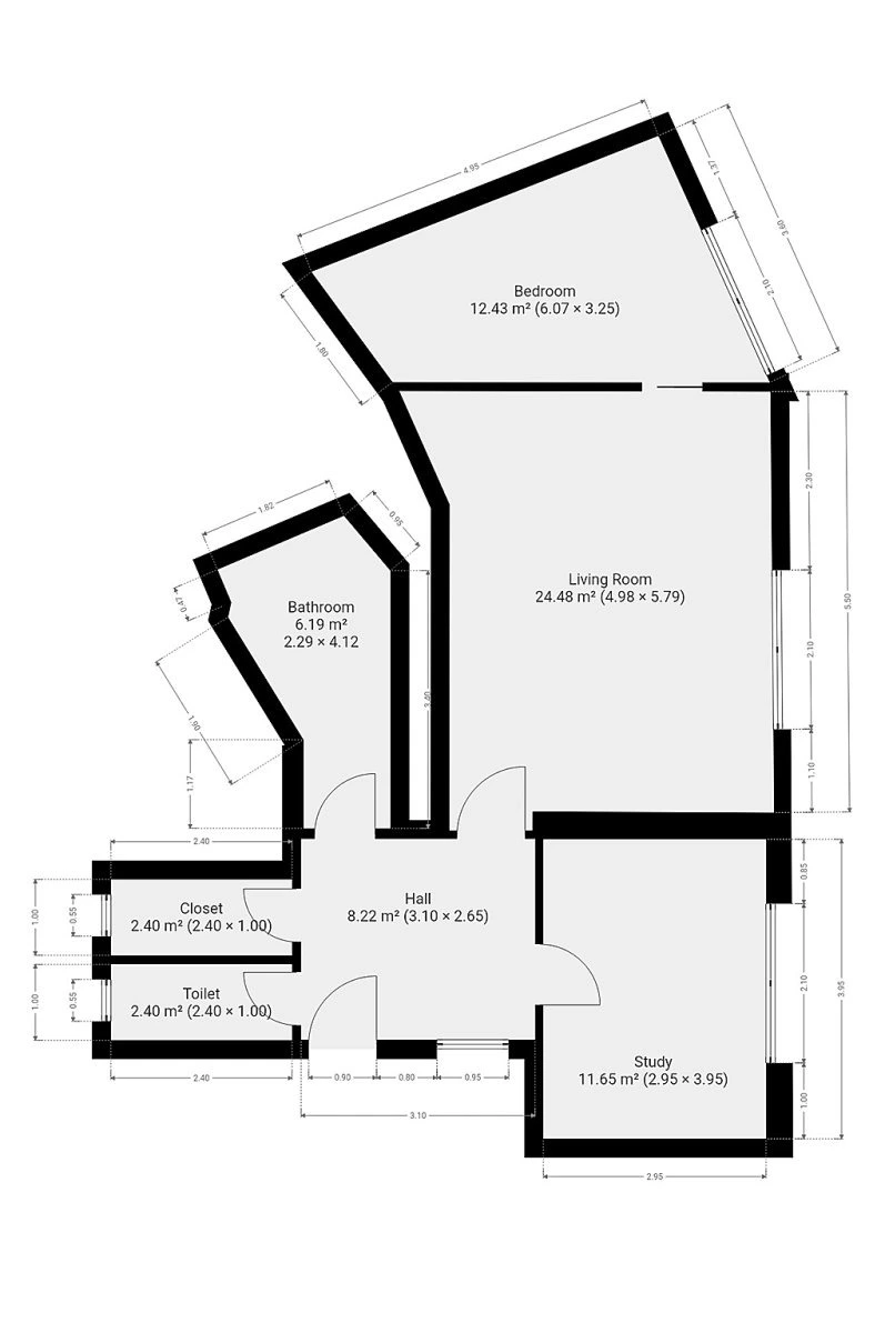
K dlouhodobému podnájmu nabízíme krásný byt o dispozici 3+kk v klidné lokalitě Praha 4 - Podolí. Byt o celkové výměře 74 m2 se nachází v 1. patře cihlového domu s výtahem. K bytu patří i komora a uzamykatelná terasa vedle bytu.

Byt se nabízí částečně vybavený. Kuchyně disponuje lednicí s mrazákem, elektrickou troubou s plynovým sporákem a digestoří. Obývací část je zařízena jídelním stolem s 2 židlemi. Součástí ložnice je postel, věšák, noční stolek a lampička. V druhém pokoji najdeme pracovní stůl s židlí. Nábytek je možné po domluvě vyklidit. V koupelně je vana, umyvadlo, zrcadlo a pračka. Toaleta je umístěna samostatně.

Vinylové podlahy, plastová okna, vytápění a ohřev vody plynovým kotlem, přípojka na internet.

V okolí domu najdeme restaurace, kavárny, prodejny potravin, základní a mateřskou školu, dětské hřiště, lékárnu, národní kulturní památku Vyšehrad, městskou zeleň (Park Na Topolce, Park Antonína Engela, Vyšehradské sady, Lumírovy sady, Karlachovy sady), Plavecký stadion Podolí, Žluté lázně (areál se sportovními akcemi a občerstvením, nabízející indoboard, slackline, venkovní šachy, pétanque, beach volejbal, stolní tenis, nohejbal, dětský koutek, půjčovnu koloběžek, šlapadel, lodí, kol a bruslí), Sauny Vltava - Centrum duševního zdraví atd. Jen pár kroků chůze od domu je umístěna autobusová zastávka Doliny (rychlé spojení na stanice metra C - Pražského povstání, Pankrác a Budějovická) a v docházkové vzdálenosti se nachází zastávka tramvaje Podolská vodárna (pár minut jízdy na stanici metra B - Karlovo náměstí a dále do centra).


Energetická třída: D (méně úsporná).

Parametry bytu

Cena
29 200 Kč /za měsíc
Poznámka k ceně
vratná jistota, náklady na bydlení 4 900 Kč, poplatek za podnájem
Aktualizováno
3. 3. 2026
Adresa
Na Zlatnici, Podolí - Praha 4
ID
N5815
Stavba
Cihlová
Stav objektu
Velmi dobrý
Patro
2. z 6
Vybaveno
Částečně
Typ objektu
Patrový
Lokalita objektu
Klidná část obce
Vlastnictví
Osobní
Užitná plocha
74 m2
Podlahová plocha
74 m2
Třída energetické náročnosti
D - Méně úsporná
Elektřina
230V
Plyn
Plynovod
Topení
Ústřední plynové
Doprava
Vlak, Dálnice, Silnice, MHD, Autobus
Voda
Vodovod
Balkon
Terasa
Výtah

Kontaktovat makléře

Máte zájem o tento byt?

Tímto, v souladu s nařízením Evropského parlamentu a Rady (EU) 2016/679, v platném znění, prohlašuji, že mi je alespoň 16 let a uděluji tak svůj souhlas se zpracováním zadaných údajů (jméno, telefon, e-mail, ip adresa) společnosti B3 Technology, s.r.o., IČ: 07330600, se sídlem Novostavby 126/23, 435 11 Lom (správce dat), za účelem předání dotazu z tohoto formuláře Vámi vybranému inzerentovi a zpětného kontaktování mé osoby. Osobní údaje bude správce zpracovávat manuálně i automaticky přímo prostřednictvím svých zaměstnanců. Informace předané tímto formulářem budou uloženy v databázi správce maximálně po dobu 10 let. Odvolání souhlasu s uložením a zpracováním poskytnutých dat lze e-mailem na info@realitypro.eu. V případě podezření na neoprávněné použití Vámi poskytnutých údajů máte právo předat podnět k šetření Úřadu pro ochranu osobních údajů. Více informací
Chystáte se prodat nemovitost?
Pomůžeme Vám!

Inzerát si prohlédlo 1 lidí

Prodejce

Miloslava Kačerová

Miloslava Kačerová

Hlídací pes

Chcete dostávat emailem podobné nabídky pronájmu bytů 3+kk v Praze 4?

Podobné nemovitosti