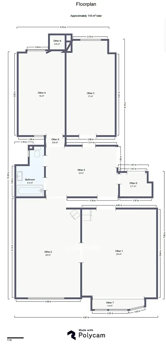
Prodej bytu 4+kk, Praha - Bubeneč, Čechova, 116 m2

Čechova, Praha, Bubeneč

19 900 000 Kč /za nemovitost HYPOTÉKA od 88 941 Kč /za měsíc
Prověřené firmy v Praze 7

Stěhovací služby

Výkup a prodej starého nábytku

Informace k bytu

Nabízíme k prodeji krásný byt o dispozici 4+kk a výměře 116 m2 v atraktivní lokalitě Prahy 7 Bubeneč, ul. Čechova.
Byt se nachází ve 3. patře udržovaného cihlového domu. Byt je nezařízený, na podlahách jsou nově vybroušené parkety.
Vynikající lokalita v těsné blízkosti parku Stromovka a veškeré občanské vybavenosti. Pro bližší informace a domluvení prohlídky nás neváhejte kontaktovat.

Parametry bytu

Cena
19 900 000 Kč /za nemovitost Spočítat hypotéku
Aktualizováno
28. 12. 2025
Adresa
Čechova, Praha, Bubeneč
ID
00048
Stavba
Cihlová
Stav objektu
Velmi dobrý
Patro
4.
Vlastnictví
Osobní
Užitná plocha
116 m2
Třída energetické náročnosti
G - Mimořádně nehospodárná
Sklep

Kontaktovat makléře

Realitní kancelář

Moovido

Přemyslovská 1939/28, Praha

Chystáte se prodat nemovitost?
Pomůžeme Vám!

Máte zájem o tento byt?

Tímto, v souladu s nařízením Evropského parlamentu a Rady (EU) 2016/679, v platném znění, prohlašuji, že mi je alespoň 16 let a uděluji tak svůj souhlas se zpracováním zadaných údajů (jméno, telefon, e-mail, ip adresa) společnosti B3 Technology, s.r.o., IČ: 07330600, se sídlem Novostavby 126/23, 435 11 Lom (správce dat), za účelem předání dotazu z tohoto formuláře Vámi vybranému inzerentovi a zpětného kontaktování mé osoby. Osobní údaje bude správce zpracovávat manuálně i automaticky přímo prostřednictvím svých zaměstnanců. Informace předané tímto formulářem budou uloženy v databázi správce maximálně po dobu 10 let. Odvolání souhlasu s uložením a zpracováním poskytnutých dat lze e-mailem na info@realitypro.eu. V případě podezření na neoprávněné použití Vámi poskytnutých údajů máte právo předat podnět k šetření Úřadu pro ochranu osobních údajů. Více informací
Chystáte se prodat nemovitost?
Pomůžeme Vám!

Inzerát si prohlédlo 0 lidí

Prodejce

Eva Hanzlová

Eva Hanzlová

Hlídací pes

Chcete dostávat emailem podobné nabídky prodeje bytů 4+kk v Praze 7?

Podobné nemovitosti