Prodej bytu 2+kk, Praha - Uhříněves, Karla Zicha, 66 m2 (ID: 2764909)

Karla Zicha, Uhříněves - Praha 22

7 700 000 Kč /za nemovitost HYPOTÉKA od 34 414 Kč /za měsíc
Prověřené firmy v Praze 10

Stěhovací služby

Výkup a prodej starého nábytku

Informace k bytu

Nabízíme k prodeji prostorný slunný byt 2+kk, Karla Zicha, Praha Uhříněves.
Dům je součástí bytového komplexu Zahrady Uhříněves dokončeného v roce 2007, který tvoří neprůjezdnou polouzavřenou lokalitu obytné zóny se vzrostlou zelení.
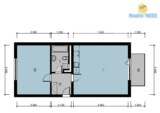
Byt se nachází v prvním patře s pěkným výhledem na Uhříněveský kostel. Skládá se z prostorného obývacího pokoje s kuchyňským koutem (32 m2), ložnice (19 m2), předsíně (5 m2), koupelny (5 m2), balkonu (5 m2) a sklepu (5 m2). Kuchyňská linka je s vestavěnými spotřebiči, elektrickou troubou, mikrovlnnou troubou a myčkou na nádobí. Ložnice je orientovaná na východ, obývací pokoj s balkonem na západ. V obou místnostech je velké třídílné francouzské okno.
V suterénu domu je plynový kotel, který zajišťuje jak vytápění, tak celoročně teplou vodu. V bytě je k dispozici internetové připojení optickým kabelem.
Měsíční poplatky jsou cca. 5000 za měsíc (SVJ, fond oprav, teplo, teplá a studená voda). Elektřina je cca. 1000 za měsíc. V případě zájmu lze převzít od současného majitele pronájem podzemního garážového stání pod budovou (1900 za měsíc).
Veškerá občanská vybavenost je v okolí. V Uhříněvsi jsou dvě základní školy, pět mateřských škol a dále obchody Lidl, Penny, Billa a Norma. V centru obce je v docházkové vzdálenosti nabídka 10 restaurací, kavárna, cukrárna, pošta. Kulturním zážitkům slouží kino a divadlo U22, pro sportovní vyžití se nabízí sokolovna, tenisové a badmintonové kurty i fotbalový klub Čechie Uhříněves, skatepark a v zimě je možné bruslit v areálu základní školy nebo na jednom ze zdejších rybníků.
Dopravní dostupnost je velmi dobrá. Linka vlaku S9 jezdí do centra Prahy každou čtvrthodinu, dále je zde bus 15 min na metro C Háje a Metro A Depo Hostivař.
Celkově jde o příjemné bydlení v klidné lokalitě se spoustou zeleně v okolí. Vážní zájemci volejte Po-Pá 9-18h.

Parametry bytu

Cena
7 700 000 Kč /za nemovitost Spočítat hypotéku
Aktualizováno
27. 12. 2025
Adresa
Karla Zicha, Uhříněves - Praha 22
ID
N5317
Stavba
Cihlová
Stav objektu
Velmi dobrý
Patro
2. z 3
Typ objektu
Patrový
Vlastnictví
Osobní
Užitná plocha
66 m2
Podlahová plocha
71 m2
Třída energetické náročnosti
C - Úsporná
Elektřina
230V
Plyn
Plynovod
Topení
Ústřední dálkové
Telekomunikace
Telefon, Internet, Satelit, Kabelová televize
Doprava
Silnice, MHD, Autobus
Voda
Vodovod
Balkon
Sklep
Výtah

Kontaktovat makléře

Máte zájem o tento byt?

Tímto, v souladu s nařízením Evropského parlamentu a Rady (EU) 2016/679, v platném znění, prohlašuji, že mi je alespoň 16 let a uděluji tak svůj souhlas se zpracováním zadaných údajů (jméno, telefon, e-mail, ip adresa) společnosti B3 Technology, s.r.o., IČ: 07330600, se sídlem Novostavby 126/23, 435 11 Lom (správce dat), za účelem předání dotazu z tohoto formuláře Vámi vybranému inzerentovi a zpětného kontaktování mé osoby. Osobní údaje bude správce zpracovávat manuálně i automaticky přímo prostřednictvím svých zaměstnanců. Informace předané tímto formulářem budou uloženy v databázi správce maximálně po dobu 10 let. Odvolání souhlasu s uložením a zpracováním poskytnutých dat lze e-mailem na info@realitypro.eu. V případě podezření na neoprávněné použití Vámi poskytnutých údajů máte právo předat podnět k šetření Úřadu pro ochranu osobních údajů. Více informací
Chystáte se prodat nemovitost?
Pomůžeme Vám!

Inzerát si prohlédlo 3 lidí

Prodejce

Ing. arch. Jan Šťastna M.Sc.

Ing. arch. Jan Šťastna M.Sc.

Hlídací pes

Chcete dostávat emailem podobné nabídky prodeje bytů 2+kk v Praze 10?

Podobné nemovitosti