Prodej bytu 2+kk, Praha - Vinohrady, V Horní Stromce, 47 m2 (ID: 2763739)

V Horní Stromce, Praha, Vinohrady

10 732 000 Kč /za nemovitost HYPOTÉKA od 47 966 Kč /za měsíc
Prověřené firmy v Praze 3

Stěhovací služby

Výkup a prodej starého nábytku

Informace k bytu

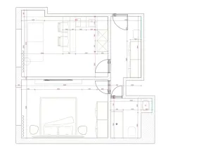
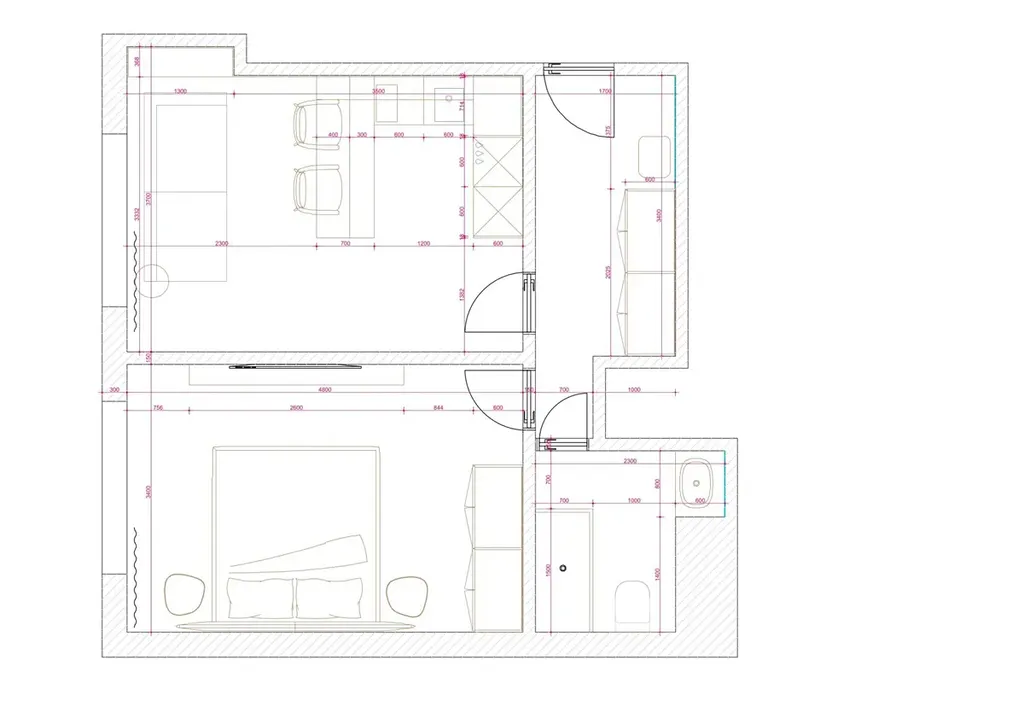
Nabízíme k prodeji svěží a příjemně řešený byt 2+kk o velikosti 47,7 m, umístěný ve druhém patře kompletně zrekonstruovaného domu Horní Stromka. Dům se nachází na pomezí Vinohrad a Vršovic dvou žádaných pražských částí s perfektní atmosférou i občanskou vybaveností. K bytu náleží také sklepní kóje.

Dispozice bytu je promyšlená s ohledem na komfortní každodenní fungování. Vstupní chodba ústí do vzdušného obývacího pokoje s kuchyňskou linkou a jídelní zónou. Kuchyně je řešená podél stěny, poskytuje dostatek pracovního prostoru a plynule navazuje na obývací část. Z obývacího pokoje se vstupuje do ložnice orientované do klidné části domu. Pokoj nabízí dost místa pro manželskou postel i kvalitní úložné řešení.

Koupelna je vybavena sprchovým koutem, umyvadlem a toaletou. V bytě se nachází také praktické vestavěné úložné prvky. Celková dispozice působí svěže, funkčně a nabízí dostatek pohodlí pro jednotlivce i pár.

Lokalita nabízí ideální kombinaci klidného bydlení a života v centru dění. V okolí najdete vyhlášené kavárny, restaurace, obchody i oblíbené parky Havlíčkovy sady, Riegrovy sady nebo Parukářku. Dopravní dostupnost je výborná: pár minut chůze od domu se nachází stanice metra, tramvajové i autobusové linky, cesta do centra trvá jen několik minut.

Byt je ideální jak pro vlastní komfortní bydlení, tak jako velmi zajímavá investice. Pro více informací či domluvení prohlídky nás rádi kontaktujte.

Byt k nastěhování od 15.2.2026

Parametry bytu

Cena
10 732 000 Kč /za nemovitost Spočítat hypotéku
Aktualizováno
24. 12. 2025
Adresa
V Horní Stromce, Praha, Vinohrady
ID
216
Stavba
Cihlová
Stav objektu
Před rekonstrukcí
Patro
2. z 4
Vlastnictví
Osobní
Užitná plocha
47 m2
Podlahová plocha
50 m2
Třída energetické náročnosti
D - Méně úsporná
Plyn
Plynovod
Topení
Ústřední dálkové
Telekomunikace
Telefon, Internet, Kabelové rozvody
Doprava
MHD, Autobus
Voda
Vodovod
Zdroj topení
Plynový kotel
Sklep
Výtah
Bezbarierový přístup

Kontaktovat makléře

Máte zájem o tento byt?

Tímto, v souladu s nařízením Evropského parlamentu a Rady (EU) 2016/679, v platném znění, prohlašuji, že mi je alespoň 16 let a uděluji tak svůj souhlas se zpracováním zadaných údajů (jméno, telefon, e-mail, ip adresa) společnosti B3 Technology, s.r.o., IČ: 07330600, se sídlem Novostavby 126/23, 435 11 Lom (správce dat), za účelem předání dotazu z tohoto formuláře Vámi vybranému inzerentovi a zpětného kontaktování mé osoby. Osobní údaje bude správce zpracovávat manuálně i automaticky přímo prostřednictvím svých zaměstnanců. Informace předané tímto formulářem budou uloženy v databázi správce maximálně po dobu 10 let. Odvolání souhlasu s uložením a zpracováním poskytnutých dat lze e-mailem na info@realitypro.eu. V případě podezření na neoprávněné použití Vámi poskytnutých údajů máte právo předat podnět k šetření Úřadu pro ochranu osobních údajů. Více informací
Chystáte se prodat nemovitost?
Pomůžeme Vám!

Inzerát si prohlédlo 0 lidí

Prodejce

Roman Antošík

Roman Antošík

Hlídací pes

Chcete dostávat emailem podobné nabídky prodeje bytů 2+kk v Praze 3?

Podobné nemovitosti