Prodej bytu 4+1, Praha - Vinohrady, Záhřebská, 87 m2

Záhřebská, Praha, Vinohrady

20 999 000 Kč /za nemovitost HYPOTÉKA od 93 853 Kč /za měsíc
Prověřené firmy v Praze 2

Stěhovací služby

Výkup a prodej starého nábytku

Informace k bytu

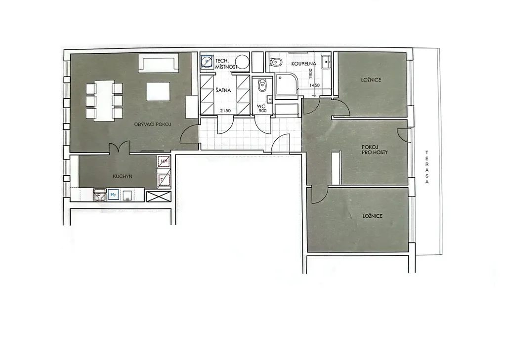
Nabízíme k prodeji prostorný byt 4+1 v atraktivní lokalitě Prahy - Vinohrady, který se nachází v panelové budově v sedmém patře. Nad tímto bytem je ještě půda, která je využívána jako technické zázemí domu. Tento jednopodlažní byt je ve velmi dobrém stavu a nabízí ideální řešení pro rodiny, které hledají komfortní a praktický domov.

Na užitné ploše 87 m² se rozkládají čtyři pokoje a kuchyň, které poskytují dostatek prostoru pro volný čas a odpočinek. Každá místnost je pečlivě upravená a udržovaná, aby poskytla příjemné a útulné prostředí a soukromí. Byt má vlastní oddělenou šatnu a za ní ještě úklidovou místnost. K bytu patří terasa o výměře 11 m², kde si můžete užít krásné výhledy a relaxovat. Pro úschovu věcí je k dispozici sklepní prostor s plochou 3 m².

V roce 2020 proběhla kompletní rekonstrukce. V bytě jsou luxusní dřevěné podlahy a interiérové dřevěné dveře na zakázku.

Byt se nachází v srdci hlavního města s vynikající občanskou vybaveností a dopravní dostupností. Skvělá dopravní dostupnost a blízkost městské infrastruktury jsou klíčovými aspekty této nemovitosti, což z ní činí i výbornou investici do budoucnosti.

V domě je výtah, který splňuje aktuální přísné podmínky pro provoz.

Pokud Vás tento byt zaujal, neváhejte nám napsat nebo zavolat a rádi Vám vše ukážeme osobně.

Parametry bytu

Cena
20 999 000 Kč /za nemovitost Spočítat hypotéku
Aktualizováno
13. 12. 2025
Adresa
Záhřebská, Praha, Vinohrady
Stavba
Panelová
Stav objektu
Po rekonstrukci
Patro
7.
Lokalita objektu
Centrum obce
Vlastnictví
Osobní
Užitná plocha
87 m2
Odpad
Veřejná kanalizace
Komunikace
Asfaltová
Doprava
Vlak, Dálnice, Silnice, MHD
Voda
Vodovod
Sklep
Terasa
Výtah

Kontaktovat makléře

Realitní kancelář

Finako

nám. Komenského 287, Kostelec nad Labem

Chystáte se prodat nemovitost?
Pomůžeme Vám!

Máte zájem o tento byt?

Tímto, v souladu s nařízením Evropského parlamentu a Rady (EU) 2016/679, v platném znění, prohlašuji, že mi je alespoň 16 let a uděluji tak svůj souhlas se zpracováním zadaných údajů (jméno, telefon, e-mail, ip adresa) společnosti B3 Technology, s.r.o., IČ: 07330600, se sídlem Novostavby 126/23, 435 11 Lom (správce dat), za účelem předání dotazu z tohoto formuláře Vámi vybranému inzerentovi a zpětného kontaktování mé osoby. Osobní údaje bude správce zpracovávat manuálně i automaticky přímo prostřednictvím svých zaměstnanců. Informace předané tímto formulářem budou uloženy v databázi správce maximálně po dobu 10 let. Odvolání souhlasu s uložením a zpracováním poskytnutých dat lze e-mailem na info@realitypro.eu. V případě podezření na neoprávněné použití Vámi poskytnutých údajů máte právo předat podnět k šetření Úřadu pro ochranu osobních údajů. Více informací
Chystáte se prodat nemovitost?
Pomůžeme Vám!

Inzerát si prohlédlo 0 lidí

Prodejce

Jozef Navrátil

Jozef Navrátil

Hlídací pes

Chcete dostávat emailem podobné nabídky prodeje bytů 4+1 v Praze 2?

Podobné nemovitosti