Pronájem bytu 2+kk, Lanškroun, Palackého, 68 m2 (ID: 2755433)

Palackého, Lanškroun, Žichlínské Předměstí

8 893 Kč /za měsíc Získejte výhodnou HYPOTÉKU

(aukce nájmu bytu)

Prověřené firmy v Lanškrouně

Informace k bytu

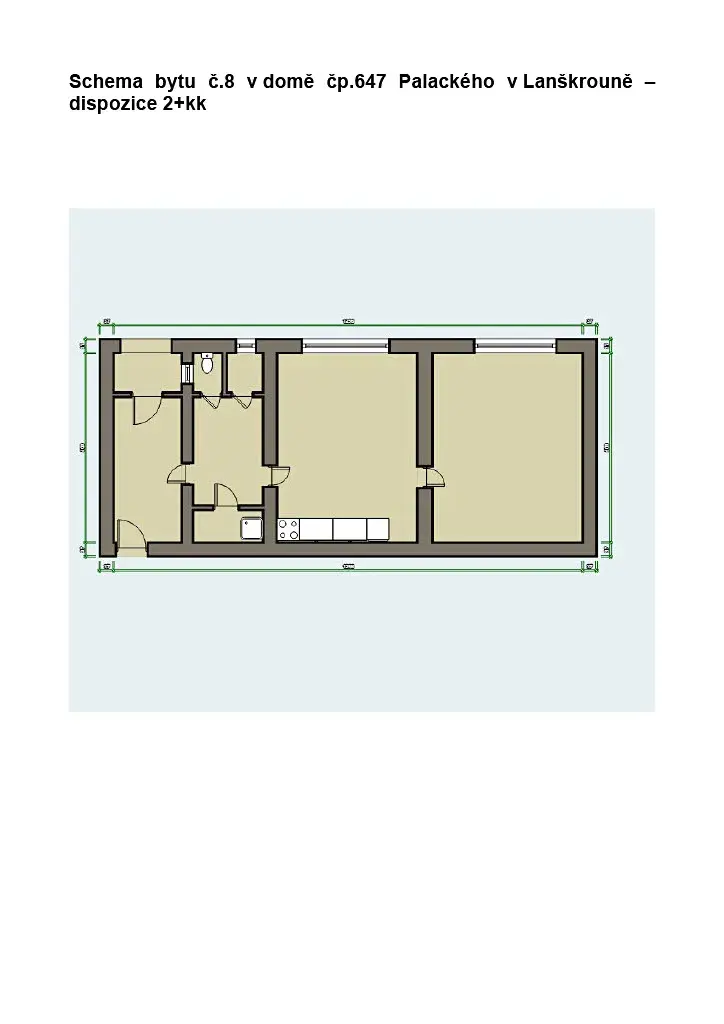
Dovolujeme si Vám nabídnout k pronájmu byt s dispozicí 2+kk v 2.NP domu čp.647 v ulici Palackého v Lanškrouně.
Tento byt je ideální volba pro ty, kteří hledají klidné bydlení v cihlové zástavbě na dobré adrese. Byt se nachází ve druhém patře a jeho užitná plocha činí 68 m². Byt je po celkové rekonstrukci a je připraven k okamžitému bydlení.

Tento byt je součástí státního nebo obecního vlastnictví a určitě oceníte jeho praktický balkon o ploše 3 m², kde si můžete užívat čerstvý vzduch. K bytu náleží také sklep o velikosti 12 m², což poskytuje další úložný prostor pro Vaše věci.

Pokud Vás tato nemovitost zaujala, neváhejte nás kontaktovat pro více informací nebo si přijďte prohlédnout byt osobně. Prohlídka je naplánována na 14.01.2026 od 14:30 do 15:00. Těšíme se na setkání a na to, že Vám budeme moci představit všechny výhody tohoto bytu.

Parametry bytu

Cena
8 893 Kč /za měsíc
Poznámka k ceně
aukce nájmu bytu
Aktualizováno
11. 12. 2025
Adresa
Palackého, Lanškroun, Žichlínské Předměstí
Stavba
Cihlová
Stav objektu
Dobrý
Patro
2.
Vlastnictví
Státní/obecní
Užitná plocha
68 m2
Balkon
Sklep

Kontaktovat makléře

Máte zájem o tento byt?

Tímto, v souladu s nařízením Evropského parlamentu a Rady (EU) 2016/679, v platném znění, prohlašuji, že mi je alespoň 16 let a uděluji tak svůj souhlas se zpracováním zadaných údajů (jméno, telefon, e-mail, ip adresa) společnosti B3 Technology, s.r.o., IČ: 07330600, se sídlem Novostavby 126/23, 435 11 Lom (správce dat), za účelem předání dotazu z tohoto formuláře Vámi vybranému inzerentovi a zpětného kontaktování mé osoby. Osobní údaje bude správce zpracovávat manuálně i automaticky přímo prostřednictvím svých zaměstnanců. Informace předané tímto formulářem budou uloženy v databázi správce maximálně po dobu 10 let. Odvolání souhlasu s uložením a zpracováním poskytnutých dat lze e-mailem na info@realitypro.eu. V případě podezření na neoprávněné použití Vámi poskytnutých údajů máte právo předat podnět k šetření Úřadu pro ochranu osobních údajů. Více informací
Chystáte se prodat nemovitost?
Pomůžeme Vám!

Inzerát si prohlédlo 1 lidí

Prodejce

Michaela Vídeňská

Michaela Vídeňská

Hlídací pes

Chcete dostávat emailem podobné nabídky pronájmu bytů 2+kk v Lanškrouně?

Top nabídky

Podobné nemovitosti