Pronájem bytu 3+1, Praha - Vinohrady, Radhošťská, 96 m2

Radhošťská, Vinohrady - Praha 3

30 000 Kč /za měsíc Získejte výhodnou HYPOTÉKU

(vratná jistota, náklady na bydlení 5649 Kč vč. elektřiny, poplatek za podnájem)

Prověřené firmy v Praze 3

Stěhovací služby

Výkup a prodej starého nábytku

Informace k bytu

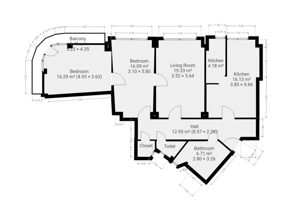
K dlouhodobému podnájmu nabízíme prostorný byt o dispozici 3+1 v oblíbené lokalitě Praha - Vinohrady. Byt o podlahové ploše 96 m2 se nachází ve 3. patře cihlového domu s výtahem. K bytu patří balkon a sklep.

Nabízí se nevybavený. Kuchyně disponuje lednicí, myčkou, elektrickou troubou, plynovým sporákem a mikrovlnnou troubou. Obývací pokoj a obě ložnice jsou nezařízené. V místnostech jsou dřevěné parkety, větší ložnice disponuje balkonem. V koupelně, která je po rekonstrukci, nalezneme vanu i sprchový kout a pračku. Toaleta je odděleně.

V okolí domu najdeme restaurace, potraviny a veškerou potřebnou infrastrukturu. Tramvajová zastávka Radhošťská se nachází přímo před domem.

Majitel preferuje zájemce bez domácích mazlíčků.
Byt je volný k nastěhování od 1.2.2026.

Uvedena energetická kategorie G, jelikož nemáme k dispozici PENB.

Byt pronajímá Ideální nájemce - služba, se kterou budete bydlet bezstarostně a za férových podmínek. Když se něco přihodí, k dispozici jsou správci, kteří s vámi vše vyřeší. Pomůžeme s veškerou administrativou, s nastavením plateb a zajistíme vám speciální pojištění. Pojďte bydlet s námi!

Parametry bytu

Cena
30 000 Kč /za měsíc
Poznámka k ceně
vratná jistota, náklady na bydlení 5649 Kč vč. elektřiny, poplatek za podnájem
Aktualizováno
8. 12. 2025
Adresa
Radhošťská, Vinohrady - Praha 3
ID
N3587
Stavba
Cihlová
Stav objektu
Velmi dobrý
Patro
3. z 5
Vybaveno
Částečně
Typ objektu
Patrový
Lokalita objektu
Rušná část obce
Vlastnictví
Osobní
Užitná plocha
96 m2
Podlahová plocha
96 m2
Třída energetické náročnosti
G - Mimořádně nehospodárná
Elektřina
230V
Topení
Lokální plynové
Doprava
Vlak, Dálnice, Silnice, MHD, Autobus
Balkon
Sklep
Výtah

Kontaktovat makléře

Máte zájem o tento byt?

Tímto, v souladu s nařízením Evropského parlamentu a Rady (EU) 2016/679, v platném znění, prohlašuji, že mi je alespoň 16 let a uděluji tak svůj souhlas se zpracováním zadaných údajů (jméno, telefon, e-mail, ip adresa) společnosti B3 Technology, s.r.o., IČ: 07330600, se sídlem Novostavby 126/23, 435 11 Lom (správce dat), za účelem předání dotazu z tohoto formuláře Vámi vybranému inzerentovi a zpětného kontaktování mé osoby. Osobní údaje bude správce zpracovávat manuálně i automaticky přímo prostřednictvím svých zaměstnanců. Informace předané tímto formulářem budou uloženy v databázi správce maximálně po dobu 10 let. Odvolání souhlasu s uložením a zpracováním poskytnutých dat lze e-mailem na info@realitypro.eu. V případě podezření na neoprávněné použití Vámi poskytnutých údajů máte právo předat podnět k šetření Úřadu pro ochranu osobních údajů. Více informací
Chystáte se prodat nemovitost?
Pomůžeme Vám!

Inzerát si prohlédlo 12 lidí

Prodejce

Miloslava Kačerová

Miloslava Kačerová

Hlídací pes

Chcete dostávat emailem podobné nabídky pronájmu bytů 3+1 v Praze 3?

Podobné nemovitosti