Prodej bytu 2+kk, Kunčice nad Labem, 39 m2 (ID: 2752294)

Kunčice nad Labem

2 990 000 Kč /za nemovitost HYPOTÉKA od 13 363 Kč /za měsíc
Prověřené firmy v Kunčicích nad Labem

Informace k bytu

Nabízíme k prodeji moderní byt 2+kk v klidné části podkrkonošské obce Kunčice nad Labem. Tento bytový dům obsahující 7 bytů je ve výstavbě a jeho dokončení je plánováno na začátek roku 2027.Výhodná poloha v klidné čtvrti zajišťuje příjemné bydlení mimo rušný provoz a poskytuje ideální podmínky pro rodiny či jednotlivce hledající klid. V krátké dojezdové vzdálenosti se nachází několik lyžařských středisek. Kolem domu se připravuje výstavba cyklostezky, po které se dostanete jak do Vrchlabí, tak na druhou stranu na Hostinné a dále.

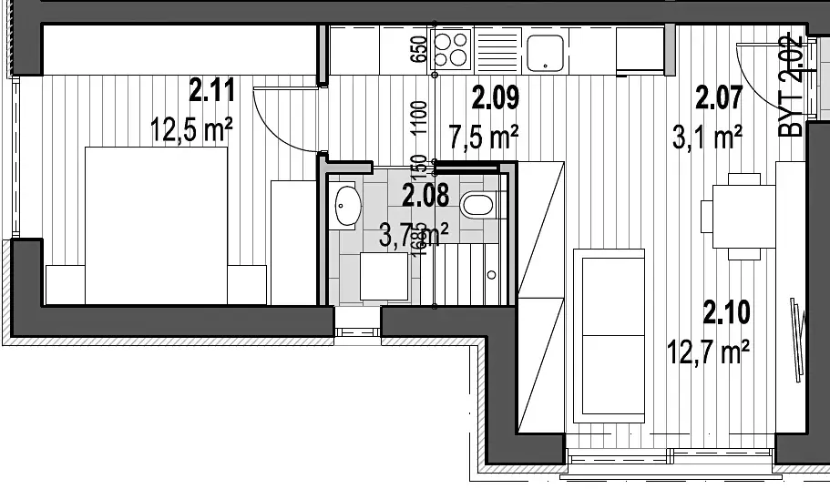
Byt o užitné ploše 39 m² je umístěn v druhém patře dvoupodlažní budovy a nabízí praktické dispoziční řešení- obývací pokoj s kuchyní, koupelnu s WC a oddělenou ložnici s výhledem do přírody a na řeku Labe. Součástí bytu je sklep o ploše 4 m², který poskytuje úložný prostor pro vaše potřeby. Pro pohodlí obyvatel je k dispozici jedno parkovací místo před budovou pro každý byt.

Energetická třída B podtrhuje nízkoenergetický charakter bydlení, což se projevuje ve snížených nákladech na provoz. Ohřev teplé vody a vytápění je řešen tepelným čerpadlem, byt je pak vyhříván teplovodním podlahovým topením.

S nákupem bytu získáváte také podíl na více než 3000m2 velké zahradě za domem, která je vhodná k rekreaci, odpočinku, případně zahradničení.

Pokud Vás tento byt zaujal, neváhejte nám napsat nebo zavolat a rádi Vám vše ukážeme osobně. Prohlídky jsou možné po předchozí domluvě. Prodávajícím je přímo majitel objektu.

Parametry bytu

Cena
2 990 000 Kč /za nemovitost Spočítat hypotéku
Aktualizováno
8. 12. 2025
Adresa
Kunčice nad Labem
Stavba
Cihlová
Stav objektu
Ve výstavbě
Patro
2.
Vybaveno
Ne
Lokalita objektu
Klidná část obce
Vlastnictví
Osobní
Užitná plocha
39 m2
Plocha zahrady
200 m2
Třída energetické náročnosti
B - Velmi úsporná
Ukazatel energetické náročnosti
48 kWh/m2 za rok
Elektřina
230V
Odpad
ČOV pro celý objekt
Komunikace
Dlážděná
Doprava
Silnice
Voda
Vodovod
Topné těleso
Podlahové vytápění
Zdroj topení
Elektrokotel, Tepelné čerpadlo
Zdroj teplé vody
Elektrokotel, Tepelné čerpadlo
Sklep
Výtah
Bezbarierový přístup
Parkování

Kontaktovat makléře

Realitní kancelář

ABM REAL

V Korytech 3234/18a, Praha

Chystáte se prodat nemovitost?
Pomůžeme Vám!

Máte zájem o tento byt?

Tímto, v souladu s nařízením Evropského parlamentu a Rady (EU) 2016/679, v platném znění, prohlašuji, že mi je alespoň 16 let a uděluji tak svůj souhlas se zpracováním zadaných údajů (jméno, telefon, e-mail, ip adresa) společnosti B3 Technology, s.r.o., IČ: 07330600, se sídlem Novostavby 126/23, 435 11 Lom (správce dat), za účelem předání dotazu z tohoto formuláře Vámi vybranému inzerentovi a zpětného kontaktování mé osoby. Osobní údaje bude správce zpracovávat manuálně i automaticky přímo prostřednictvím svých zaměstnanců. Informace předané tímto formulářem budou uloženy v databázi správce maximálně po dobu 10 let. Odvolání souhlasu s uložením a zpracováním poskytnutých dat lze e-mailem na info@realitypro.eu. V případě podezření na neoprávněné použití Vámi poskytnutých údajů máte právo předat podnět k šetření Úřadu pro ochranu osobních údajů. Více informací
Chystáte se prodat nemovitost?
Pomůžeme Vám!

Inzerát si prohlédlo 0 lidí

Prodejce

Zdeněk Pražan

Zdeněk Pražan

Hlídací pes

Chcete dostávat emailem podobné nabídky prodeje bytů 2+kk v Kunčicích nad Labem?

Podobné nemovitosti