Pronájem bytu 2+kk, Praha - Čakovice, Cukrovarská, 50 m2

Cukrovarská, Čakovice - Praha-Čakovice

17 900 Kč /za měsíc Získejte výhodnou HYPOTÉKU

(vratná jistota, náklady na bydlení 6 638 (včetně elektřiny a internetu), poplatek za podnájem)

Prověřené firmy v Praze 9

Stěhovací služby

Výkup a prodej starého nábytku

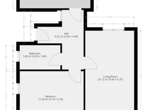
Informace k bytu

K dlouhodobému podnájmu nabízíme světlý byt o dispozici 2+kk v klidné lokalitě Praha-Čakovice. Byt o celkové výměře 50 m² se nachází v podkroví rodinného domu, který prošel kompletní rekonstrukcí a přestavbou. K bytu přísluší zastřešená terasa a společný sklep.

Byt se nabízí plně vybavený. Kuchyňský kout disponuje lednicí s mrazákem, myčkou, elektrickou troubou, varnou deskou a mikrovlnnou troubou. Obývací část je zařízena jídelním stolem s židlemi, pohovkou, komodou a TV skříňkou. Součástí ložnice je postel, komoda a skříň. V koupelně je sprchový kout, umyvadlo, zrcadlo, koupelnová skříňka a WC. V předsíni je věšák, botník a pračka.

V okolí domu najdeme restaurace a kavárny, hypermarket Globus, nákupní centrum Praha Čakovice, lékárnu, poštu, čakovický zámecký park, koupaliště Čakovice, místní knihovnu atd. Pár minut chůze od domu jsou vzdáleny autobusové zastávky umožňující rychlé spojení na metro, a v docházkové vzdálenosti je vlaková stanice Praha-Čakovice (24 minut jízdy na stanici Praha hlavní nádraží).

Byt je volný k nastěhování ihned.

Energetická třída: G (průkaz nedodán).

Parametry bytu

Cena
17 900 Kč /za měsíc
Poznámka k ceně
vratná jistota, náklady na bydlení 6 638 (včetně elektřiny a internetu), poplatek za podnájem
Aktualizováno
8. 12. 2025
Adresa
Cukrovarská, Čakovice - Praha-Čakovice
ID
N7011
Stavba
Cihlová
Stav objektu
Velmi dobrý
Patro
2. z 2
Vybaveno
Ano
Typ objektu
Patrový
Lokalita objektu
Klidná část obce
Vlastnictví
Osobní
Užitná plocha
50 m2
Podlahová plocha
50 m2
Třída energetické náročnosti
G - Mimořádně nehospodárná
Elektřina
230V
Topení
Ústřední elektrické
Telekomunikace
Internet
Doprava
Vlak, Dálnice, Silnice, MHD, Autobus
Voda
Vodovod
Sklep
Terasa
Výtah

Kontaktovat makléře

Máte zájem o tento byt?

Tímto, v souladu s nařízením Evropského parlamentu a Rady (EU) 2016/679, v platném znění, prohlašuji, že mi je alespoň 16 let a uděluji tak svůj souhlas se zpracováním zadaných údajů (jméno, telefon, e-mail, ip adresa) společnosti B3 Technology, s.r.o., IČ: 07330600, se sídlem Novostavby 126/23, 435 11 Lom (správce dat), za účelem předání dotazu z tohoto formuláře Vámi vybranému inzerentovi a zpětného kontaktování mé osoby. Osobní údaje bude správce zpracovávat manuálně i automaticky přímo prostřednictvím svých zaměstnanců. Informace předané tímto formulářem budou uloženy v databázi správce maximálně po dobu 10 let. Odvolání souhlasu s uložením a zpracováním poskytnutých dat lze e-mailem na info@realitypro.eu. V případě podezření na neoprávněné použití Vámi poskytnutých údajů máte právo předat podnět k šetření Úřadu pro ochranu osobních údajů. Více informací
Chystáte se prodat nemovitost?
Pomůžeme Vám!

Inzerát si prohlédlo 1 lidí

Prodejce

Miloslava Kačerová

Miloslava Kačerová

Hlídací pes

Chcete dostávat emailem podobné nabídky pronájmu bytů 2+kk v Praze 9?

Podobné nemovitosti