Pronájem bytu 2+kk, Kutná Hora, Za Lidkou, 56 m2

Za Lidkou, Kutná Hora, Hlouška

15 900 Kč /za měsíc Získejte výhodnou HYPOTÉKU
Prověřené firmy v Kutné Hoře

Informace k bytu

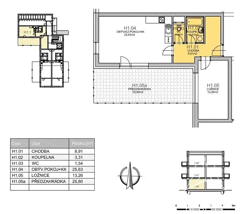
Nabízím k pronájmu elegantní a moderně řešený byt 2+kk o výměře 56 m², situovaný v přízemí novostavby v ulici Za Lidkou v Kutné Hoře. Součástí bytu je upravená předzahrádka, která poskytuje příjemný venkovní prostor k odpočinku.

Dispozice zahrnuje prostorný obývací pokoj s moderní kuchyňskou linkou vybavenou troubou, sklokeramickou varnou deskou, myčkou a lednicí s mrazákem. Samostatná ložnice nabízí klidovou zónu s dostatkem soukromí. Předzahrádka je částečně dlážděná, doplněná o travnatou plochu, oplocení a venkovní přívod vody.
Koupelna je vybavena vanou, WC je samostatné. K bytu náleží rovněž sklepní prostor. Vstup do domu je zajištěn moderním systémem s displejem a kamerou.

Nábytek na fotografiích není součástí pronájmu.

Nájemné 15 900 Kč + 1000 Kč parkovací místo + zálohy 2 700 Kč pro 2 osoby (zahrnuje teplo, studená + teplá voda, výtah, osvětlení spol. prostor, úklid, servisní poplatky.
Elektřinu si nájemník převádí na sebe.
Vratná kauce ve výši 25 000 Kč.
Provize RK odpovídá jednomu měsíčnímu nájmu + DPH.

Byt je volný od 1. 2. 2026.
Doporučuji osobní prohlídku – jedná se o velmi příjemné a kvalitní bydlení.

Parametry bytu

Cena
15 900 Kč /za měsíc
Aktualizováno
4. 12. 2025
Adresa
Za Lidkou, Kutná Hora, Hlouška
ID
00640
Stavba
Cihlová
Stav objektu
Novostavba
Patro
1.
Vlastnictví
Osobní
Užitná plocha
56 m2
Plocha zahrady
26 m2
Třída energetické náročnosti
A - Mimořádně úsporná
Ukazatel energetické náročnosti
75 kWh/m2 za rok
Odpad
Veřejná kanalizace
Doprava
Vlak, MHD, Autobus
Voda
Vodovod
Topné těleso
Radiátory
Zdroj topení
Centrální dálkové
Zdroj teplé vody
Centrální dálkový ohřev
Sklep
Parkování

Kontaktovat makléře

Máte zájem o tento byt?

Tímto, v souladu s nařízením Evropského parlamentu a Rady (EU) 2016/679, v platném znění, prohlašuji, že mi je alespoň 16 let a uděluji tak svůj souhlas se zpracováním zadaných údajů (jméno, telefon, e-mail, ip adresa) společnosti B3 Technology, s.r.o., IČ: 07330600, se sídlem Novostavby 126/23, 435 11 Lom (správce dat), za účelem předání dotazu z tohoto formuláře Vámi vybranému inzerentovi a zpětného kontaktování mé osoby. Osobní údaje bude správce zpracovávat manuálně i automaticky přímo prostřednictvím svých zaměstnanců. Informace předané tímto formulářem budou uloženy v databázi správce maximálně po dobu 10 let. Odvolání souhlasu s uložením a zpracováním poskytnutých dat lze e-mailem na info@realitypro.eu. V případě podezření na neoprávněné použití Vámi poskytnutých údajů máte právo předat podnět k šetření Úřadu pro ochranu osobních údajů. Více informací
Chystáte se prodat nemovitost?
Pomůžeme Vám!

Inzerát si prohlédlo 0 lidí

Prodejce

Michaela Šulcová

Michaela Šulcová

Hlídací pes

Chcete dostávat emailem podobné nabídky pronájmu bytů 2+kk v Kutné Hoře?

Podobné nemovitosti