Pronájem bytu 2+kk, Praha - Zličín, Hrozenkovská, 40 m2

Hrozenkovská, Praha, Zličín

22 000 Kč /za měsíc Získejte výhodnou HYPOTÉKU

(+ zálohy na služby 3900 kč + elektřina, vratná kauce 25900 kč, provize 25900 kč + DPH)

Prověřené firmy v Praze 5

Stěhovací služby

Výkup a prodej starého nábytku

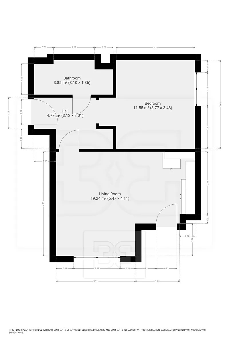
Informace k bytu

K nastěhování od 1.2.2026.

Nabízíme k pronájmu krásný, nevybavený prostorný byt o dispozici 2+kk a podlahové ploše 40 m². Nachází se v 1. podlaží udržované a zateplené budovy z roku 2010 situované v klidné lokalitě nedaleko stanice metra Zličín.

Byt je světlý a hlavní výhodou je terasa s předzahrádkou o výměře 135 m², která je přístupná z hlavní kuchyně. Kuchyňský kout je vybaven moderní linkou se spotřebiči, včetně lednice s mrazákem, varné desky, trouby, digestoře a myčky. Kuchyň je propojena z obývací místnosti. Ložnice je také nevybavená. V koupelně se nachází toaleta a sprchový kout.

K bytu náleží vlastní garážové stání a sklep.

Lokalita nabízí veškerou občanskou vybavenost – obchody, restaurace, služby, poštu i lékárnu. V docházkové vzdálenosti se nachází autobusová zastávka a stanice metra Zličín. V blízkém okolí je rovněž široká nabídka volnočasových aktivit.



Měsíční nájem - 22000 Kč, záloha za služby spojené s užíváním bytu 3900 Kč + elektřina, kauce 25900 kč, provize 25900 kč + dph.



Velkou výhodou pro potenciální nájemce je, že byt je v profesionální správě společnosti Bohemian Estates, jenž správu pro majitele tohoto bytu vykonává. Nájemci je k dispozici kontaktní osoba, která obratem řeší veškeré záležitosti s nájmem spojené (pravidelná údržba i havarijní zásahy vlastními techniky, vyúčtování, dodatky, apod.). Nájemci je tak zajištěno bezproblémové užívání bytu s kompletním servisem.

Parametry bytu

Cena
22 000 Kč /za měsíc
Poznámka k ceně
+ zálohy na služby 3900 kč + elektřina, vratná kauce 25900 kč, provize 25900 kč + DPH
Aktualizováno
1. 12. 2025
Adresa
Hrozenkovská, Praha, Zličín
ID
N08609
Stavba
Cihlová
Stav objektu
Velmi dobrý
Patro
1.
Vybaveno
Ne
Lokalita objektu
Klidná část obce
Vlastnictví
Osobní
Užitná plocha
40 m2
Plocha zahrady
135 m2
Třída energetické náročnosti
C - Úsporná
Ukazatel energetické náročnosti
120 kWh/m2 za rok
Elektřina
230V
Komunikace
Asfaltová
Telekomunikace
Internet
Doprava
Vlak, Dálnice, Silnice, MHD, Autobus
Voda
Vodovod
Topné těleso
Radiátory
Zdroj topení
Centrální dálkové
Zdroj teplé vody
Centrální dálkový ohřev
Garáž
Sklep
Terasa
Výtah
Bezbarierový přístup

Kontaktovat makléře

Máte zájem o tento byt?

Tímto, v souladu s nařízením Evropského parlamentu a Rady (EU) 2016/679, v platném znění, prohlašuji, že mi je alespoň 16 let a uděluji tak svůj souhlas se zpracováním zadaných údajů (jméno, telefon, e-mail, ip adresa) společnosti B3 Technology, s.r.o., IČ: 07330600, se sídlem Novostavby 126/23, 435 11 Lom (správce dat), za účelem předání dotazu z tohoto formuláře Vámi vybranému inzerentovi a zpětného kontaktování mé osoby. Osobní údaje bude správce zpracovávat manuálně i automaticky přímo prostřednictvím svých zaměstnanců. Informace předané tímto formulářem budou uloženy v databázi správce maximálně po dobu 10 let. Odvolání souhlasu s uložením a zpracováním poskytnutých dat lze e-mailem na info@realitypro.eu. V případě podezření na neoprávněné použití Vámi poskytnutých údajů máte právo předat podnět k šetření Úřadu pro ochranu osobních údajů. Více informací
Chystáte se prodat nemovitost?
Pomůžeme Vám!

Inzerát si prohlédlo 0 lidí

Prodejce

Lukáš Kubát

Lukáš Kubát

Hlídací pes

Chcete dostávat emailem podobné nabídky pronájmu bytů 2+kk v Praze 5?

Podobné nemovitosti