Pronájem bytu 1+kk, Praha - Zličín, Sazovická, 30 m2

Sazovická, Zličín - Praha-Zličín

15 900 Kč /za měsíc Získejte výhodnou HYPOTÉKU

(vratná jistota, náklady na bydlení 3.500,-Kč poplatek za podnájem)

Prověřené firmy v Praze 5

Stěhovací služby

Výkup a prodej starého nábytku

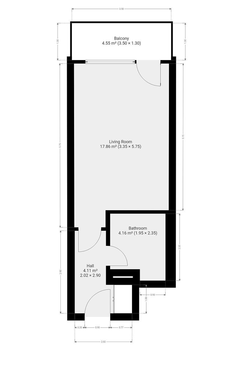
Informace k bytu

K dlouhodobému podnájmu Vám nabízíme slunný, útulný byt o dispozici 1+kk s balkonem, garážovým parkovacím stáním a sklepní kójí ve velmi klidné, přesto dobře dopravně dostupné lokalitě pražského Zličína.

Byt se nachází ve zvýšeném přízemí cihlového domu. Skládá se ze vstupní chodby vybavené vestavnou šatní skříní, koupelny společné s toaletou zařízené zařízené pračkou, sprchovým koutem a umyvadlem.

Obývací pokoj společný s kuchyňským koutem je zařízen obývací stěnou. Lze z něho vejít na prostorný balkon. O zajištění bezpečnosti se postarají elektrické předokenní rolety, které oddělují balkón od obývacího pokoje.

Kuchyně je zařízena všemi spotřebiči - lednice, varná deska, digestoř, trouba a vestavná mikrovlnná trouba.

Byt se nachází v klidné lokalitě, ulice Sazovická na Zličíně. Jen pár kroku od domu je autobusová zastávka "Nový Zličín". Na metro B to máte jednu zastávku autobusem nebo 5 minut klidnou procházkou. Stejně tak do OC Metropole Zličín.

K bytu náleží garážové parkovací stání a sklepní kóje.

Zálohové platby už obsahují zálohy na elektřinu a pojištění domácnosti.

Byt je k dispozici ihned.

Parametry bytu

Cena
15 900 Kč /za měsíc
Poznámka k ceně
vratná jistota, náklady na bydlení 3.500,-Kč poplatek za podnájem
Aktualizováno
28. 11. 2025
Adresa
Sazovická, Zličín - Praha-Zličín
ID
N6053
Stavba
Cihlová
Stav objektu
Velmi dobrý
Patro
3. z 9
Vybaveno
Částečně
Typ objektu
Patrový
Lokalita objektu
Klidná část obce
Vlastnictví
Osobní
Užitná plocha
30 m2
Podlahová plocha
30 m2
Třída energetické náročnosti
C - Úsporná
Elektřina
230V
Topení
Ústřední dálkové
Doprava
Vlak, Dálnice, Silnice, MHD, Autobus
Balkon
Garáž
Sklep
Výtah
Bezbarierový přístup
Parkování

Kontaktovat makléře

Máte zájem o tento byt?

Tímto, v souladu s nařízením Evropského parlamentu a Rady (EU) 2016/679, v platném znění, prohlašuji, že mi je alespoň 16 let a uděluji tak svůj souhlas se zpracováním zadaných údajů (jméno, telefon, e-mail, ip adresa) společnosti B3 Technology, s.r.o., IČ: 07330600, se sídlem Novostavby 126/23, 435 11 Lom (správce dat), za účelem předání dotazu z tohoto formuláře Vámi vybranému inzerentovi a zpětného kontaktování mé osoby. Osobní údaje bude správce zpracovávat manuálně i automaticky přímo prostřednictvím svých zaměstnanců. Informace předané tímto formulářem budou uloženy v databázi správce maximálně po dobu 10 let. Odvolání souhlasu s uložením a zpracováním poskytnutých dat lze e-mailem na info@realitypro.eu. V případě podezření na neoprávněné použití Vámi poskytnutých údajů máte právo předat podnět k šetření Úřadu pro ochranu osobních údajů. Více informací
Chystáte se prodat nemovitost?
Pomůžeme Vám!

Inzerát si prohlédlo 1 lidí

Prodejce

Miloslava Kačerová

Miloslava Kačerová

Hlídací pes

Chcete dostávat emailem podobné nabídky pronájmu bytů 1+kk v Praze 5?

Podobné nemovitosti