Prodej bytu 2+kk, Cheb, Na Nivách, 58 m2

Na Nivách, Cheb

4 400 000 Kč /za nemovitost HYPOTÉKA od 19 665 Kč /za měsíc
Prověřené firmy v Chebu

Informace k bytu

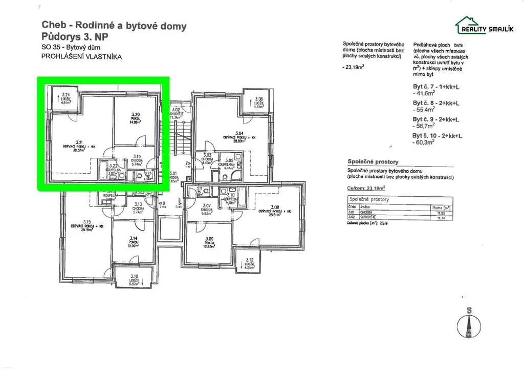
Byt v novostavbě, můžete bydlet ihned :) Cena je včetně zánovního zařízení viz. fotografie. Jedná se o bezbariérový přístup do domu i bytu. Nabízíme k prodeji krásný a prostorný byt 2+kk o výměře 60,3 m2 (byt vč. sklepní kóje) + lodžie 4,61 m2 v novostavbě u sídliště Skalka v Chebu. Byt je umístěn ve 2. patře domu s výtahem. Dispoziční řešení: předsíň, obývací pokoj s kuchyňským koutem a vstupem do lodžie s výhledem do zeleně, WC místnost je zvlášť. K bytu náleží sklepní kóje. Okna jsou plastová zaručující dostatek osvětlení. Prostřednictvím optického kabelu je zajištěno kvalitní internetové připojení. V domě je k dispozici kolárna. Dům je postaven v příjemné lokalitě navazující na výstavbu rodinných domů v blízkosti veškeré občanské vybavenosti - škola, školka, nákupní střediska, lékařské kliniky. Zastávka MHD a vlaková zastávka je v dosahu pěší chůze. Cheb je krásné historické město s hradem. Doporučuji pro svůj výborný stav a možnosti bydlení ihned.

Parametry bytu

Cena
4 400 000 Kč /za nemovitost Spočítat hypotéku
Náklady na bydlení
fond oprav 302 Kč, poplatek za správu 172 Kč
Aktualizováno
9. 1. 2026
Adresa
Na Nivách, Cheb
ID
02-01487
Stavba
Cihlová
Stav objektu
Novostavba
Patro
2. z 3
Vybaveno
Ano
Lokalita objektu
Centrum obce
Vlastnictví
Osobní
Užitná plocha
58 m2
Podlahová plocha
60 m2
Třída energetické náročnosti
B - Velmi úsporná
Ukazatel energetické náročnosti
115 kWh/m2 za rok
Elektřina
230V
Odpad
Veřejná kanalizace
Telekomunikace
Internet, Kabelové rozvody
Doprava
Vlak, Dálnice, MHD, Autobus
Voda
Vodovod
Balkon
Sklep
Bezbarierový přístup
Parkování

Kontaktovat makléře

Máte zájem o tento byt?

Tímto, v souladu s nařízením Evropského parlamentu a Rady (EU) 2016/679, v platném znění, prohlašuji, že mi je alespoň 16 let a uděluji tak svůj souhlas se zpracováním zadaných údajů (jméno, telefon, e-mail, ip adresa) společnosti B3 Technology, s.r.o., IČ: 07330600, se sídlem Novostavby 126/23, 435 11 Lom (správce dat), za účelem předání dotazu z tohoto formuláře Vámi vybranému inzerentovi a zpětného kontaktování mé osoby. Osobní údaje bude správce zpracovávat manuálně i automaticky přímo prostřednictvím svých zaměstnanců. Informace předané tímto formulářem budou uloženy v databázi správce maximálně po dobu 10 let. Odvolání souhlasu s uložením a zpracováním poskytnutých dat lze e-mailem na info@realitypro.eu. V případě podezření na neoprávněné použití Vámi poskytnutých údajů máte právo předat podnět k šetření Úřadu pro ochranu osobních údajů. Více informací
Chystáte se prodat nemovitost?
Pomůžeme Vám!

Inzerát si prohlédlo 7 lidí

Prodejce

Bc. Monika Veberová

Bc. Monika Veberová

Hlídací pes

Chcete dostávat emailem podobné nabídky prodeje bytů 2+kk v Chebu?

Podobné nemovitosti