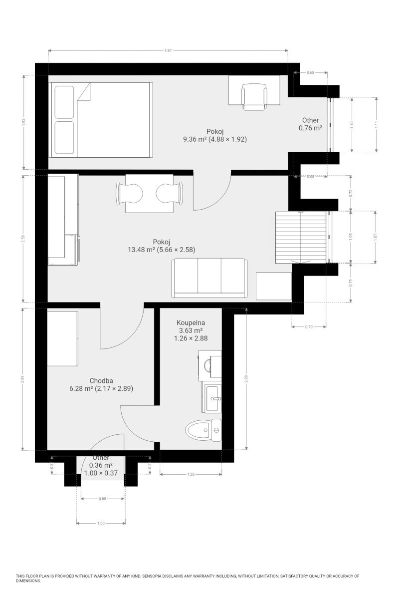
Prodej bytu 2+kk, Brno - Veveří, Čápkova, 33 m2

Čápkova, Veveří - Brno-střed

4 450 000 Kč /za nemovitost HYPOTÉKA od 19 889 Kč /za měsíc
Prověřené firmy v Brně

Informace k bytu

Nabízíme k prodeji útulný byt o dispozici 2+kk a celkové podlahové ploše 33 m², který se nachází v oblíbené a výborně dostupné části Brna, na ulici Čápkova. Byt je umístěn v nižším podlaží cihlového domu a disponuje přímým vstupem na zadní dvorek. Dvorek je společnou částí domu.

Byt prošel po roce 2020 rekonstrukcí a nachází se ve standardním technickém stavu. Je však důležité upozornit na zvýšenou vlhkost a vyšší riziko vzniku plísně (plíseň se již v jednotce objevila). Je tedy potřeba počítat s investicí do technických úprav, případné sanace a zlepšení odvětrání. Vlhkost souvisí také se staršími stoupačkami a technickým stavem pláště domu.

Společenství vlastníků již schválilo soubor oprav, který zahrnuje rekonstrukci kanalizace, sklepů, dvorní části (zajištění izolace a odstranění průniku vody k základům domu) a výměnu oken a dveří ve společných prostorách. Tyto práce by měly významně přispět ke snížení vlhkosti v dotčených stěnách bytu.

Měsíční náklady na bydlení:

zálohy na energie a služby SVJ: 1 380 Kč
elektřina: 880 Kč
plyn: 1 450 Kč
Celkové měsíční provozní náklady tak činí 3 710 Kč.

Byt je volný a připravený k okamžitému nastěhování. Je vhodný jak pro vlastní bydlení, tak jako investiční příležitost s možností úprav podle preferencí nového majitele. V okolí se nachází restaurace, kavárny, park, supermarket, lékárna a několik univerzit. Tramvajová zastávka Konečného náměstí je vzdálena přibližně dvě minuty chůze a nabízí výborné spojení do všech částí města.

V případě zájmu mě neváhejte kontaktovat a domluvit si prohlídku. Rád vám byt osobně ukážu.

Parametry bytu

Cena
4 450 000 Kč /za nemovitost Spočítat hypotéku
Aktualizováno
10. 12. 2025
Adresa
Čápkova, Veveří - Brno-střed
ID
N6991
Stavba
Cihlová
Stav objektu
Dobrý
Vybaveno
Ano
Typ objektu
Patrový
Vlastnictví
Osobní
Užitná plocha
33 m2
Podlahová plocha
33 m2
Třída energetické náročnosti
D - Méně úsporná
Elektřina
230V
Výtah

Kontaktovat makléře

Realitní kancelář

Logo Ideální nájemce

Ideální nájemce

Milady Horákové 1957/13, Brno

Chystáte se prodat nemovitost?
Pomůžeme Vám!

Máte zájem o tento byt?

Tímto, v souladu s nařízením Evropského parlamentu a Rady (EU) 2016/679, v platném znění, prohlašuji, že mi je alespoň 16 let a uděluji tak svůj souhlas se zpracováním zadaných údajů (jméno, telefon, e-mail, ip adresa) společnosti B3 Technology, s.r.o., IČ: 07330600, se sídlem Novostavby 126/23, 435 11 Lom (správce dat), za účelem předání dotazu z tohoto formuláře Vámi vybranému inzerentovi a zpětného kontaktování mé osoby. Osobní údaje bude správce zpracovávat manuálně i automaticky přímo prostřednictvím svých zaměstnanců. Informace předané tímto formulářem budou uloženy v databázi správce maximálně po dobu 10 let. Odvolání souhlasu s uložením a zpracováním poskytnutých dat lze e-mailem na info@realitypro.eu. V případě podezření na neoprávněné použití Vámi poskytnutých údajů máte právo předat podnět k šetření Úřadu pro ochranu osobních údajů. Více informací
Chystáte se prodat nemovitost?
Pomůžeme Vám!

Inzerát si prohlédlo 9 lidí

Prodejce

Jakub Ševčík

Jakub Ševčík

Hlídací pes

Chcete dostávat emailem podobné nabídky prodeje bytů 2+kk v Brně?

Podobné nemovitosti