Pronájem bytu 4+1, Praha - Chodov, 250 m2 (ID: 2743499)

Praha, Chodov

70 000 Kč /za měsíc Získejte výhodnou HYPOTÉKU

(Cena pronájmu vč. zařízení a vybavení 20 000 Kč za měsíc. )

Prověřené firmy v Praze 4

Stěhovací služby

Výkup a prodej starého nábytku

Informace k bytu

K pronájmu nabízíme exkluzivní byt 4+1 v prestižní lokalitě Praha 4, Chodov. Tento prostorný byt s podlahovou plochou 151 m² a užitnou plochou 250 m² se pyšní moderním vybavením a vysoce kvalitním provedením. Byt se nachází v prvním až třetím podlaží cihlové budovy s výtahem, postavené v roce 2014, a nabízí vše, co moderní bydlení vyžaduje.
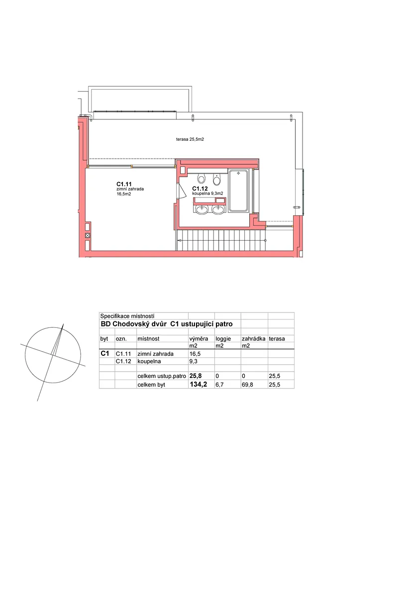
Jeho dispozice zahrnuje tři ložnice, z nichž každá má vlastní koupelnu, prostorný obývací pokoj propojený s plně vybavenou a moderní kuchyní, samostatnou toaletu, chodby a šatnu. Kuchyň je vybavena moderními spotřebiči, jako je varná deska, vestavěná lednice s mrazákem, mikrovlnná trouba, elektrická trouba a myčka nádobí. Obývací pokoj je prostorný, s přímým vstupem na zahradu s terasou o ploše 70 m², která poskytuje ideální místo pro trávení společných chvil na čerstvém vzduchu. Ložnice v posledním podlaží navíc disponuje terasou o velikosti 25,5 m², která nabízí nádherný výhled do sousedního parku. Byt dále disponuje uzavřenou lodžií (6,7 m²) a sklepem (4 m²). Součástí bytu jsou také dvě parkovací stání v garáži.
Byt se pronajímá kompletně zařízený nábytekem. Měsíční nájem bytu činí 70 000 Kč, vybavení domu za 20 000 Kč měsíčně. Kauce je stanovena na trojnásobek měsíčního nájmu a skládá se při podpisu smlouvy. Provize za zprostředkování činí výši jednoho měsíčního nájmu. V ceně nájmu nejsou zahrnuty poplatky SVJ ve výši 8 100 Kč a poplatky za spotřebu elektrické energie ve výši 1 200 Kč.
Poloha nabízí kompletní občanskou vybavenost školy, školky, obchody, restaurace a zdravotnická zařízení jsou na dosah. Dopravní dostupnost je vynikající, v blízkosti se nachází autobusy a metro C, což zajišťuje snadný přístup do ostatních částí Prahy.
Tento byt je ideální volbou pro ty, kteří hledají komfortní a reprezentativní bydlení v klidné části Prahy s rychlým spojením do centra města. Byt je k dispozici k pronájmu dlouhodobě (minimálně na rok) a je již kompletně zařízen, připraven k okamžitému nastěhování.
Objekt se nachází v městské části Chodov a nabízí všechny přednosti života ve velkoměstě, přičemž si zachovává pocit soukromí a pohodlí. Přijďte se přesvědčit o kvalitách tohoto jedinečného bytu, který může být brzy vaším novým domovem.

Parametry bytu

Cena
70 000 Kč /za měsíc
Poznámka k ceně
Cena pronájmu vč. zařízení a vybavení 20 000 Kč za měsíc.
Aktualizováno
26. 11. 2025
Adresa
Praha, Chodov
ID
947923
Stavba
Smíšená
Stav objektu
Novostavba
Patro
1. z 3
Vybaveno
Ano
Vlastnictví
Osobní
Užitná plocha
250 m2
Podlahová plocha
151 m2
Plocha zahrady
70 m2
Třída energetické náročnosti
B - Velmi úsporná
Elektřina
230V
Odpad
Veřejná kanalizace
Komunikace
Asfaltová
Telekomunikace
Internet
Doprava
Vlak, Dálnice, Silnice, MHD, Autobus
Voda
Vodovod
Topné těleso
Radiátory
Zdroj topení
Plynový kotel
Garáž
Sklep
Lodžie
Terasa
Výtah
Parkování

Kontaktovat makléře

Máte zájem o tento byt?

Tímto, v souladu s nařízením Evropského parlamentu a Rady (EU) 2016/679, v platném znění, prohlašuji, že mi je alespoň 16 let a uděluji tak svůj souhlas se zpracováním zadaných údajů (jméno, telefon, e-mail, ip adresa) společnosti B3 Technology, s.r.o., IČ: 07330600, se sídlem Novostavby 126/23, 435 11 Lom (správce dat), za účelem předání dotazu z tohoto formuláře Vámi vybranému inzerentovi a zpětného kontaktování mé osoby. Osobní údaje bude správce zpracovávat manuálně i automaticky přímo prostřednictvím svých zaměstnanců. Informace předané tímto formulářem budou uloženy v databázi správce maximálně po dobu 10 let. Odvolání souhlasu s uložením a zpracováním poskytnutých dat lze e-mailem na info@realitypro.eu. V případě podezření na neoprávněné použití Vámi poskytnutých údajů máte právo předat podnět k šetření Úřadu pro ochranu osobních údajů. Více informací
Chystáte se prodat nemovitost?
Pomůžeme Vám!

Inzerát si prohlédlo 0 lidí

Prodejce

Jana Vilímková

Jana Vilímková

Hlídací pes

Chcete dostávat emailem podobné nabídky pronájmu bytů 4+1 v Praze 4?

Podobné nemovitosti