Pronájem bytu 2+1, Praha - Staré Město, Týnská ulička, 71 m2

Týnská ulička, Staré Město - Praha 1

26 900 Kč /za měsíc Získejte výhodnou HYPOTÉKU

(vratná jistota, zálohové platby 6.000,-Kč poplatek za podnájem)

Prověřené firmy v Praze 1

Stěhovací služby

Výkup a prodej starého nábytku

Informace k bytu

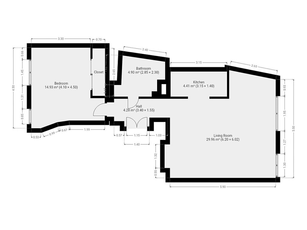
Nabízíme k dlouhodobému podnájmu světlý a útulný byt 2+1 v prestižní lokalitě Praha 1 – Staré Město. Byt o velikosti 71 m² se nachází ve 4. patře udržovaného bytového domu s výtahem a součástí je také praktická sklepní kóje.

Byt je kompletně vybavený, takže se můžete pohodlně nastěhovat bez nutnosti dalšího zařizování. Kuchyň je vybavena lednicí s mrazákem, elektrickou troubou, mikrovlnnou troubou, sporákem a digestoří. V hlavní obytné místnosti najdete pohodlnou sedací soupravu, konferenční stolek, televizor a jídelní kout. Ložnice je zařízena manželskou postelí a dostatkem úložného prostoru. Koupelna nabízí sprchový kout, umyvadlo, koupelnovou skříňku, toaletu a pračku.

Lokalita nabízí kompletní občanskou vybavenost: obchody s potravinami, supermarket Albert, lékařskou péči, poštu, školy a školky, restaurace i kavárny. Pro odpočinek je ideální blízký Park na náměstí Jana Palacha. Výbornou dopravní dostupnost zajišťuje stanice metra A – Staroměstská a také tramvajové spoje v docházkové vzdálenosti.

Byt je k nastěhování ihned.

Energetická třída: G (průkaz nedodán).

Parametry bytu

Cena
26 900 Kč /za měsíc
Poznámka k ceně
vratná jistota, zálohové platby 6.000,-Kč poplatek za podnájem
Aktualizováno
26. 11. 2025
Adresa
Týnská ulička, Staré Město - Praha 1
ID
N6989
Stavba
Cihlová
Stav objektu
Velmi dobrý
Patro
4. z 6
Vybaveno
Ano
Typ objektu
Patrový
Lokalita objektu
Klidná část obce
Vlastnictví
Osobní
Užitná plocha
71 m2
Podlahová plocha
71 m2
Třída energetické náročnosti
G - Mimořádně nehospodárná
Elektřina
230V
Topení
Ústřední dálkové
Doprava
Silnice, MHD, Autobus
Sklep
Výtah

Kontaktovat makléře

Máte zájem o tento byt?

Tímto, v souladu s nařízením Evropského parlamentu a Rady (EU) 2016/679, v platném znění, prohlašuji, že mi je alespoň 16 let a uděluji tak svůj souhlas se zpracováním zadaných údajů (jméno, telefon, e-mail, ip adresa) společnosti B3 Technology, s.r.o., IČ: 07330600, se sídlem Novostavby 126/23, 435 11 Lom (správce dat), za účelem předání dotazu z tohoto formuláře Vámi vybranému inzerentovi a zpětného kontaktování mé osoby. Osobní údaje bude správce zpracovávat manuálně i automaticky přímo prostřednictvím svých zaměstnanců. Informace předané tímto formulářem budou uloženy v databázi správce maximálně po dobu 10 let. Odvolání souhlasu s uložením a zpracováním poskytnutých dat lze e-mailem na info@realitypro.eu. V případě podezření na neoprávněné použití Vámi poskytnutých údajů máte právo předat podnět k šetření Úřadu pro ochranu osobních údajů. Více informací
Chystáte se prodat nemovitost?
Pomůžeme Vám!

Inzerát si prohlédlo 0 lidí

Prodejce

Miloslava Kačerová

Miloslava Kačerová

Hlídací pes

Chcete dostávat emailem podobné nabídky pronájmu bytů 2+1 v Praze 1?

Podobné nemovitosti