Prodej bytu 4+kk, Praha - Vinohrady, Na Folimance, 97 m2 (ID: 2742745)

Na Folimance, Praha 2 - Vinohrady

17 900 000 Kč HYPOTÉKA od 80 002 Kč /za měsíc

(měsíční poplatky 3 000 Kč)

Prověřené firmy v Praze 2

Stěhovací služby

Výkup a prodej starého nábytku

Informace k bytu

Prodej bytu 4+kk 97 m² Na Folimance, Praha

Unikátní byt s duší architektury v prestižní lokalitě Vinohrad – přímo u parku Folimanka.

Architektonické studio BekArch s.r.o. ve spolupráci se stavební firmou 4interior&tiles s.r.o. Vám exkluzivně představují jedinečnou příležitost pořídit si byt navržený architekty v jedné z nejvyhledávanějších částí Prahy – na pomezí Vinohrad, v těsné blízkosti parku Folimanka.

Hledáte výjimečné bydlení?
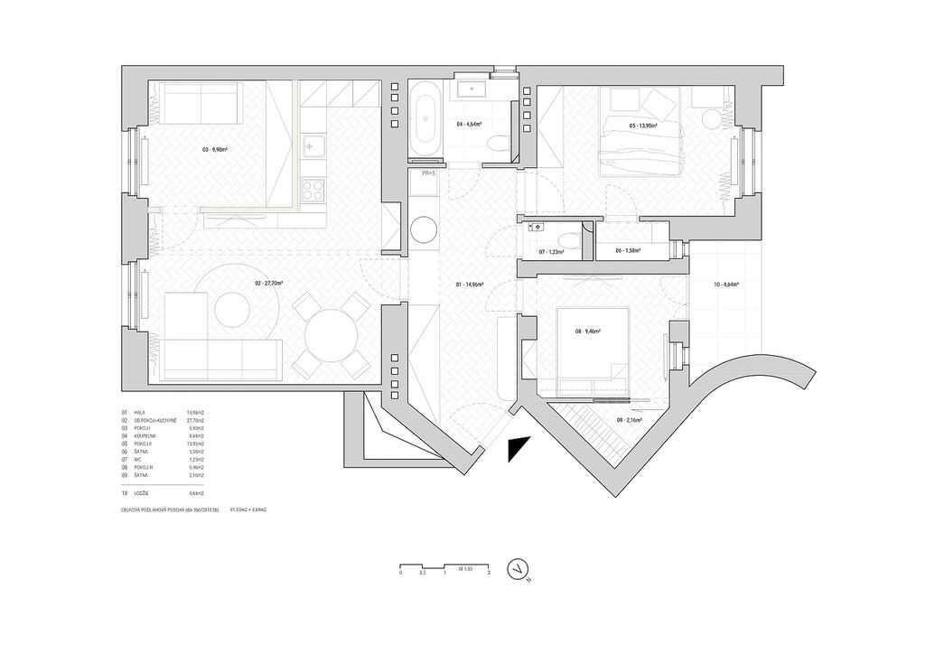
Styl, prostor a lokalita – to vše spojuje tento světlý a vzdušný byt 3+kk o rozloze 91,93 m² s možností úpravy na 4+kk, doplněný o lodžii 4,65 m². Byt se nachází v klidné ulici Na Folimance a aktuálně prochází kompletní rekonstrukcí podle návrhu architekta. Vizualizace finálního stavu a fotografie současného stavu jsou k dispozici k nahlédnutí v inzerátu.
Byt bude dokončen ve stavu fitout – tedy plně připravený k nastěhování: nové koupelny, dubové parketové podlahy, prvotřídní zařizovací předměty. Uvedená cena se vztahuje k dokončené jednotce.

Co dělá tento byt tak výjimečným?
Prostorný obývací pokoj s kuchyňským koutem – ideální pro rodinný život i společenská setkání
Klidné ložnice orientované do vnitrobloku – pro ničím nerušený spánek
Kvalitní materiály a důraz na detail: nové dubové parkety, špaletová okna, zachované původní dveře, prémiové obklady a vybavení
Možnost výběru dispozice 3+kk nebo 4+kk – dle vašich životních potřeb
Výběr povrchových materiálů – obklady, dlažby, podlahy dle vzorků přímo v architektonickém ateliéru

Výhody, které jinde nenajdete:
Personalizace interiéru ve spolupráci s architektem
Bez provize – kupujete přímo od majitele
Prestižní lokalita s výbornou dopravní dostupností a občanskou vybaveností
Park Folimanka doslova pár kroků od domu
Možnost dodělání interiéru na klíč přesně podle vašich představ (není součástí ceny)

Bydlení, které má styl. Prostor, který má smysl. Lokalita, která má jméno.
Kontaktujte nás ještě dnes a rezervujte si osobní prohlídku.
Tento byt může být už brzy vaším novým domovem – výjimečné příležitosti nečekají dlouho.

Parametry bytu

Cena
17 900 000 Kč Spočítat hypotéku
Poznámka k ceně
měsíční poplatky 3 000 Kč
Aktualizováno
25. 11. 2025
Adresa
Na Folimance, Praha 2 - Vinohrady
ID
202408
Stavba
Cihlová
Stav objektu
Novostavba
Lokalita objektu
Klidná část obce
Vlastnictví
Osobní
Užitná plocha
97 m2
Třída energetické náročnosti
G - Mimořádně nehospodárná

Kontaktovat makléře

Máte zájem o tento byt?

Tímto, v souladu s nařízením Evropského parlamentu a Rady (EU) 2016/679, v platném znění, prohlašuji, že mi je alespoň 16 let a uděluji tak svůj souhlas se zpracováním zadaných údajů (jméno, telefon, e-mail, ip adresa) společnosti B3 Technology, s.r.o., IČ: 07330600, se sídlem Novostavby 126/23, 435 11 Lom (správce dat), za účelem předání dotazu z tohoto formuláře Vámi vybranému inzerentovi a zpětného kontaktování mé osoby. Osobní údaje bude správce zpracovávat manuálně i automaticky přímo prostřednictvím svých zaměstnanců. Informace předané tímto formulářem budou uloženy v databázi správce maximálně po dobu 10 let. Odvolání souhlasu s uložením a zpracováním poskytnutých dat lze e-mailem na info@realitypro.eu. V případě podezření na neoprávněné použití Vámi poskytnutých údajů máte právo předat podnět k šetření Úřadu pro ochranu osobních údajů. Více informací
Chystáte se prodat nemovitost?
Pomůžeme Vám!

Inzerát si prohlédlo 0 lidí

Prodejce

Mgr. Kateřina Bek

Mgr. Kateřina Bek

Hlídací pes

Chcete dostávat emailem podobné nabídky prodeje bytů 4+kk v Praze 2?

Top nabídky

Podobné nemovitosti