Pronájem bytu 4+kk, Praha - Vinohrady, Italská, 134 m2 (ID: 2742360)

Italská, Praha, Vinohrady

85 000 Kč /za měsíc Získejte výhodnou HYPOTÉKU

(Poplatky za služby a energie se hradí zvlášť, informace v popisu.)

Prověřené firmy v Praze 2

Stěhovací služby

Výkup a prodej starého nábytku

Informace k bytu

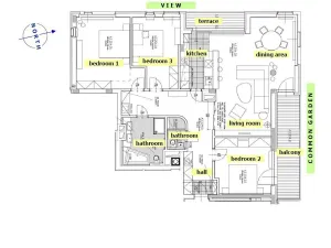
Luxusní byt 4+kk (3 ložnice, 2 koupelny), s celkovou plochou 150m2, z toho 16m2 činí terasa a balkon, je situovaný v 1.patře, rezidenčního komplexu s výtahem a 24hodinovou recepcí, v soukromém komplexu Rezidence Riegrovy sady, na Praze 2 Vinohrady, Italská ulice.

Interiér bytu je zařízený a dispozičně nabízí prostorný a světlý obývací pokoj spojený s moderní kuchyní a jídelním prostorem. Dále byt disponuje 3 ložnicemi, každá s vestavěnými skříněmi, dvěma koupelnami; jedná je vybavena vanou a sprchovým koutem, a druhá koupelna je vybavena sprchovým koutem. Součástí vybavení jsou: pračka a samostatná sušička, kabelové, SAT, telefonní a internetové připojení jsou též k dispozici. Byt je plně klimatizovaný, zařízen luxusním nábytkem, včetně na zakázku vyrobených postelí a skříní, na podlahách jsou parkety a dlažba. K bytu náleží sklep (4 m2) a k dispozici je i parkovací stání v podzemní garáži (za extra poplatek 5.000 Kč za místo).

Lokalita poskytuje perfektní dostupnost do centra Prahy, pouhých 5 minut chůze je stanice metra Muzeum (linka A/C), téměř před domem se nachází zastávka autobusu Náměstí Winstona Churchilla, pár minut chůze tramvajová zastávka Italská.

Poplatky za služby spojené s užíváním bytu činí 5.000, Kč/měsíčně a energie hradí nájemce přímo dodavatelům. Parkovací místo za poplatek 5.000, /měsíčně. Vratná kauce činí 2.nájmy. Provize RK.

Parametry bytu

Cena
85 000 Kč /za měsíc
Poznámka k ceně
Poplatky za služby a energie se hradí zvlášť, informace v popisu.
Aktualizováno
25. 11. 2025
Adresa
Italská, Praha, Vinohrady
ID
971304
Stavba
Cihlová
Stav objektu
Novostavba
Patro
2.
Vybaveno
Ano
Vlastnictví
Osobní
Užitná plocha
134 m2
Podlahová plocha
150 m2
Třída energetické náročnosti
G - Mimořádně nehospodárná
Elektřina
230V
Plyn
Plynovod
Doprava
Silnice, MHD
Voda
Vodovod
Balkon
Garáž
Sklep
Terasa
Výtah

Kontaktovat makléře

Máte zájem o tento byt?

Tímto, v souladu s nařízením Evropského parlamentu a Rady (EU) 2016/679, v platném znění, prohlašuji, že mi je alespoň 16 let a uděluji tak svůj souhlas se zpracováním zadaných údajů (jméno, telefon, e-mail, ip adresa) společnosti B3 Technology, s.r.o., IČ: 07330600, se sídlem Novostavby 126/23, 435 11 Lom (správce dat), za účelem předání dotazu z tohoto formuláře Vámi vybranému inzerentovi a zpětného kontaktování mé osoby. Osobní údaje bude správce zpracovávat manuálně i automaticky přímo prostřednictvím svých zaměstnanců. Informace předané tímto formulářem budou uloženy v databázi správce maximálně po dobu 10 let. Odvolání souhlasu s uložením a zpracováním poskytnutých dat lze e-mailem na info@realitypro.eu. V případě podezření na neoprávněné použití Vámi poskytnutých údajů máte právo předat podnět k šetření Úřadu pro ochranu osobních údajů. Více informací
Chystáte se prodat nemovitost?
Pomůžeme Vám!

Inzerát si prohlédlo 1 lidí

Prodejce

Eva Cinculová

Eva Cinculová

Hlídací pes

Chcete dostávat emailem podobné nabídky pronájmu bytů 4+kk v Praze 2?

Podobné nemovitosti