Remax Power 2

Prodej chaty, Křepenice, 100 m2

Křepenice

5 900 000 Kč /za nemovitost HYPOTÉKA od 26 369 Kč /za měsíc
Prověřené firmy v Křepenicích

Revize elektrických zařízení

Informace k domu

Romantika, klid a vlastní přístup k vodě – sen, který si teď můžete splnit. Tahle nemovitost na břehu Slapské přehrady nabízí vše, co dělá z místa u vody skutečné útočiště. Vůně dřeva, praskání ohně, koupání až do západu slunce a klid, který v městském tempu nenajdete.


K prodeji je udržovaná zateplená chata, promyšleně zasazená do svahu s víceúrovňovým vstupem a pozemkem. Součástí prodeje je vlastní molo s možností kotvení lodě, což z této nabídky dělá opravdový unikát v lokalitě.


Na pozemku o velikosti 290 m² stojí chata s užitnou plochou cca 100 m², garáž (30 m²) využívaná jako dílna a sklad, a terasa nad garáží o stejné velikosti – ideální místo pro letní stolování nebo klidné ráno s výhledem do zeleně.


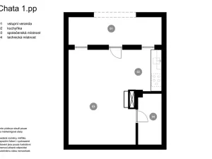
Přízemí / suterén: útulná obytná místnost s krbem, kuchyňským koutem a technickou místností – ideální jako vinný sklípek, klubovna nebo lze využít jako prostor pro hosty.

1. patro: vstupní předsíň, obývací pokoj se vstupem na terasu, kuchyň a jídelní část. Dále koupelna se sprchovým koutem a samostatná toaleta.

2. patro: prostorná ložnice a odpočinkový prostor nad schodištěm – ideální pro čtení, relax nebo jako prostor pro děti.


Chata je ihned uživatelná a prodává se včetně vybavení a udržovanou zahradou. 


Nachází se v oblíbené a komunitní chatařské oblasti Rybárna v obci Křepenice, nedaleko od Cholínského mostu a Slapské přehrady (cca 200 m). Z Prahy sem dorazíte za necelou hodinu – pouhých 55 km.


Okolí nabízí ideální podmínky pro pěší turistiku, rybolov, koupání a relaxaci na blízké pláži. Obec Křepenice je známá svou domácí pekárnou s kavárnou a zachovalou renesanční vodní tvrzí, což dotváří její jedinečný charakter a kouzlo venkovského klidu.

Parametry domu

Cena
5 900 000 Kč /za nemovitost Spočítat hypotéku
Aktualizováno
25. 11. 2025
Adresa
Křepenice
ID
532146
Stavba
Smíšená
Stav objektu
Dobrý
Vybaveno
Ano
Užitná plocha
100 m2
Plocha pozemku
290 m2
Plocha zahrady
217 m2
Třída energetické náročnosti
G - Mimořádně nehospodárná
Garáž
Výtah
Parkování

Kontaktovat makléře

Máte zájem o tento dům?

Tímto, v souladu s nařízením Evropského parlamentu a Rady (EU) 2016/679, v platném znění, prohlašuji, že mi je alespoň 16 let a uděluji tak svůj souhlas se zpracováním zadaných údajů (jméno, telefon, e-mail, ip adresa) společnosti B3 Technology, s.r.o., IČ: 07330600, se sídlem Novostavby 126/23, 435 11 Lom (správce dat), za účelem předání dotazu z tohoto formuláře Vámi vybranému inzerentovi a zpětného kontaktování mé osoby. Osobní údaje bude správce zpracovávat manuálně i automaticky přímo prostřednictvím svých zaměstnanců. Informace předané tímto formulářem budou uloženy v databázi správce maximálně po dobu 10 let. Odvolání souhlasu s uložením a zpracováním poskytnutých dat lze e-mailem na info@realitypro.eu. V případě podezření na neoprávněné použití Vámi poskytnutých údajů máte právo předat podnět k šetření Úřadu pro ochranu osobních údajů. Více informací
Chystáte se prodat nemovitost?
Pomůžeme Vám!

Inzerát si prohlédlo 14 lidí

Prodejce

Adéla Bukovská - recepce

Adéla Bukovská - recepce

Hlídací pes

Chcete dostávat emailem podobné nabídky prodeje chat v Křepenicích?

Top nabídky

Podobné nemovitosti